项目信息
项目名称:木和玻璃别墅
设计团队:卡利科娃建筑师事务所
项目类型:民宿设计
位置:乌克兰

在这里,您会看到一座郊区别墅,坐落在
基辅水库海滩旁的云杉林中。这所房子的目的是举办活动,例如为大量人群举办派对和骑自行车俱乐部聚会(50多人)。

巴伐利亚小木屋的形式为这个项目提供了灵感,因为这个剪影在精神上贴近客户。这个特定区域的地形差异很大,因此建造了地下室地板。这创造了一个大型车库空间,在周末,可以作为派对区。其余的房间都自行到位 - 所有起居空间和卧室的景色都通向水库,而厨房和走廊窗户则俯瞰着森林。

房屋的建造方法是预制房屋,由Kager House公司实现。这大大加快了建筑过程,其中大部分只需要一周的时间,墙壁具有高质量和完美的几何形状。该项目的整个实现总共花了一年时间,从施工开始到建筑物的出租结束。

房屋的一个困难元素是控制台楼梯 - 必须开发不同类型的结构解决方案才能实现它 - 与地下室和房屋内置结构中的木板分开。然而,在整个楼梯安装过程中,尸体不得不重新制作几次。

房子的装饰元素被选中,以符合周围的自然环境。用于整理的木材与周围树林的云杉颜色相同,地板图案是重复树皮的图案。内饰的色彩平衡是中性的,这使得其自然元素更加突出。在室内设计过程中,我们主要关心的是将外部保持在聚光灯下,并保持房屋内部的简单性。
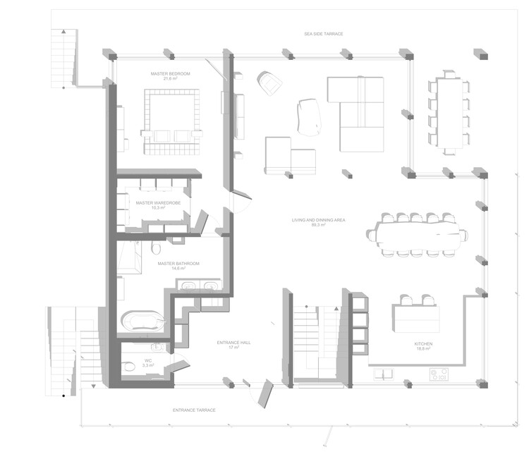
房子有两个入口 - 一个从地下室,另一个从客厅。用餐区的顶部放置了一扇长长的天窗,可以让大量的光线进入。这使得领土看起来很广阔,尽管从地板到天花板的距离只有270厘米。

底楼设有一个大型工作室/客厅,可以看到水景,一个宽敞的厨房,一个位于餐厅的双光源,一间带私人洗手间和衣柜区的主卧室,以及一个主厅。一楼包含四间客卧,一间开放式书房,一个可以很好地看到第二个光源的大厅,以及两间浴室和一个衣柜区。因此,我们能够创造出完美的房子,全年融入其华丽的环境。
来源网站: www.archdaily.com
翻译整理:WAQI
设计终究是一个不断学习的过程,WAQI作为一家学习型设计事务所,通常在设计的过程中,会分析甚至于拆建一些案例,
不定期分享一些心得。请扫描并关注公众号,更多精彩,与您共享。。。