宁静的Slate学校|生态建筑
发布于:2022-08-09 15:57  浏览:

项目信息
 
项目名称:美国乡村学校Slate
 
设计公司: Patriquin Architects
 
项目类型:生态建筑、乡村改造

项目位置:美国




Slate学校是一所私立,男女同校的非营利性小学,位于康涅狄格州北黑文市,占地约101170平方米,具有生物多样性的基地环境内。由Jennifer Staple Clark和Alexander Clark创立的学校提供​​了一个独特的基于自然的学习环境,旨在培养学生具有创造力,友善和领导力,同时激发对学习和发现的热情。学校的创始人责成项目团队创建一个体现这些愿望的校园和建筑物,融合学校自然环境的美景和丰富性,并为学生和老师提供良好的健康环境。



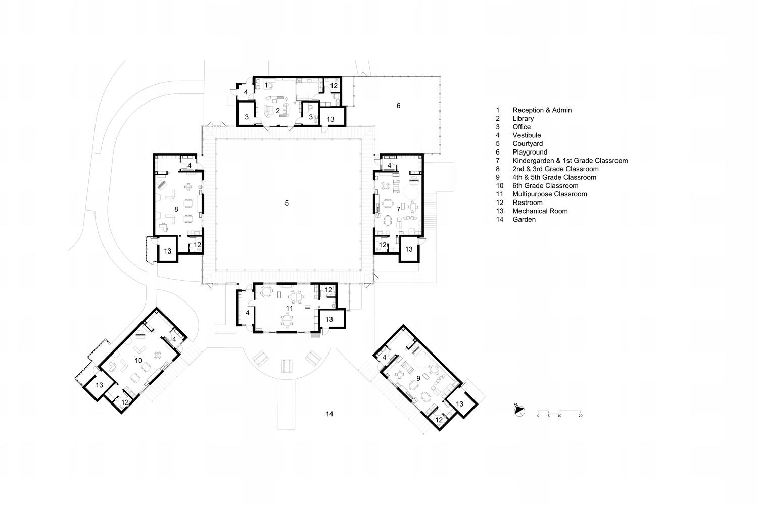
▽ 项目平面图




从一开始,设计团队和施工经理就共同努力,以最大程度减少对基地的破坏,并保护和改善基地的生产性生态系统和景观。学校的占地面积小,仅建立在以前受到干扰的土壤上,使基地的其余部分成为自然保护区,让当地的动植物都可以在此繁衍生息。雨水管理规划改善了下游湿地,而景观管理做法则消除了入侵的动植物物种,加强了本地物种,并建立了湿地增强区。



▽ 场地剖面图




学校的设计故意减少室内空间,同时使户外活动成为学习环境的重要组成部分。学校的六栋建筑包括四个单独的教室,一个图书馆和一个多功能空间。这些建筑物围绕中央庭院布置,中央庭院是学校的重点,广泛用于学习活动。建筑没有室内走廊,大窗户和门将每个教室直接连接到中央庭院,花园,游乐场和其他开放空间。在建筑物内,昼夜节律的自然光就已经十分充足,可提高白天的注意力和晚上的宁静。



该项目的另一个主要目标是通过提高能源效率来减少学校的生态足迹。建筑围护结构采用低空气渗透性的R-60屋顶,R-40墙壁,R-30楼板,并按照被动房标准进行了隔热和细化。增强的湿度管理包括防雨板壁板和防蒸气的耐候性屏障(WRB)。在校园内高效的机械系统不燃烧化石燃料,并且包括一个“智能”能量回收通风(ERV)系统,该系统不断监控室内温度和湿度并进行相应调整。机械(和结构)系统是可见的,构成了学生有关生态实践教育的一部分。



客户的首要任务是为教师和学生创造最安全,最健康的教室环境。要完成此任务,需要在设计和施工期间进行大量的材料和产品研究。尽管具有挑战性,但项目团队成功地设计出了没有RED清单材料,甲醛,挥发性有机化合物(VOC),化学阻燃剂以及其他过敏原和刺激性物质的建筑物。此外,测试和禁止任何含有痕量铅或其他有毒重金属的材料都付出了巨大努力。这为学生和教师创造了一个特别安全的环境,进一步帮助为学校设定了美丽而健康的空间标准。
 






来源网站:archdaily
翻译整理:WAQI
编辑:sheila

设计终究是一个不断学习的过程,WAQI作为一家学习型设计事务所,通常在设计的过程中,会分析甚至于拆建一些案例,
不定期分享一些心得。请扫描并关注公众号,更多精彩,与您共享。。。