反差与平衡|生态建筑
发布于:2022-08-22 09:32  浏览:

项目信息
 
项目名称: Vista住宅
 
设计公司: Diana Radomysler, Pedro Ribeiro, Samanta Cafardo, studio mk27 - marcio kogan
 
项目类型:建筑设计、景观设计
 
项目位置:巴西



随着巴伊亚水域的潮起潮落,特兰科索的海堤矗立在诱人的海滩和其缤纷的色彩面前。Vista 住宅位于其中一个 46 米高的悬崖之上。从鸟瞰的角度观察,这个修长的建筑体块仿佛像一个广角相机,将景观框了起来。







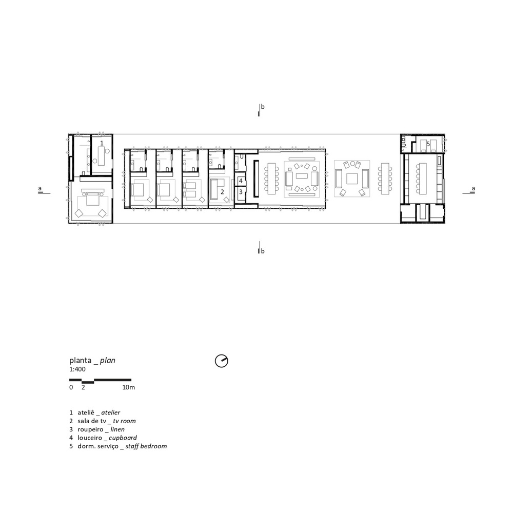
住宅的水平比例是通过对一个基本的乡舍结构的挤压而被确定的,并由此产生了一个 60 米长的建筑结构。在其边缘包裹的封闭体块中,包含了主人套房和厨房,房子通过一个巨大的宽屏跨度可以俯瞰无限的蓝色天空,或将自己置身于周围环境的色彩中。







金属结构材料上的大胆使用使得 45 米长的空隙被包裹它的质感材料的有机性所平衡。其外部结构的立面由灰白色的桉树板条包裹—让人联想到巴西东北部的传统材料,这些材料是由 biriba(瓣立楼林果)的细小枝条制成的—它们如同石化的根一样在立面上生长。而屋顶则是由回收的木材制成的,其瓦片手工是一块一块制作的。







▽ 项目平面图


在住宅的屋顶下,一个露天阳台贯穿整个跨度,连接两边的花园,并将白色的下方箱体包围起来。作为屋中之屋,这个体量容纳了三间卧室、一个小书房、一个浴室和一个用穿孔 Viroc 板(一种致密的木质和水泥复合材料)包裹的客厅。独立于主体结构,这个内部的房子可以被完全打开,因为 Viroc 面板可以被作为折叠屏风使用。









这种无束缚的结构和浅色的材料调色使得阳光和周围的颜色可以以一种电影般的方式进行互动。外面的景色通过有灵魂感的纹理进入室内空间。而折射和反射光线,特别是通过桦木板条和 Viroc 穿孔墙时,都会在每个表面上创造出光和影的舞蹈。



▽ 项目立面图






编后语:Vista 住宅以一种平衡的方式欣然接纳了反差感。当地的材料和家具的使用与大胆的结构和工程装饰进行对话,大自然的强烈色彩被建筑柔和的色调选择所过滤和框定。封闭的建筑体块向露天的阳台和走廊开放,而其明确的边界最终也被这种可渗透的生活方式所淡化。
 


来源网站:archdaily
翻译整理:WAQI
编辑:Sheila 

设计终究是一个不断学习的过程,WAQI作为一家学习型设计事务所,通常在设计的过程中,会分析甚至于拆建一些案例,
不定期分享一些心得。请扫描并关注公众号,更多精彩,与您共享。。。