漂浮的农场|田园综合体/农场建筑
发布于:2022-08-23 11:24  浏览:

项目信息
 
项目名称:荷兰漂浮农场
 
设计公司: Goldsmith Company
 
项目类型:农场建筑
 
项目位置:尼德兰




荷兰漂浮农场生产、加工并向消费者分销乳制品。它拉近了生产者和消费者之间的距离,缩短了供应链并提高了城市居民的意识。城市废物流动由剩余产品升级为有价值的牛饲料原料。来自Feyenoord足球场的酿酒谷物、土豆片和草屑也成为了饲料中的一部分。这有助于城市中的循环利用,并构成了一种相当有效的生产方式。漂浮农场是随后“食品带”规划的第一步。





该设计本质上是一个基于航海原理的农业建筑。组织,结构原理和材料的使用意在提高浮力和稳定性。这使得它变成一个多层组织,所有沉重的结构和技术组件被放置在建筑物的水下部分,而所有重要和透明的功能都位于顶部的轻量级结构中。这构建出一个三层的立面,由混凝土到半透明的聚碳酸酯再到完全开放。



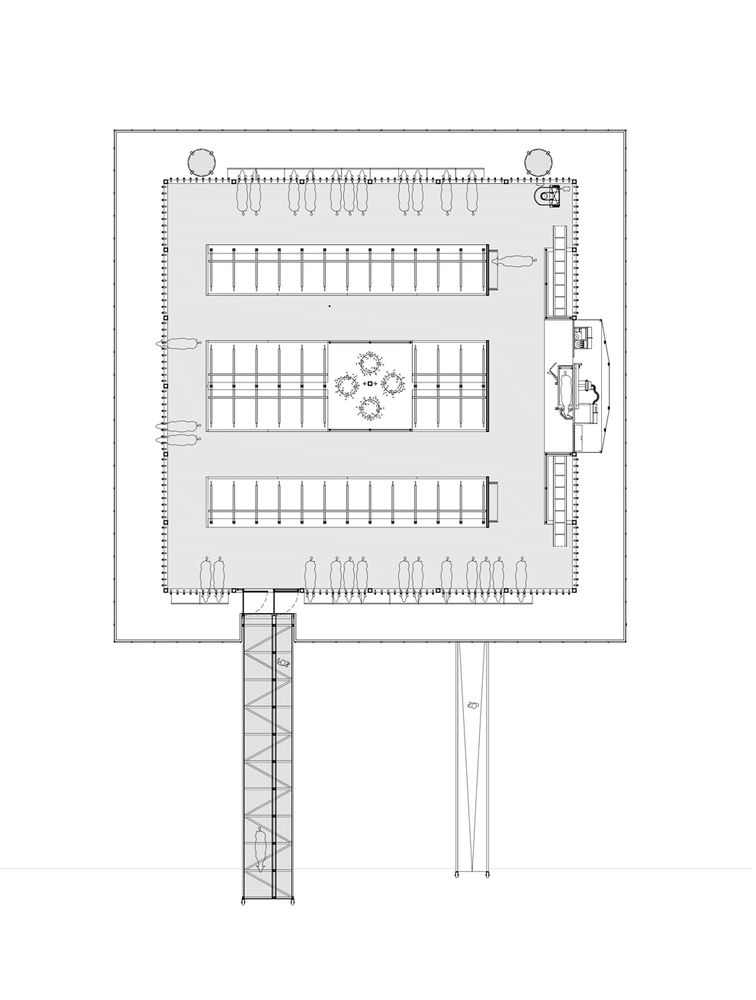
漂浮农场是一个紧凑的、有逻辑的堆叠结构,它将技术设施、存储、加工和生产融合在一个单一的实体中。三个相连的混凝土浮箱容纳了水果(酸奶的原料)的生产、雨水和废水的回收以及其他设施。工厂上层结合了牛奶和酸奶加工,饲养系统,粪便处理和零售。奶牛花园将容纳40头奶牛,这些奶牛将由粪便清理机器人、挤奶机器人和与动物福利相关的各种设备照料,比如放置在中央的用以保冷的“绿色柱子”。悬挑的地板和屋顶构建出多层的农业中心,并连接组合了其建筑。



围绕着奶牛花园的两个走廊通过两座钢桥垂直连接,将各种唤起人们回忆的空间串在一起,形成了一条具有教育意义的路线。沿着这条路线,游客可以在不干扰生产流程的情况下了解农场的所有活动。奶牛花园周围的饲养围栏和乳制品加工设备周围的玻璃墙有助于游览者感官体验的提升,突出了公司的透明化生产的特点。饲养,乳制品和粪便处理都组成了一个紧凑高效的系统,使这个独特的多层计划成为可能。



港口经济及其相应的动态贸易正在从盆地中消失;相对安静的住宅景观和热闹的商业中心之间与原来形成180度的对比。默威盆地有可能成为密集的Merwe-vierhaven(M4H) 地区城市景观中空广的空间。随着漂浮农场引入城市农业,这些美丽但逐渐孤立的空间,将在快速变化的环境中找到意义。











来源网站:archdaily
翻译整理:WAQI
编辑:Sheila 

设计终究是一个不断学习的过程,WAQI作为一家学习型设计事务所,通常在设计的过程中,会分析甚至于拆建一些案例,
不定期分享一些心得。请扫描并关注公众号,更多精彩,与您共享。。。