帕拉伊索之家|景观建筑
发布于:2022-09-05 10:08  浏览:

项目信息

项目名称:帕拉伊索之家

设计团队: Agustín LozadaGonzalo Perrote
 
项目类型:景观建筑
 
位置:阿根廷 科尔多瓦

 

Casa Paraíso回应了位于阿根廷科尔多瓦Quinta Los Nores社区的个人住宅的私人委托。该项目于2019年初开始参观该地段,我们对该地块上大量现有植被感到特别惊讶。植被主要位于地块的最后一部分,与La Cañada河密切相关,没有任何顺序或标准,也就是说,它形成了一个不规则的,移动的流体景观。第一反应是走到那里,呆在那片植被之下,感知和感受它所传达的东西。正是在那里,生活在这个地幔下的概念出现了,将房子定位在远离街道的地方,使其更接近河流,并享受在这种非常特殊和独特的小气候下的生活。







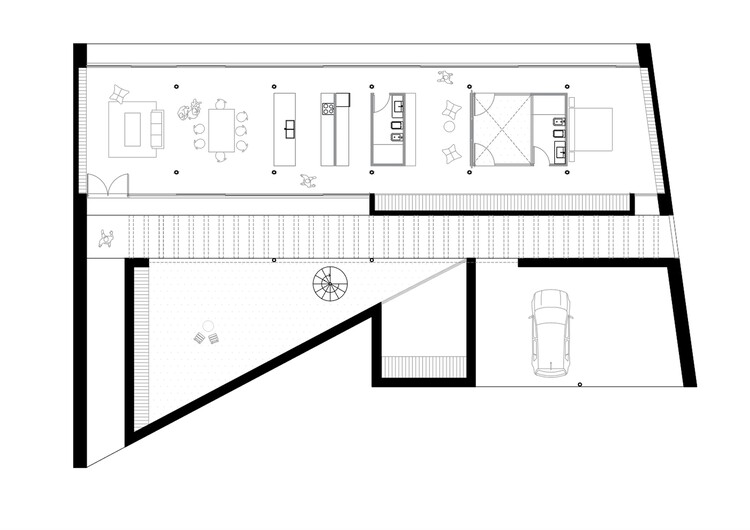
这所房子位于一个3600平方米的不规则地块上,面向南北(北朝向河流,南朝向街道)。关于这一点,在植入的多种可能性中,解决了两种可能的问题:植被作为房屋的背景和窗帘,或者生活在植被下方的植被,拯救了那些大树冠下方产生的特定微气候。与此相关,决定开发生活在大树天然森林下的前提,并遵循第一次访问该地点的冲动。通过这种方式,房屋的位置占据了该地块的总允许长度(遵守与每侧分隔墙3米距离的规定)。它以大型玻璃木工从头到尾开放,与下面的封闭花园有关,并延伸到现有植被的极限。相对于南部,房屋被一堵巨大的围墙封闭,该围墙复制了植被位置的不规则形状,从而与私人使用的庭院产生了密切的关系,该露台通过一个小坡道接近,该坡道复制了天然土壤的倾斜度,直到到达大型钢筋混凝土凉棚, 它从房子的尽头延伸到尽头,作为内部和外部之间的过渡。





大型混凝土甲板。遵循生活在大屋顶下的概念,允许功能随着时间的推移调整以适应不同的要求和用途,这个想法是定位一块27米乘8米的大板,该板板位于10个140毫米的圆形金属柱上,并由另一个较小的表面从大型混凝土凉棚补充, 它与波纹管同时工作,作为内部和外部之间的过渡空间。





在这种掩护下,一个巨大连续和无限的空间发展。在打破住宅内部限制的前提下,决定限制空间内用途的变化,即厨房,洗衣房和浴室等硬核作为大块服务,同时履行限制内部空间的功能。通过这种方式,在空间中感知到的灵活性是精致的动态,其中各种功能和用途在一个大的容器空间中组合在一起,而不会中断另一个。同时,所有空间都与外部景观有持续的联系,从而稀释了内部和外部之间的界限,并实现了空间连续性,从而扩展了房屋的使用。










大型混凝土覆盖层从一堵巨大的连续石墙连接并锚定在地面上,该石墙占据了地块本身的斜坡,从而反映了这些想法的出现,并参考了上下文为我们提供了什么。在这种特殊情况下,地块的一侧有一个倾向,因此,墙壁靠在上面,以便以后允许自己复制自然本身标记的线条,并将现有的树木包括在房屋内。这就是为什么墙壁延伸到房屋本身之外,并能够形成一个庭院,从而重新创造一个景观供沉思,私人使用。同时,它容纳了现有的植被和连接地球和天空的圆形楼梯。同时,这种使能墙本身就获得了容纳程序的能力。通过这种方式,墙从一个分离的元素,变成了一个包含并具有厚度的元素。这就是为什么在房子的不同通道中,墙壁获得了成为构成入口的元素的能力,后来成为图书馆,或储藏室,烧烤架等。












来源网站: www.archdaily.com
翻译整理:WAQI


设计终究是一个不断学习的过程,WAQI作为一家学习型设计事务所,通常在设计的过程中,会分析甚至于拆建一些案例,
不定期分享一些心得。请扫描并关注公众号,更多精彩,与您共享。。。