

植物温泉酒店坐落在巴西东南部曼提凯拉山脉中,三条富饶的河谷汇合在此。酒店海拔1.200米,被茂盛的中热带大西洋森林环绕着。

项目是从对附近区域的调研而展开的。在附近的主城镇,有大量建于19世纪的私人住宅,他们都是遵照着诺曼德风格设计的建筑。(诺曼人在11、12世纪统治或影响下的各个土地上开发的罗马式建筑风格,通常指英国罗马式建筑。)这个项目延续当地这种欧式的样式风格,并加入现代建筑的活力。
另一方面,建筑的整体设计始终围绕着这样的概念:把业主收藏的木材与优雅美丽的环境完美地结合。业主花了很多年的时间从不同的地方抢救和收集了美丽而稀有的木材元素,如梁、柱和拼花等等,希望它们在新的项目中通过改造利用,重获生命。超过250立方米的旧木头碎片(有些可以追溯到120多年前)被重新用在地板、门和结构构件上,证明了木材作为建筑材料的神奇的耐久性。





这个综合体由一个包含六个房间,一个餐厅和一个温泉浴场的主建筑构成。其它还有11栋别墅,形成一系列连在一起的景观,卧室、壁炉和迷人的浴室提供了一系列连续的体验。酒店配备图书馆、游泳池、健身房,专业桑拿房、疗养室、游泳池和温泉浴场等设施。




主楼的设计重点是协调漂浮在巨大玻璃幕墙上的斜屋顶,创造一个不对称的建筑,并混合当地的石头和木材等乡土材料。一个有着独特风格的建筑脱颖而出:大量的石头,高耸的玻璃幕墙,巧克力色石板岩和旧的回收的木柱和横梁彼此相结合。


未经加工的木材用螺纹连接在一起形成了一种粗狂的美感,它超越了自身的结构功能,成为了建筑美学和室内结构的一个关键因素。在面对复杂的木结构问题时,我们与木工专家密切合作,运用技术和独创性方法巧妙的解决了问题。这些做法为项目的美观性奠定了基础。




石头与木材的结合能够保持温暖的感觉,还能够让这种黄色色调保持一种细微的差别。因此,周围森林的绿色是唯一的其他颜色与其搭配的色调。由于巨大的玻璃幕墙的亮度和透明度,有着天然的绿色为背景的室内装饰设计因为其外面的景色而变得更加漂亮。










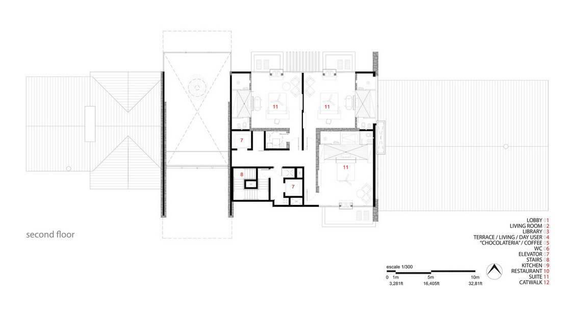
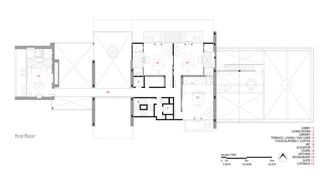
楼层平面图



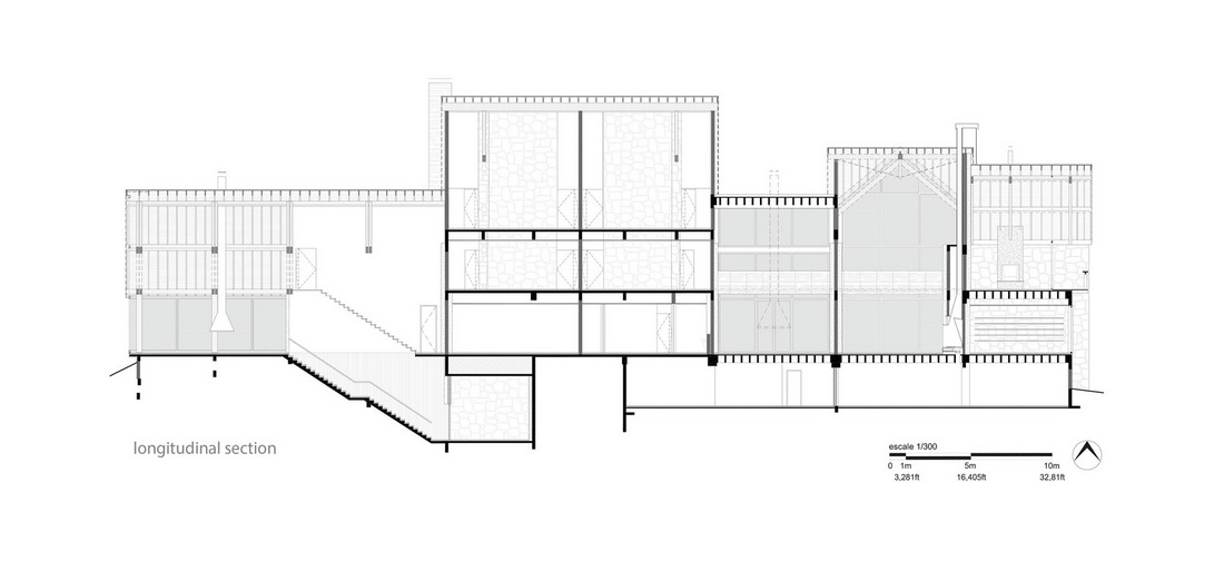
剖面图
立面图




资料来源: https://www.archdaily.com
