“超极游乐场”度假别墅
发布于:2018-09-12 11:19  浏览:

 

这是一个非常有意思的以儿童游乐场为主题的度假别墅。
Jerry House是业主Sahawat夫妇及四个孩子位于七岩海滩的度假住宅。2011年,Onion受到业主委托将当时在建的海边别墅变成家庭成员及朋友的聚会之所。业主希望拥有一个有别于传统住宅(以室内通道最少化为原则)的特殊度假住宅,一个他们在曼谷家中无法享受到的快乐玩耍的乐园。




跑、爬、藏、悬挂、甚至下落等身体活动在日常生活中并不常见。Onion将1940年上映的美国动画片“猫和老鼠”作为该项目室内设计的参照标杆。如果Jerry为自己修建房子的话,很有可能会是一个巨大的奶酪房,里面设有帮助自己躲避Tom追赶的“莫比乌斯圈”逃跑路线。建筑师将该住宅设计成一个深受孩子们喜爱的乐园,让全家在七岩海滩的假期更有意义。



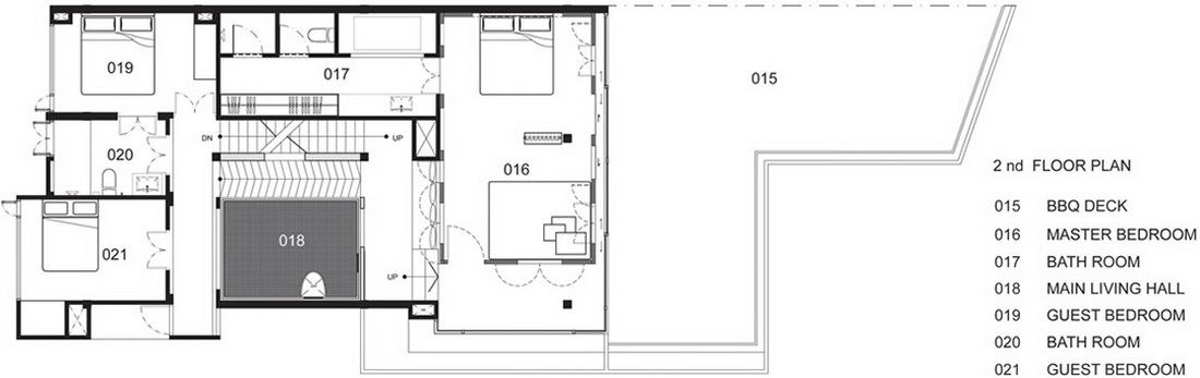
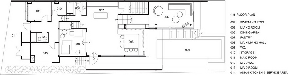
Onion设计的焦点是各通道的连接。除了已有的楼梯和斜坡之外,建筑师还在中央通道内增加了垂直通道。该空间现被称为“主生活厅”。Onion用定制的绳网打造了五层不同倾斜度、高度及尺寸的水平网层。五层绳网在三层高的生活厅内充当着地板的角色,并且分别在每一层的不同位置设有一个孔洞。父母和孩子们可以通过金属楼梯从地面层爬到三楼的一间儿童房。由于有下层绳网的保护,孩子们跳出床外或掉进孔洞都不会产生危险。悬吊在绳网上成为一种新玩法。抬头看向天花板上的镜面时,吊挂在绳网上的人似乎悬浮在空中,层叠的网层看起来比它们实际的高度更高。








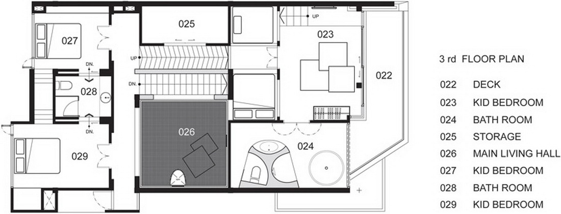
三层卧室另设其他通道。一条“隧道”将墙体内的两个内陷卧室连接起来。孩子们需要通过梯子或台阶进入卧室,还能通过隧道交换卧室。由第五层网上的隐藏滑动门可以从主生活厅直接到达卧室。在隧道内爬行进入其他卧室是Jerry House设计的亮点。





颜色的运用提高了视觉体验。Onion将主生活厅、起居室、连接泳池和地面层服务区域的餐厅等公共空间涂成了白色。而卧室则用不同的颜色打造了不一样的个性色彩。二楼的主卧采用芥末黄色,客房为淡紫色。隧道和墙内的睡眠区域为蓝色。三楼的卧室为淡绿色。若孩子们将房门从内部锁上,那么进入房间的唯一途径就是只能容纳孩子通行的“隧道”。










2014年的新年假期,Sahawat一家首次住进Jerry House. 主生活厅为包括祖母在内的每一个家庭成员带来了愉快的假期时光,这里成为Jerry House
最常用和最富生气的空间。孩子们甚至不愿意睡在卧室,而是将枕头和被子拿到绳网上来睡觉。他们睡在相当于二层半的第四层绳网上。Jerry House
让孩子们睡在空中的梦想成为现实。

 

 

 





来源网站https://www.gooood.cn
 


设计终究是一个不断学习的过程,WAQI作为一家学习型设计事务所,通常在设计的过程中,会分析甚至于拆建一些案例,
不定期分享一些心得。请扫描并关注公众号,更多精彩,与您共享。。。