首页
Home
WAQI做些什么
Services
WAQI的作品
Projects
WAQI是谁
About us
WAQI学院
College
联系WAQI
Contact us
logo
哥斯达黎加Gilded Iguana度假酒店——生态酒店
发布于:2018-09-19 09:56 浏览:
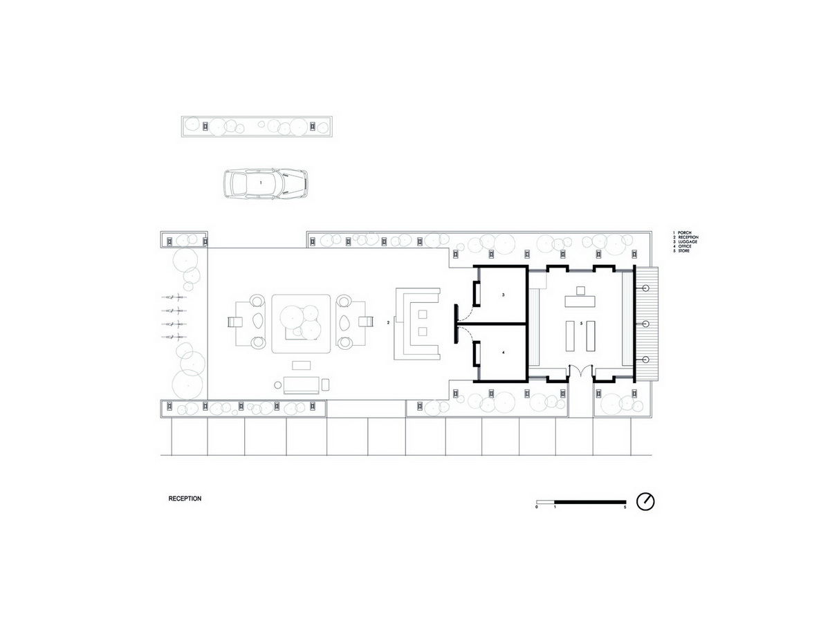
项目信息
设计 :Studio Saxe
位置 :哥斯达黎加
类型 :酒店建筑 度假酒店 生态酒店
材料 :柚木 棕榈草 黄麻织物
设计师在场地周边保留了原有的树木,并增建了新的建筑,同时创造了以泳池为核心的场所供所有的客人享用。新建的房间连同接待区和 SPA 区结合旧建筑的元素,如木框架和带手工棕榈茅草屋顶的阳台“palapas”,这种用于遮荫的屋顶在沙滩上随处可见。“Gilded Iguana 酒店被设计成过去的热带标志和新的柔和的、不做作的、永恒的热带现代性的和谐“对话”,它静静地坐落在风景中,表达出我最希望保留的轻松的城镇氛围。”
与拉丁美洲酒店典型的封闭式酒店相比,Gilded Iguana 酒店的接待区和餐厅完全向诺萨拉镇开放,创造出微妙、轻松、朴实的气氛以迎接任何人的光临。整个建筑和内部设计结合使用了简单的未抛光的材料,如柚木,棕榈草,黄麻织物和混凝土砖以及运用当地材料和工艺制造的现代热带家具。
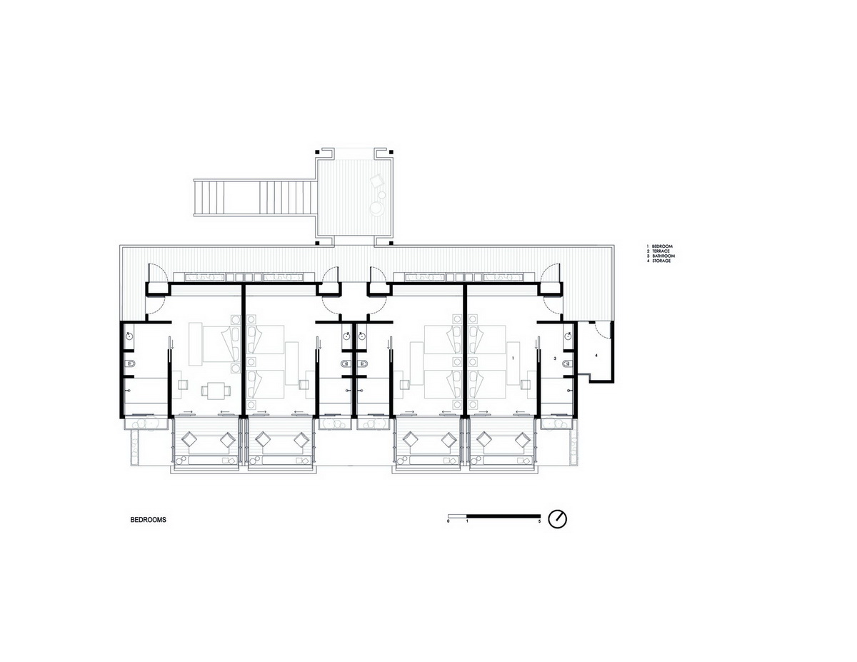
酒店房间为不同需求的旅行者创设了各个方位的房间。泳池房是家庭旅游的理想场所,丛林房创造了更私密的体验,冲浪房促进旅客之间的交流。每个房间都有一个大型的室外阳台,将卧室与室外空间紧密联系起来。私人花园被引入浴室,光影的游戏不断填充着每处空间,营造强烈的身处自然的感觉。
在 Gilded Iguana 行走总能有邂逅和交融的机会。工作室精心布置了整个场地的座位、水栈和冲浪台,促进客人之间的交流,为游客提供实实在在的体验。
泳池区是 Gilded Ig
uana 为客人提供的核心部分。这里将阳光和水聚集在一起,大人和孩子可以在这里享受热带气候、放松、阅读或是玩耍。这个简单的几何形状和天然的石头瓦片将旧房子和周边的新建筑完美的结合在一起。
改建的旧房在保证其精简本质的同时完全满足最新的建筑安全准则。新的混凝土地基支撑着钢框架和柚木,创造出简单高效的建造手法。新的房间主要由耐久度高以及以维护需求低的煤砖为核心建成的,然后外部包裹钢木结合的框架,形成阳台和室外平台来创造建筑的美感。接待室和 SPA 区用钢木框架、简单的水泥瓦和黄麻编织的天花板解决了大跨度的问题。
The Gilded Iguana 酒店通过生物气候设计,利用日照方向、阴影、风速和其他被动性策略来控制温度。此外,Studio Saxe 还致力于使用有效的可持续技术手段,如水循环系统,太阳能热水和光伏发电。利用当地的资源,如使用来自可持续认证农场的柚木以及贯穿整个项目的当地劳动力,以此为社区提供新的就业机会,对诺萨拉镇产生积极的影响。
编后语:质朴自然的材料,简单的构造,却建造出了美的场地。这种舒适、和谐、生态质朴,回归自然的做法,也是我们一直所追求的。
想要了解WAQI设计的生态酒店案例可微信搜索并关注“WAQI设计”
来源网站:
www.qbihui.com
整理:WAQI
设计终究是一个不断学习的过程,WAQI作为一家学习型设计事务所,通常在设计的过程中,会分析甚至于拆建一些案例,
不定期分享一些心得。请扫描并关注公众号,更多精彩,与您共享。。。
马上分享WAQI:
微信
QQ空间
新浪微博
上一个
下一个