首页
Home
WAQI做些什么
Services
WAQI的作品
Projects
WAQI是谁
About us
WAQI学院
College
联系WAQI
Contact us
logo
路过,绿色城堡|De Baarsjes社区垂直景观设计
发布于:2018-10-22 09:33 浏览:
位于阿姆斯特丹的De Baarsjes社区聚集了来自世界众多不同国家和地区的人民,是名符其实的社会大熔炉。为了提高社区居民的生活质量,政府希望为这里建设一个多功能综合建筑。考虑到场地的公园背景,建筑师为建筑铺设了厚厚的绿植外皮,使它看起来像座藤草肆意蔓延覆盖的古老城堡,点缀其间的明亮的玻璃幕墙不时带来惊喜。众多窗口开拓了视野,屋顶天窗将光线引入建筑内部。低处的窗户框住街道和阳光露台的景致。
项目信息
设计公司:LABLAND architects ApS
项目类型:生态建筑设计
位置:阿姆斯特丹 荷兰
▽ 社区外观
这个被植物包裹的建筑就像是公园中一个古老的,长满杂草的构筑物侧翼。而你仔细再看,能看到点缀其上的明亮大玻璃幕墙。人们通过不同的入口到达自己想去的地方。建筑宛若隐藏在山洞里面的城市,各个开窗为各种用户提供外向视野,屋顶天窗则让阳光深入建筑内部。低处的窗户框住街道和阳光露台的景致。
▽ 室内项目与景观
建筑中的每个功能都能为建筑带来不同的用户,开放的内部空间能让人们可以看到其它活动发生并激发他们在这里进行更多的活动。
▽ 室外项目与景观
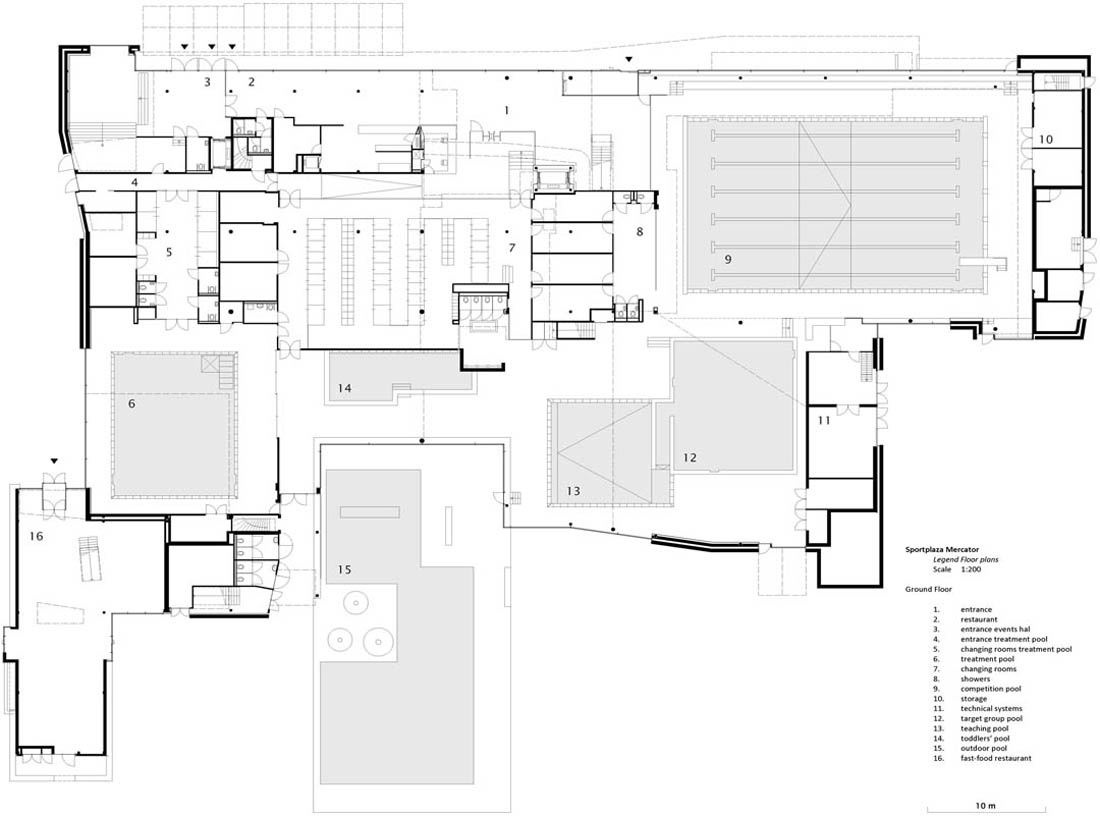
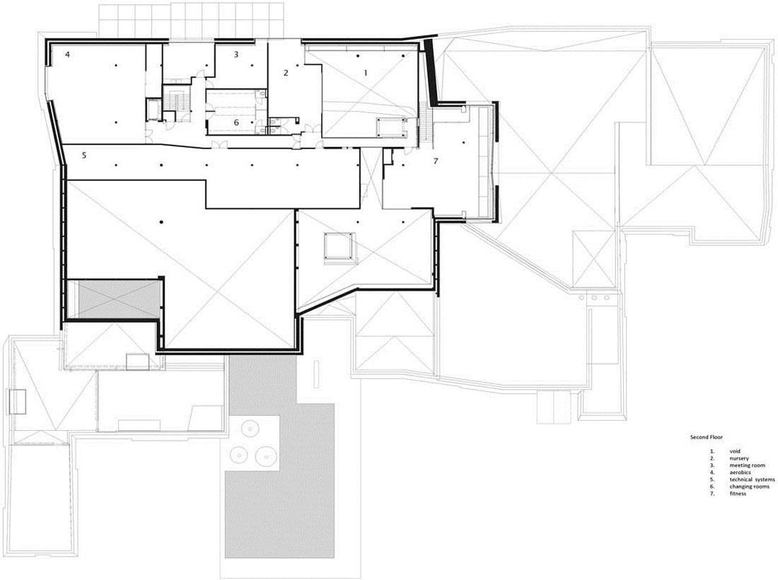
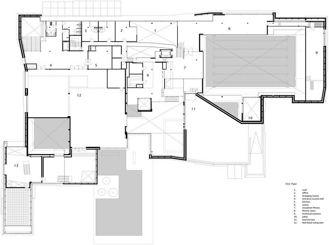
▽ 平面图
编后语:
中国作为世界上最大的工地之一,众多城市建筑、公共地标的新建,甚至于乡镇与乡村(历经新农村,新集镇,田园综合体乃至美丽乡村)的建设,所有新建项目大部分都力求标新立异,很少考虑融入当地环境,也较少考虑自然与建筑的融合。而本项目的积极意义在于,通过建筑与自然的对话,或者说用现代建筑设计的一些手法,直接使用植物作为建筑的外表皮,从而融于整个场地,为场地创造一个自然、温暖、轻松、自由的空间。这种生态建筑的设计手法,值得城市公共建筑、乡村公共文化活动中心和田园综合体(接待中心)等借鉴。同时也为度假酒店,度假山庄乃至低密度办公区,提供了一个较好的范本。WAQI设计之
中山产业园项目(点击可跳转阅读
),也类似与如此。自然、生态和有温度是人性化建筑的三元素,也是WAQI的建筑设计观,为此我们在路上。
来源网站:www.chinaasc.org
翻译整理:WAQI
设计终究是一个不断学习的过程,WAQI作为一家学习型设计事务所,通常在设计的过程中,会分析甚至于拆建一些案例,
不定期分享一些心得。请扫描并关注公众号,更多精彩,与您共享。。。
马上分享WAQI:
微信
QQ空间
新浪微博
上一个
下一个