五重奏|森林建筑设计以及景观规划
发布于:2018-10-31 12:18  浏览:

        森林五重奏是城市居住以外的另一种选择。坐落在美丽的Yanggu山脉,一群由个人住宅共同形成理想的归隐地方。他们都是亲戚和挚友,选择一起退休在这个美丽的世外桃源中。每个家庭的建筑风格和主要建筑材料都非常相似,然而,由于每个房子坐落的特殊地形和每个家庭生活习惯的差异,每座住宅又都是独一无二的。
 
 
项目信息
设计公司:Chiasmus Partners
项目类型:建筑设计、景观规划
位置:韩国
 
 
▽ 建筑外观图

 
 
 
 
▽ 总平面手稿图          
 
 
 
▽ 住宅建筑设计受到传统东方亭榭的启发

 
 
 
        东方的亭榭,尤其是韩国花园中的有着面向不同景观十分特殊的定位方式,而在空间上又是邻近的。通过合理的规划,空间和景观的差异使其布置邻近而不拥挤。
 
▽ 建筑选择的材料十分实用

 
 
        采用一种防腐红木,住宅外观在持续很长时间后,由于木材自然衰老过程而变成银灰色。室内则采用了简单的材料和颜色,然而由于在每个家庭中不同的空间体验,它又显得无限丰富。
 
▽ 来自传统东方亭榭的第二个启发是向自然开放
 
 
 
 
 
 
        通过这种方式,住宅不是横插进入自然的物体,而是允许自然穿过的围合。大多数住宅向多个方向的景观开放。一些住宅有“沟”,使光、风和景观通过。
 
▽ 每户住宅设计又各有不同
 
 
 
 
 

       设计过程中,每个家庭都提供了许多设计输入和无尽的谈话,这是他们的梦想家园。对当他们都搬来时,不是嫉妒邻居的家,而是每个家庭都固执坚持自己的家是最好的。但是,没有所谓“最好”的家,只有最适合你自己的。
 
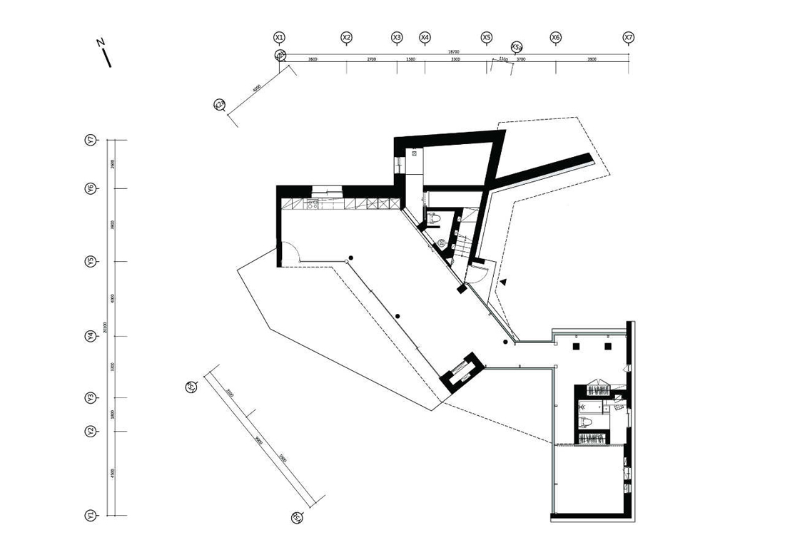
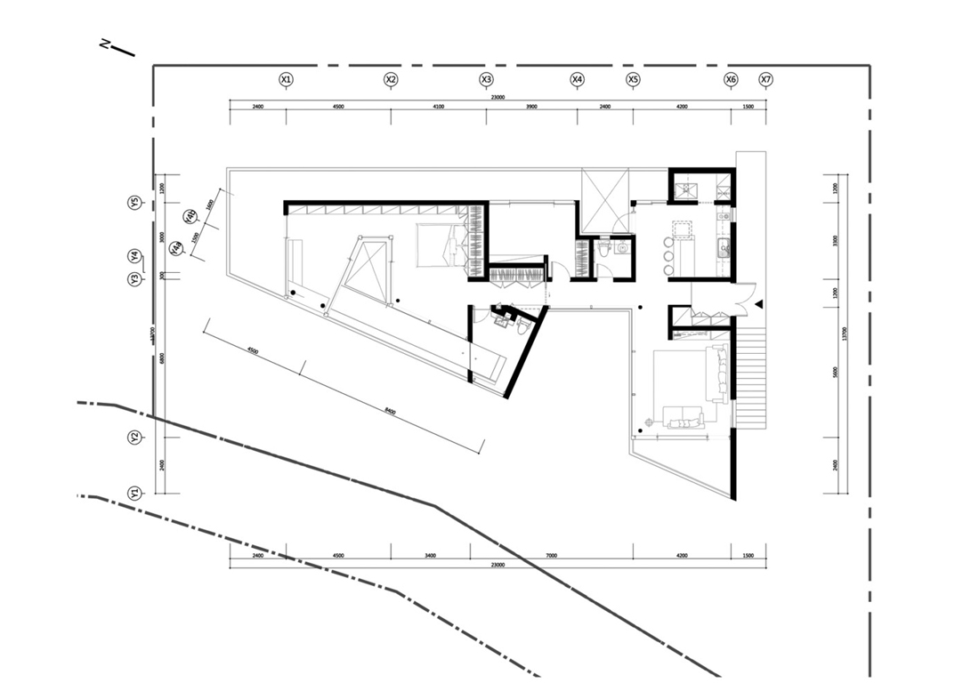
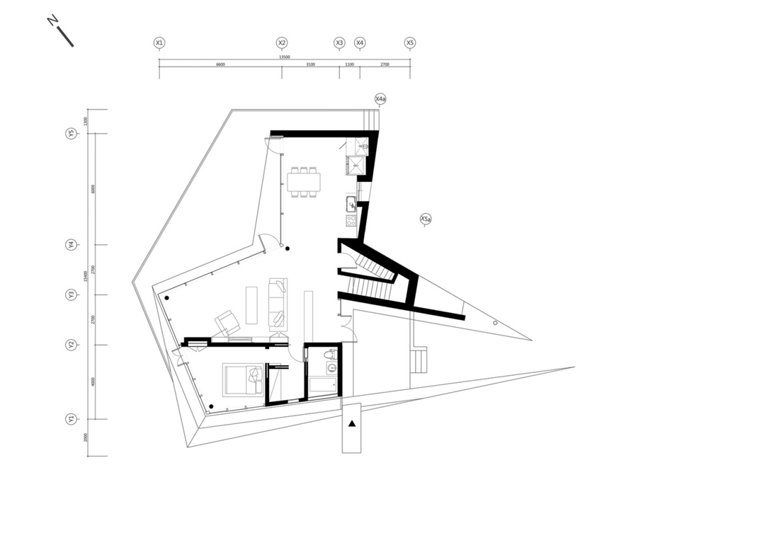
▽ 平面设计图
 
 
 
 
 
 
 
 
 
▽ 立面图
 
 
 
 
 
 
 
 
 
 
 
 
 
 
 
        编后语:归隐山林,现在已经不是什么遥不可及的梦想了。现如今很多楼盘会把乡野别墅建在山上,因此建筑设计上大多都是依山而建的群居式千篇一律的建筑。本文的建筑设计以及景观规划给了我们不一样的观点。建筑与景观有机的结合起来,并不是让建筑突兀的插入自然景观当中。通过建筑与自然的对话,透过凉亭设计的灵感直接利用四周自然景观,为场地创造一个自然、温暖、轻松、自由的空间。这种生态建筑的设计手法,值得城市公共建筑、乡村公共文化活动中心和田园综合体(接待中心)等借鉴。自然、生态和有温度是人性化建筑的三元素,也是WAQI的建筑设计观,为此我们在路上。
 
 
来源网站:www.archdaily.cn
翻译整理:WAQI
 
 
 


设计终究是一个不断学习的过程,WAQI作为一家学习型设计事务所,通常在设计的过程中,会分析甚至于拆建一些案例,
不定期分享一些心得。请扫描并关注公众号,更多精彩,与您共享。。。