酒店清新怡人的半公共空间|度假酒店设计
发布于:2020-07-02 10:21  浏览:

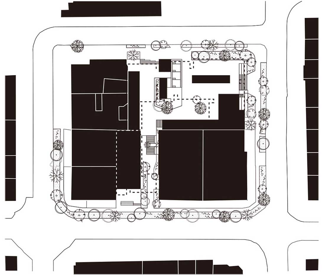
该酒店位于麦德林的一个布局方正的传统街区。新落成的建筑完善并打通了街区的结构,创造出一个便于人们通行的半公共空间,将步行通道、楼梯、庭院、裙楼、平台、露台和带顶广场融合在同一处场地。建筑本身扮演着城市交叉口的角色,多条路径提供了良好的渗透性,大面积的本地植物营造出清新怡人的环境。
 
建筑旨在将市民的日常生活与酒店客人的活动融合起来,它被设想为一个多样化的文化活动中心,通过艺术、美食节、博览会、音乐会、戏剧、夜生活等各式各样的娱乐形式来激活当地的创意产业,让酒店生活与城市背景形成相辅相成的关系。
 
 
 
 
 
 
 
项目信息
设计公司:Plan:B Arquitectos
项目类型:建筑设计、精品酒店设计、景观规划设计
位置:哥伦比亚
 
 
 
 
 
 
 
▽ 建筑外观

 
 
 
 
 
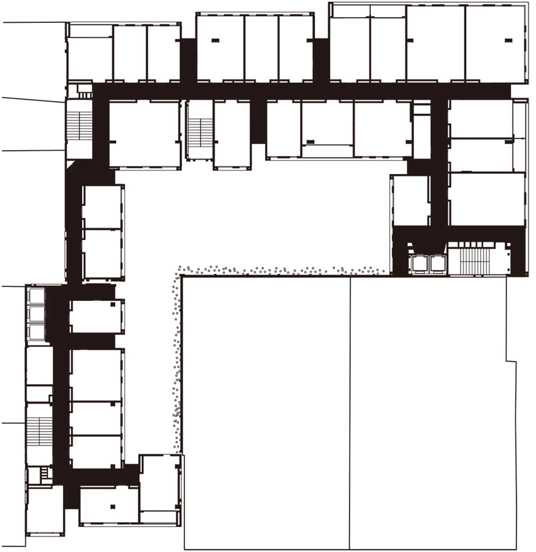
酒店包含了十几种类型的房间,并根据房型大小进行组合和堆叠。阳台、花园和露台将房间相互隔开,同时也将热带气候下的新鲜空气、绿植和舒适的温度带入室内。根据空间的高度及其与建筑内部和外部空间的关系,每间客房都拥有其独一无二的位置:有些位于拐角,有些朝向庭院,还有的朝向内部路径或城市街道。
 
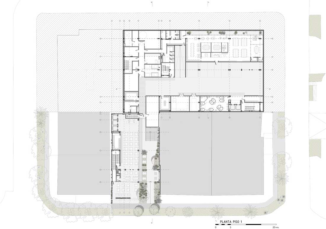
建筑的走廊引入了自然光线。高度不同的露台边缘种满了植物,提供了面向城市的观景点:朝东可以欣赏到山峦和El Poblado街区内的建筑,朝西则可以望见山谷。酒店内部的活动设施也非常丰富,包括游泳池、酒吧、餐厅和一个露天电影院。
 
▽ 广场设计

 
 
 
 
 
 
 
 
 
建筑的结构设计带来了良好的采光,且有利于将人们吸引至半公共区域。结构力的表达影响了建筑的形式,使其成为一个既厚重又通透的“机器”,兼顾了稳固和亲切的感觉。建筑的内部网络通过数个固定的点实现连接,包括7座楼梯、6座电梯以及走廊、夹层、坡道和大门等,为不同类型的活动赋予了灵活而开放的动态体验。访客们可以在不同的空间中自由漫步和探索,让好奇心得到充分满足。
 
“阴影”构成了整个酒店外观及其周围环境的“主导色”。麦德林的强烈日照为全天赋予了丰富的光影效果,阴影的强度随着时间的推移不断变化,但仍旧以灰色为主调。建筑立面也采用了相同的配色,与周围茂密的植被形成对比与融合并存的关系,与此同时,细腻的灰色调又让它在麦德林的城市环境中显示出独特的个性。
 
▽ 室内设计

 
 
 
 
 
 
 
 
▽ 房间设计

 
 
 
 
 
 
 
 
▽ 景观设计

 
 
 
 
 
 
 
▽ 细节设计


 
 
 
 
▽ 平面图

 
 


▽ 立面图
 
 
 




 
 
 
编后语:下沉的空间酒吧,半开放式的公共空间,郁郁葱葱清新怡人的景观设计,都让度假酒店变得更加幽深与开放,让周边居民能够进入酒店感受到酒店开放的氛围同时,也给了客人们幽深的居住环境,两者并存却不冲突。更多关于精品酒店设计、度假酒店设计、生态建筑设计的案例,请点击下面的拓展阅读进行跳转阅读。
 
 
 
来源网站:www.archdaily.com
翻译整理:WAQI






拓展阅读

故事未了的江湖客栈|绿境景色花园客栈设计
青旅社区---阳朔东院弥香客栈
三亚洲际度假酒店[酒店设计]
景逸庭院式精品酒店改造




设计终究是一个不断学习的过程,WAQI作为一家学习型设计事务所,通常在设计的过程中,会分析甚至于拆建一些案例,
不定期分享一些心得。请扫描并关注公众号,更多精彩,与您共享。。。