首页
Home
WAQI做些什么
Services
WAQI的作品
Projects
WAQI是谁
About us
WAQI学院
College
联系WAQI
Contact us
logo
社区概念的度假胜地|度假酒店设计
发布于:2020-07-10 13:48 浏览:
业主计划在比格文岛(Bigwin Island)上建造40座度假小屋,本项目便是其中最先建成的三座。这三座小屋坐落在一片由枫树、松树和白蜡树组成的树林间,均享有高尔夫球场和远处湖泊之间一览无余的景观:比如树木下的牧场、绿树成荫的露天空间等。建筑师从自然景观入手来确定小屋在场地上的具体位置、建筑自身的形式尺度和通透度等。根据不同的景观特点,建筑师创作了三种小屋的空间模板:湖边的线性空间、树林里的围合庭院式空间和草地上的风车式空间,计划建造的40座小屋都将基于这三种模板进行设计。
在本项目中,设计师以比格文岛的具体场地特点为切入点进行设计。从历史上来看,这个以欧及布威族印第安人(Ojibway)的族长John Bigwin的名字来命名的小岛。曾是一个神圣庄严的宗教场所,对该地区的土著居民而言意义非凡。自岛上的第一座高尔夫球场于1922年建成后,几十年以来比格文小岛一直是加拿大工业巨头、好莱坞明星、甚至是荷兰王室成员所热衷的避暑圣地。
本项目是业主Jack Wadsworth所构想的小岛复兴计划的一部分。Wadsworth取消了原定的拥有150间客房的酒店,希望能在岛上建造40座面积从1230平方英尺到1350平方英尺不等的度假小屋。本项目要充分尊重比格文岛的历史以及穆斯科卡(Muskoka)地区独特的建筑美学和环境,应用一系列实用的建筑及施工技术,并最大限度地提升能源效率和可持续性。
项目信息
设计公司:MacKay-Lyons Sweetapple Architects
项目类型:建筑设计、度假酒店设计、景观规划设计
位置:加拿大
▽ 设计构想
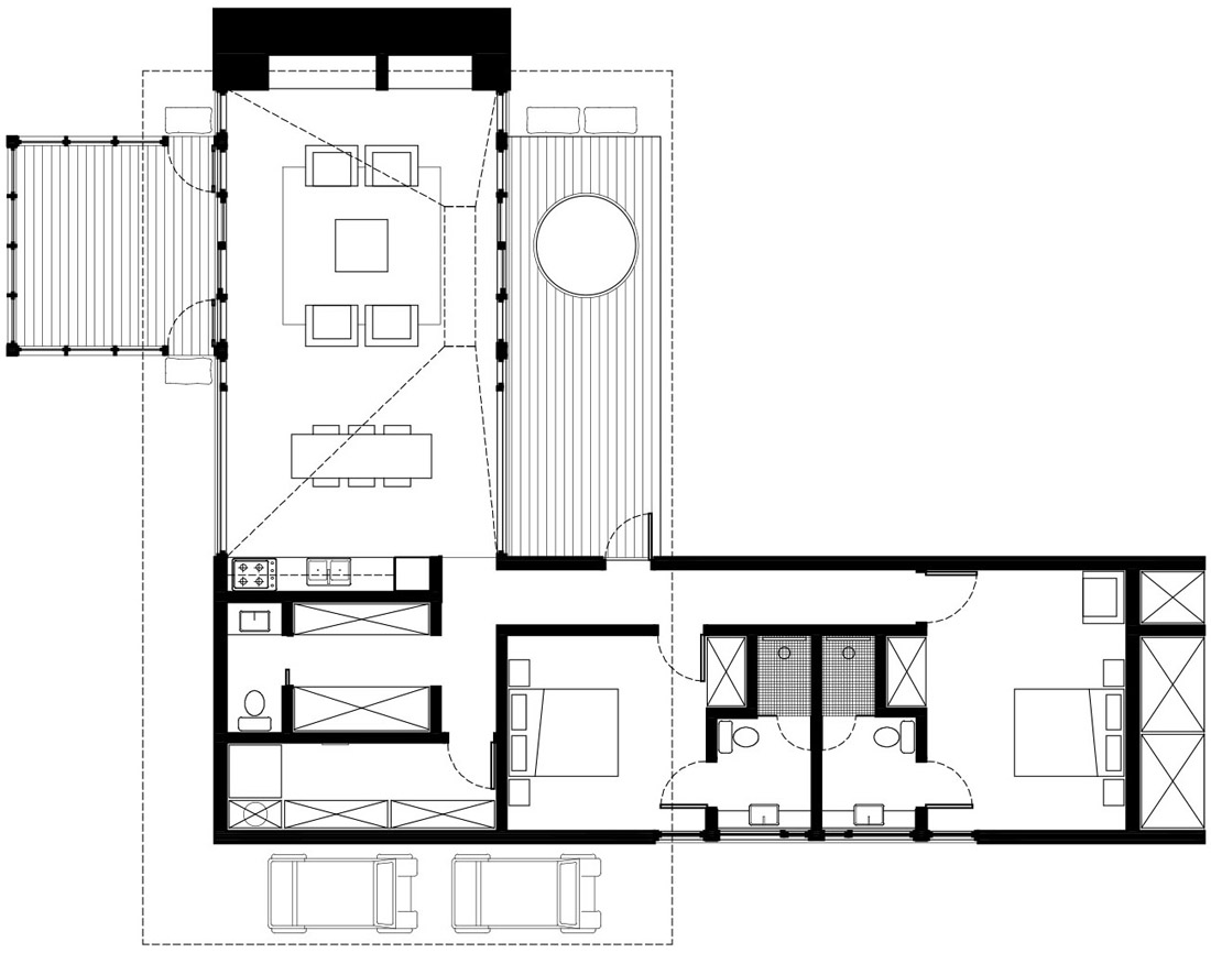
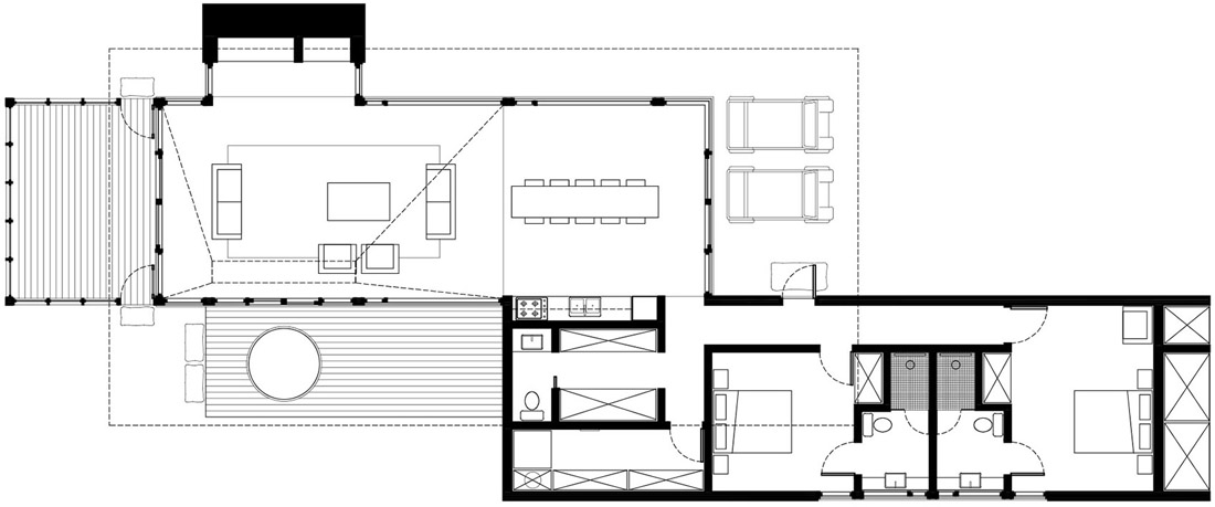
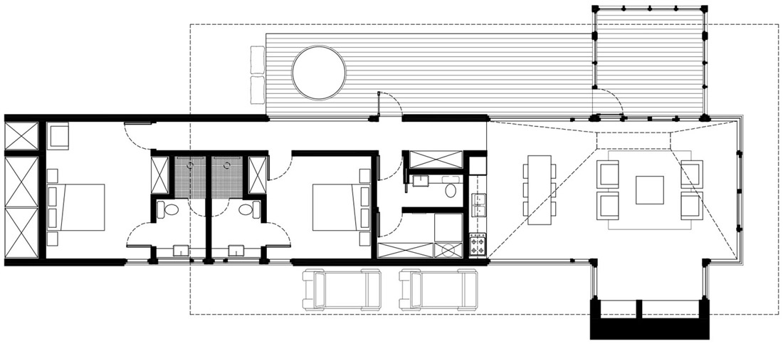
小屋借鉴了穆斯科卡地区建筑所特有的屋顶形式,选择天然的建筑材料,营造出一种遗世而独立的高雅氛围。每座小屋都由一个隐蔽的门廊、一个露天平台、一个壁炉地板、一个公共空间、一个卧室体量和一个大屋顶等简单的要素组成。从具体的造型和功能上来看,木饰面的方盒子体量是私人卧室空间,与之毗邻的玻璃体量是开放式的起居室空间和餐厅空间,一个铺设着雪松瓦的巨大四坡屋顶横亘在这两个体量的顶部。
小屋外观造型精致低调,内部环境(尤其是公共起居室空间)亲切通风且充满活力。室内也采用木饰面,象征着无缝连接的室内外空间。坡屋顶上开有天窗,确保了室内空间的自然采光。此外,每座小屋都设有两间优雅舒适的卧室和浴室,为入住者提供了一个理想的环境。
在本项目中,设计师的基本原则之一是尽可能地减少建筑对环境的影响,因此他们将部分空间底层架空。这一举措不仅很好地适应了高尔夫球场在秋、春两季之间所必需的经历的短暂的寒冷气候,更将环境的可持续性纳入到了设计之中。建筑材料和施工人员都来自当地。在寒冷的冬季里,地热供暖系统通过地板将从湖水中收集的热量带入室内。而当夏季来临的时候,自然被动式通风系统则会引导室内的热空气通过屋顶上的气孔排出室内,以实现自然降温。
▽ 建筑外观
比格文小屋位于加拿大安大略省穆斯科卡地区的湖中岛上。这些小屋不仅在形式上呼应了场地的具体条件,更充分尊重了历史,借鉴了穆斯科卡地区传统一体式住宅的建筑元素,如由瓦片铺就而成的大型屋顶和门廊等。小屋巨大的屋顶横亘在下方两个建筑体量之上,地板则局部架空,从而确保了草地牧场的完整性,达到了保护当地鹿群栖息地的目的。
比格文小岛上的这些小屋既具有自身特色,又充分尊重了历史。这些由几个空间原型发展而来的小屋经久耐用,具有普遍性,既提供了一个与时俱进的度假胜地,又满足了疲惫的人们偶尔避世的愿望。
▽ 室内设计
▽ 景观设计
▽ 平面图
编后语:设计师将整个岛屿打造成了一个社区。建筑不仅与景观融为一体,还能实现彼此互动,通过通透开放的建筑造型和布局实现了建筑相互之间的对话。各个小屋相距不远,为邻里之间的互动提供了可能性,提供野炊和儿童游戏的空间。更多关于度假酒店设计、生态建筑、建筑设计的案例,请点击下面的拓展阅读进行跳转阅读。
来源网站:www.goood.cn
翻译整理:WAQI
拓展阅读
故事未了的江湖客栈|绿境景色花园客栈设计
青旅社区---阳朔东院弥香客栈
三亚洲际度假酒店[酒店设计]
景逸庭院式精品酒店改造
设计终究是一个不断学习的过程,WAQI作为一家学习型设计事务所,通常在设计的过程中,会分析甚至于拆建一些案例,
不定期分享一些心得。请扫描并关注公众号,更多精彩,与您共享。。。
马上分享WAQI:
微信
QQ空间
新浪微博
上一个
下一个