青旅建筑内部的“街道”|青旅设计
发布于:2020-07-16 09:41  浏览:

HO住宅楼位于Donado-Holmberg corridor的街角,作为当地都市化的一部分,旨在为年轻现代的生活社区提供一种别致的风格特色。设计师在设计过程中,充分考虑了一旁百年大树作为街区代表的重要性,并将其定位为本次设计的第一要义。同时,设计师还在住宅楼的临街层设计了相应的商业空间和一些可供中小型工作室使用的空间,旨在和既有的街区产生一个和谐健康的互动关系。
 
 
 
 
 
 
项目信息
设计公司:Grupo Uno en Uno
项目类型:建筑设计、青旅设计、景观规划设计
位置:阿根廷
 
 
 
 
▽ 俯瞰图

 

 
 
▽ 建筑外观

 
 
 
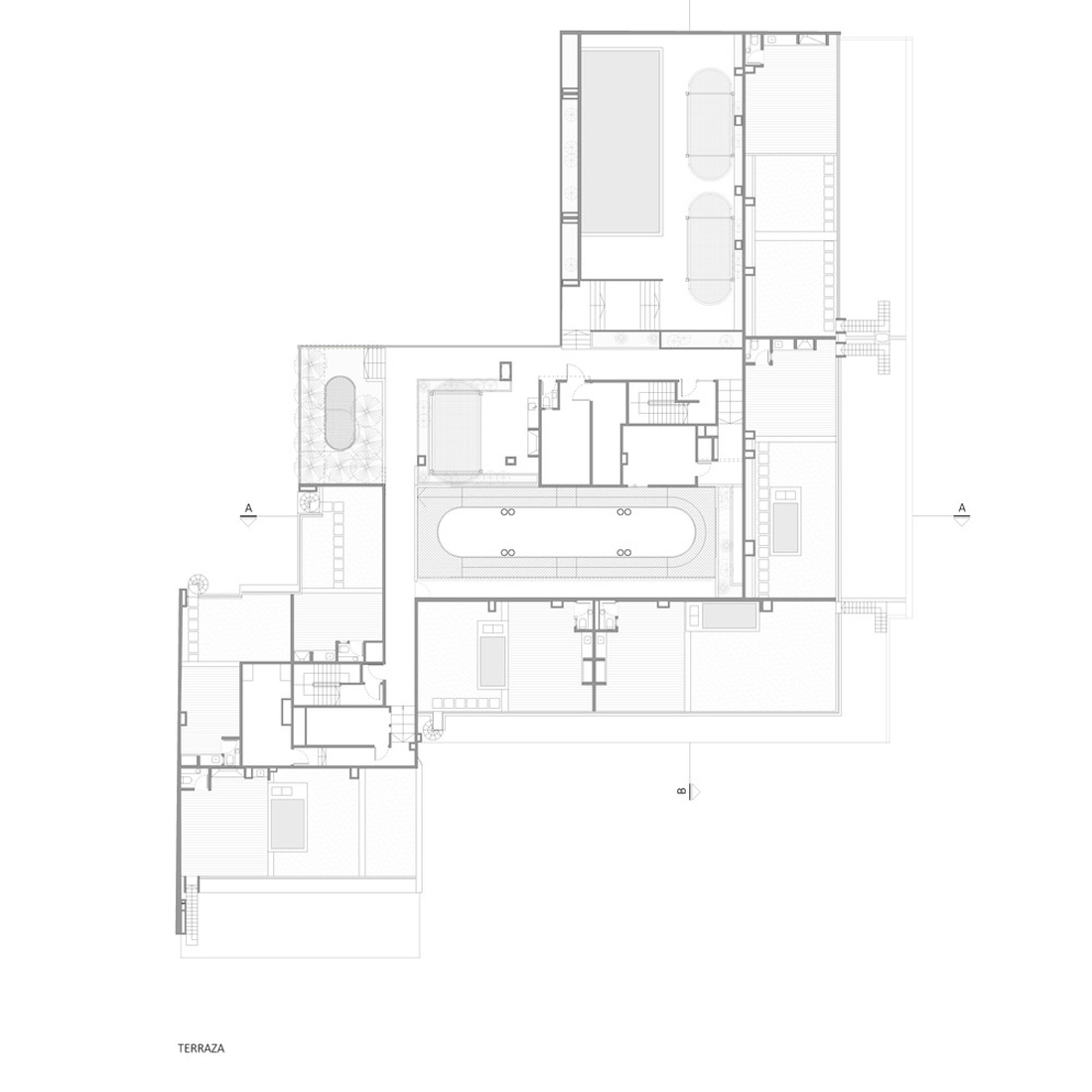
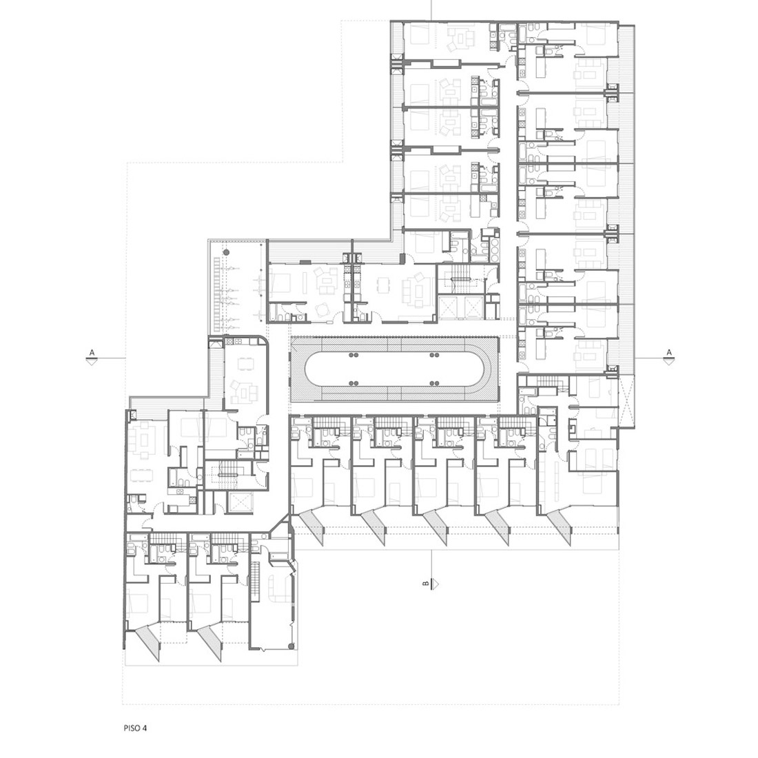
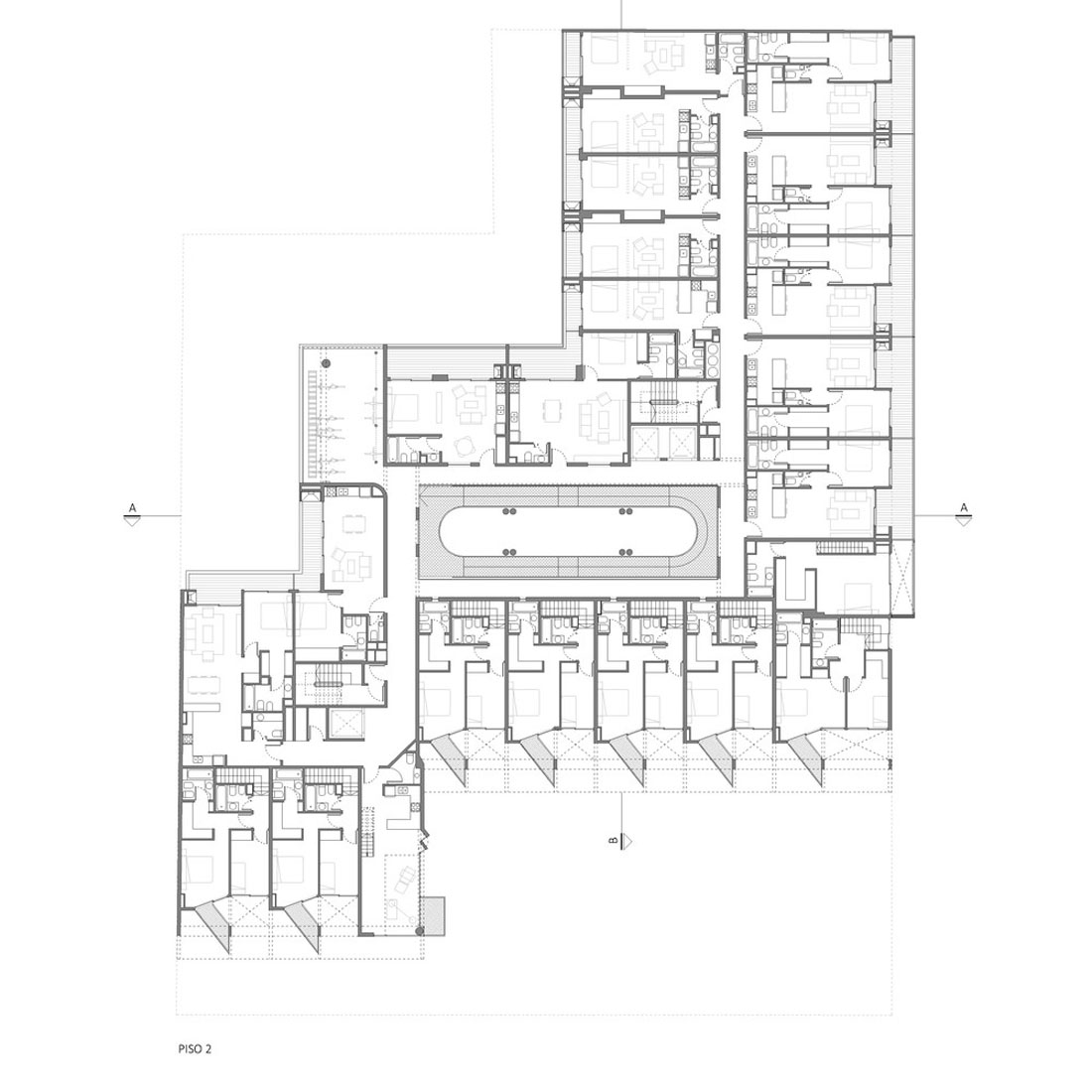
住宅楼上部的居住部分,可以提供各种类型的居住需求,涵盖单间到五人合居之间的各个类别。对于四到五人合居的空间,都配备了一个带有草坪、格栅和或大或小私人池塘的专业露台;而就单人居室而言,设计师同样给其设计一定的户外空间和独立的遮挡格栅。
 
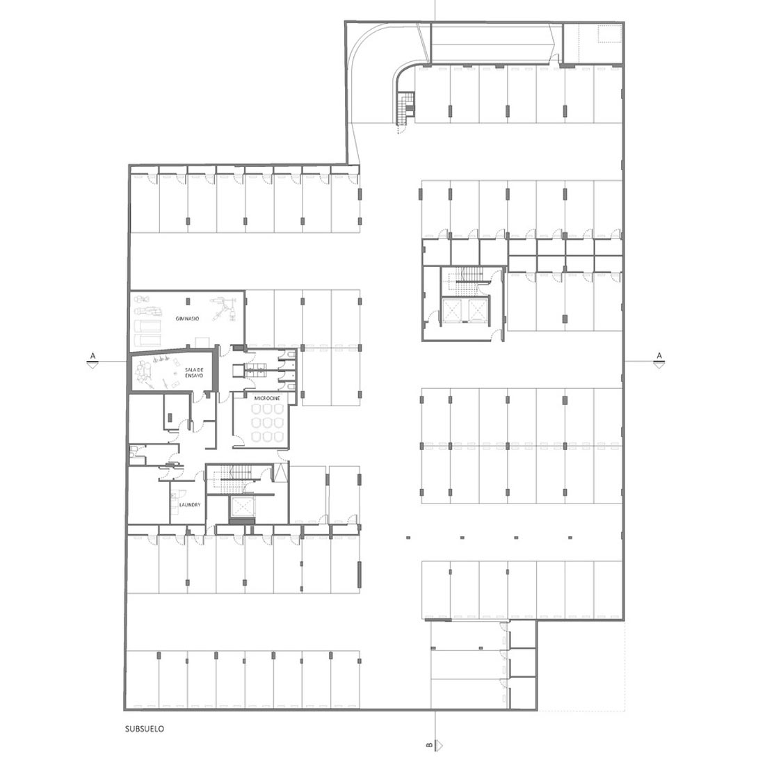
HO住宅楼设计中最引人注目的,莫过于其从地面层一直盘旋至五层的自行车坡道。设计师给其配备的专属的地面入口空间,旨在使大楼的用户可以将各自的自行车安放在居住楼层的专属停放空间,每一层可容纳40辆自行车的停放。这个坡道的设计,不光给底层的庭院营造了一种独特的空间景观,彰显了其为住户便捷生活所提供的价值;其还完美地诠释了当地“自行车友好”的生态倡议,为都市自行车出行概念的建构与推广,提供了坚实而有力的支撑。
 
▽ 室内设计

 
 
 
 
 
 
 
 
除了一般住宅楼都会配备的诸如洗衣房、健身房、泳池和24小时安保的基础设施外,设计师还在其中设计了一些特定的公共空间,例如设备齐全的小型影院、位于屋顶并配有格栅的休息区域、被果树包围的休憩思考空间和一个配有专业声学设备和音乐器械的排练厅。
 
▽ 景观设计

 
 
 
 
 
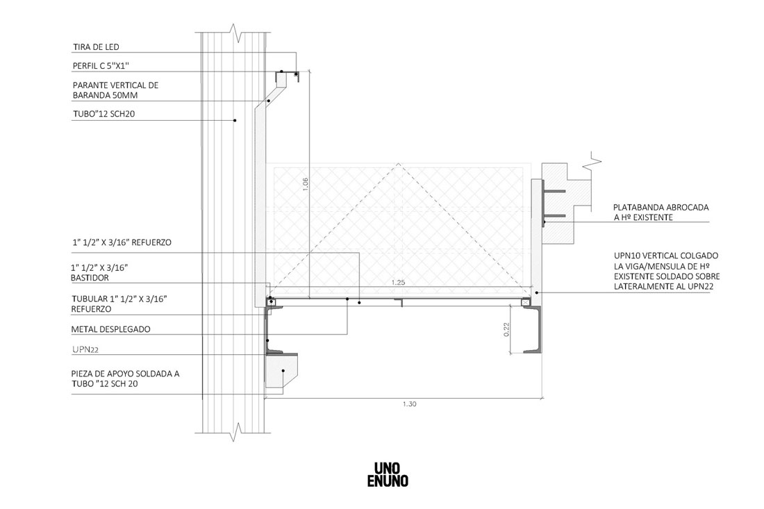
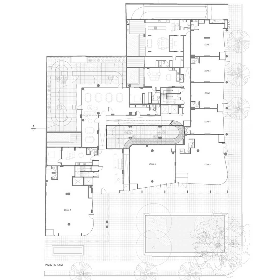
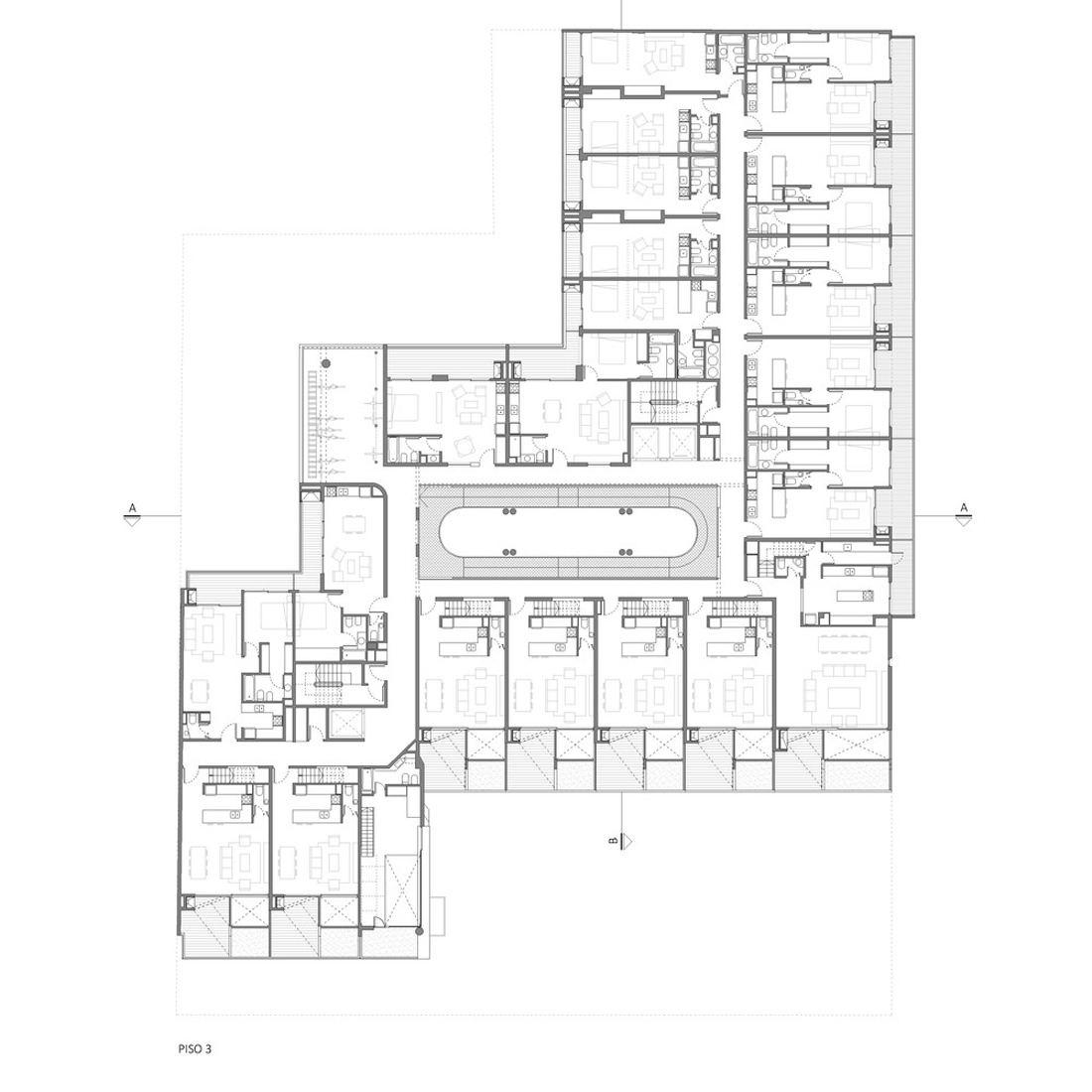
▽ 平面图

 
 
 
 
 
 
 
 
 
▽ 立面图

 
 
 
 
 
 
 
 
 
 
 
 
 
 
 
 
编后语:这个青旅是对所在街区亮点的高度呈现,旨在强化其文化特点的同时,优雅地表达其创新的设计概念。让建筑与当下的环保理念融合,将古树与旧文化也融捏进去,让整个青旅建筑变得十分有趣。更多关于青旅设计、客栈设计、建筑设计的案例,请点击下面的拓展阅读进行跳转阅读。
 
 
 
来源网站:www.archdaily.com
翻译整理:WAQI







拓展阅读

故事未了的江湖客栈|绿境景色花园客栈设计
青旅社区---阳朔东院弥香客栈
三亚洲际度假酒店[酒店设计]
景逸庭院式精品酒店改造


设计终究是一个不断学习的过程,WAQI作为一家学习型设计事务所,通常在设计的过程中,会分析甚至于拆建一些案例,
不定期分享一些心得。请扫描并关注公众号,更多精彩,与您共享。。。