首页
Home
WAQI做些什么
Services
WAQI的作品
Projects
WAQI是谁
About us
WAQI学院
College
联系WAQI
Contact us
logo
在青旅眺望海滩|青旅设计
发布于:2020-07-31 16:27 浏览:
越南旅舍位于汉江市场的对面,这是整个岘港对所有居民和全世界的游客来说都最著名的景点。越南旅舍的设计采取了极简主义的方式,摒弃了一切复杂的元素以降低投资成本,同时依旧保障使用效率的最大化。
因此设计师使用了许多简单而平价的材料,尤其限制了可能造成环境破坏的材料的使用,例如油漆、石膏等等。设计师选用了环境友好的建造方案,例如在屋内砌筑生土砖而非抹灰墙体,以控制水泥的使用。此外,还使用了许多树木和自然照明,引入太阳光和自然风以让整个空间更加通风而友好,这种做法也降低了材料的硬度。
项目信息
设计公司:85 Design
项目类型:客栈设计、青旅设计、景观规划设计
位置:越南
▽ 建筑外观
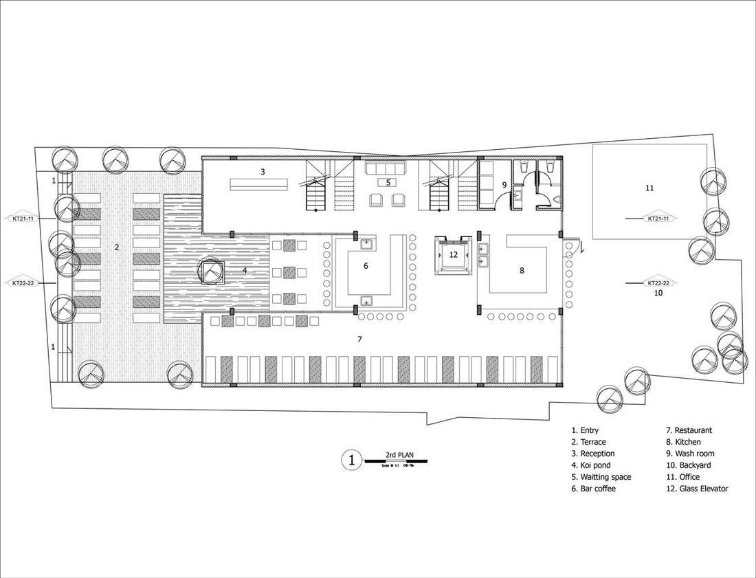
在一层:将整座建筑推到后面,以保留出泊车与花园的空间,并隔离汉江市场与街道嘈杂的噪音。此外这片区域还可以用来享用咖啡以及观看街景。在室内的一边是用于接待的前台,其余部分则用作餐厅和咖啡厅,接待旅舍的住客和外来的常客。建筑的后部是办公室和花园。玻璃电梯营造了宽敞而清新的感受。
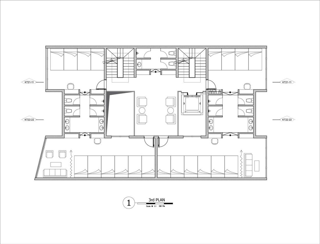
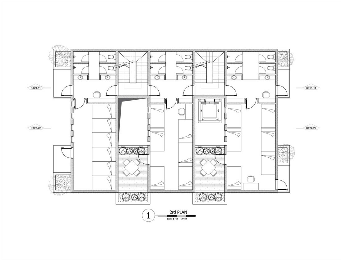
在二、三层:这两层是居住楼层的开端,容纳了多人间的宿舍。在房间之中是一个有着绿色树木的天井,住客可以走到这些区域工作、休闲、交谈以及舒适地吸烟,同时避免对房间里其他人的干扰。
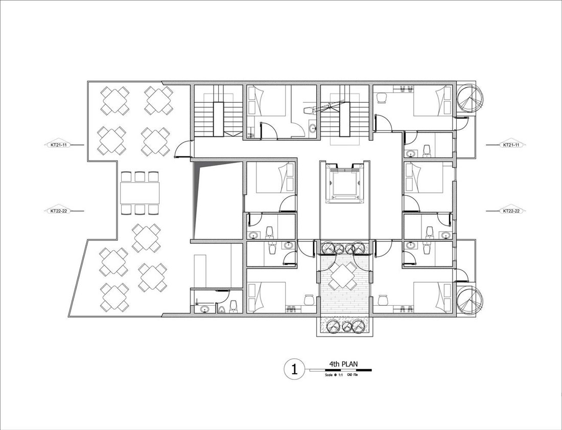
在四层:这一层包括了大床间、娱乐区、咖啡店以及共享厨房。
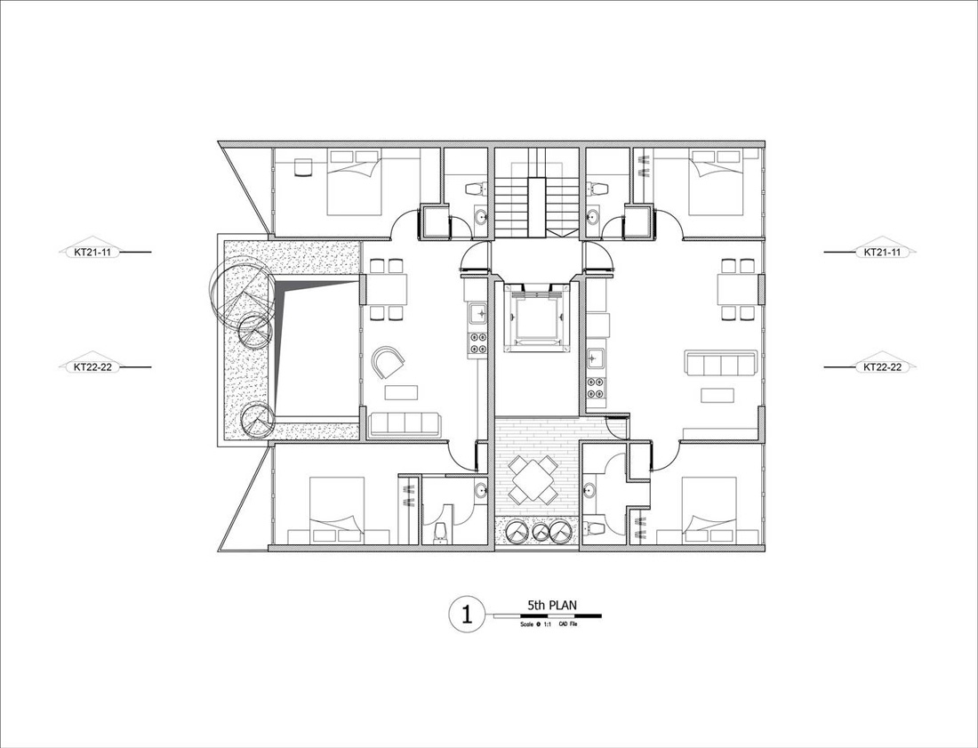
在五层:设计了两套公寓。有两个原因:首先,这块用于建设的土地是租来的,所以房主需要一个能够保证收入的方案;在上面建公寓的话,可以轻松地收到比旅舍更高的租金。第二,由于这一地区对度假公寓的需求巨大,但周边地区并不能满足这一需求,因此公寓的出租率能得到保证。
▽ 室内设计
▽ 景观设计
▽ 平面图
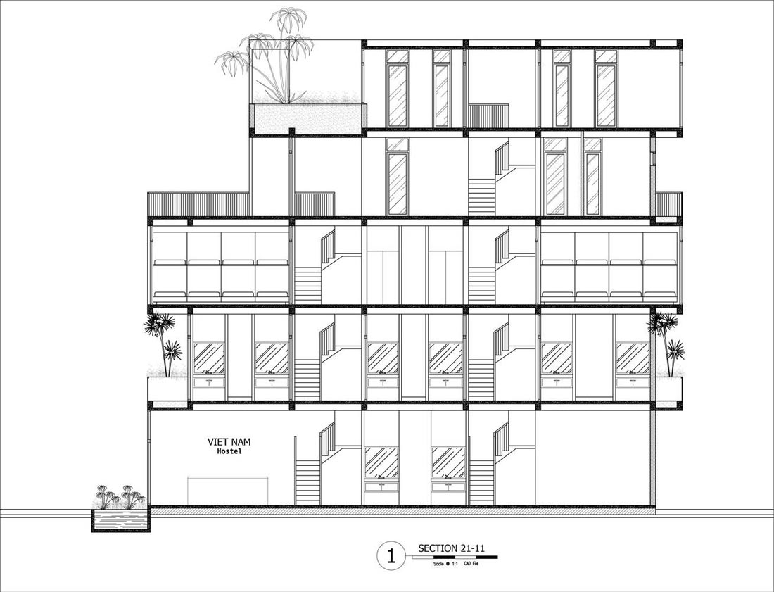
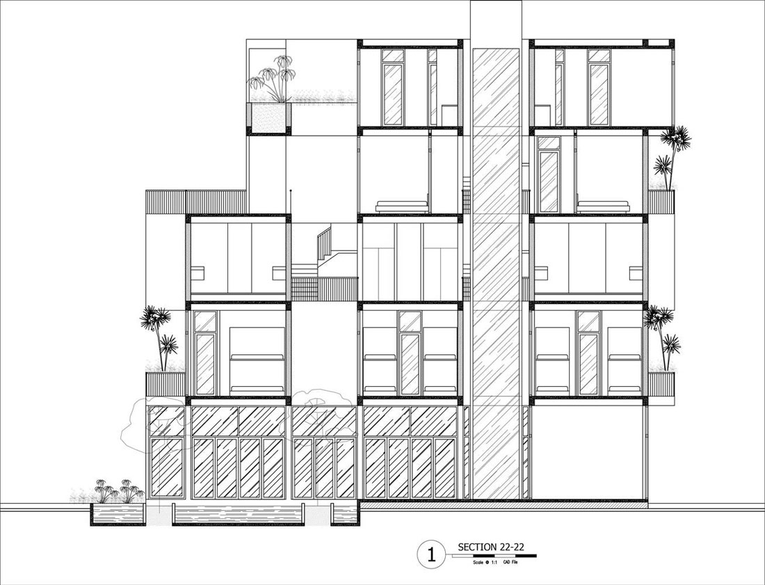
▽ 立面图
编后语:设计师设计的旅舍为访客带来精彩的体验。在这个项目中,低成本、选择对环境危害较少的建设方案依然可以建造出漂亮的青旅建筑,而且还满足客户与住户的需求。更多关于青旅设计、客栈设计、建筑设计的案例,请点击下面的拓展阅读进行跳转阅读。
来源网站:www.archdaily.com
翻译整理:WAQI
拓展阅读
故事未了的江湖客栈|绿境景色花园客栈设计
青旅社区---阳朔东院弥香客栈
三亚洲际度假酒店[酒店设计]
景逸庭院式精品酒店改造
设计终究是一个不断学习的过程,WAQI作为一家学习型设计事务所,通常在设计的过程中,会分析甚至于拆建一些案例,
不定期分享一些心得。请扫描并关注公众号,更多精彩,与您共享。。。
马上分享WAQI:
微信
QQ空间
新浪微博
上一个
下一个