在自然中体验奢华与冒险|精品酒店设计
发布于:2020-09-17 17:53  浏览:

离哥斯达黎加的乌维塔镇不远-海滩Playa Hermosa上方的丛林山上有一个隐藏的小型度假胜地Art Villas。3座独特的别墅和一个多功能凉亭分布在2公顷的土地上。设计师希望创造一个让游客与周围大自然融合,畅所欲言,同时体验奢华与冒险的地方。让每个人在品尝时都能深入到自己的内心。
 
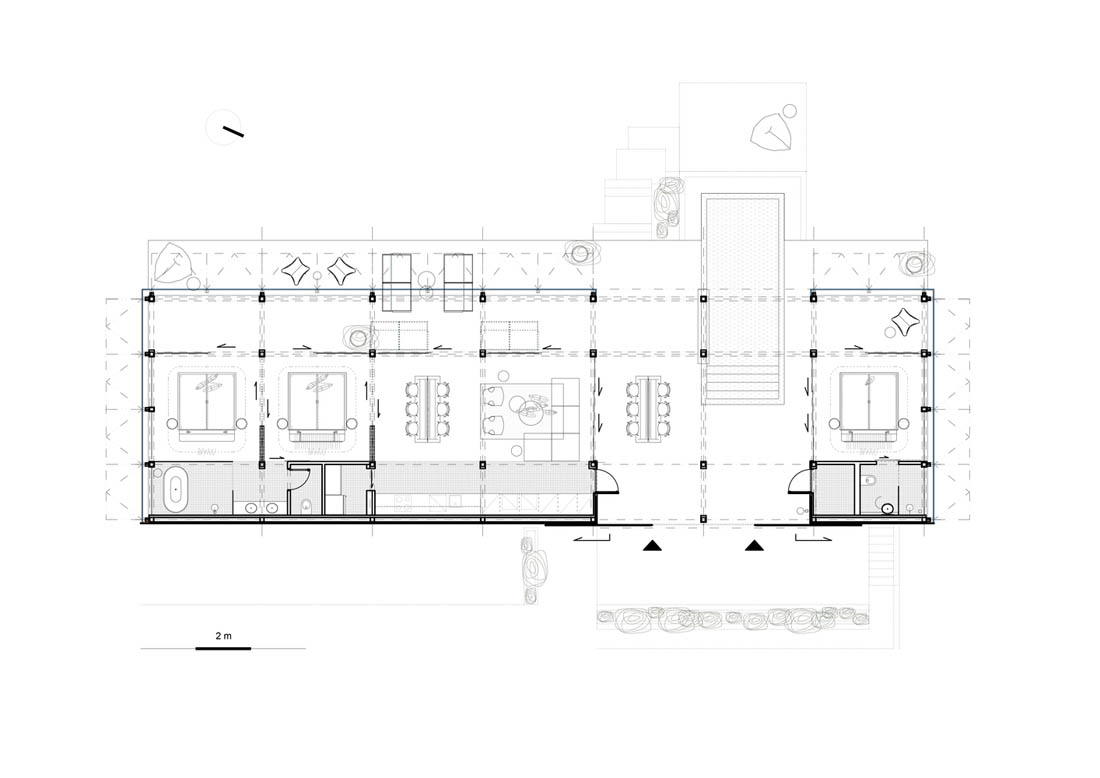
作室别墅被设计为投资者及其家人的私人住宅,这个26米长的棱柱形物体坐落在陡峭的斜坡上,部分悬浮在茂密的热带植被上。从外面看,只有远处的海洋或绿色的山丘可以看到。面向车道的后墙和相邻的别墅无窗设计以保护隐私。
 
墙面色彩与绿色屋顶相结合,使别墅能够与周围环境真正融合。面向海洋和丛林的立面配有大尺寸的铝制穿孔区域。如果将其拉起,则它们可以兼作檐篷。在每个部分中,穿孔的规模和样式都不同,从而在内部产生令人兴奋的光影过渡。
 
房子其余部分的布局非常开放。内部和外部世界之间的界限已经消失,整个空间就像是一个屋顶露台。轻巧的滑动隔墙可作为创建私人区域并根据需要动摇空间的工具。露台上有一个无边泳池,部分屋顶,因此免受烈日的侵蚀。
 
 
 
 
 
 
 
项目信息
设计公司:Formafatal
项目类型:建筑设计、旧楼改造、景观规划设计
位置:哥斯达黎加  
 
 
 
 
 
 
 
▽ 建筑外观

 
 
 
 
 
 
▽ 室内设计

 
 
 
 
 
 
 
 
 
 
 
 
 
 
 
▽ 景观设计

 
 
 
 
 
 
 
▽ 平面图

 
 
 
 
 
 
 
 
 
 
 
编后语:设计师利用简洁的结构和纯净的线条,消除内部和外部之间的界限,让建筑暴露在自然中,酒店的设计体现了一种自然的奢华美,但是又不过分夺目,这让客人能在酒店中有冒险的体验。更多关于度假酒店设计、精品酒店设计、建筑设计的案例,请点击下面的拓展阅读进行跳转阅读。
 
 
 
来源网站:www.archdaily.com
翻译整理:WAQI






拓展阅读

故事未了的江湖客栈|绿境景色花园客栈设计
青旅社区---阳朔东院弥香客栈
三亚洲际度假酒店[酒店设计]
景逸庭院式精品酒店改造




设计终究是一个不断学习的过程,WAQI作为一家学习型设计事务所,通常在设计的过程中,会分析甚至于拆建一些案例,
不定期分享一些心得。请扫描并关注公众号,更多精彩,与您共享。。。