乡村度假旅馆|精品酒店设计
发布于:2020-09-29 10:24  浏览:

Sobreiras – Alentejo乡村旅馆位于距里斯本仅1小时车程的Serra de Grândola,周围是原始而美丽的自然景观。
 
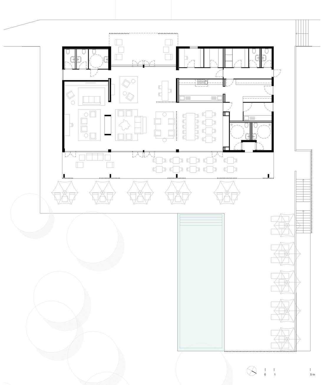
设计师将旅馆的地点选择在山顶,朝向东侧连绵如画的美景。基地内的树木将整座建筑分为8个采用悬挂结构的体量,将对土地的破坏降低到最小。最大的建筑体量内包括入口、前台及一系列公共休闲区。较小的两个体量内则布置着员工办公室、储藏间、服务间和技术性的功能房间。其余的五个体量大小相当,以4个或者5个单元为一组,共包含22个标间和两个套房。
 
 
 
 
项目信息
设计公司:FAT – Future Architecture Thinking
项目类型:建筑设计、度假酒店设计、景观规划设计
位置:葡萄牙
 
 
 
 
▽ 设计构想

 
 
 
 
 
 
建筑的形式和使用的材料皆借鉴了当地的传统建筑。立面上一根根的圆木同周围的环境形成对话,也与简洁素白的建筑主体形成对照。
 
考虑到建筑的热稳定性,设计师从当地传统建筑中获得灵感,将建筑的主朝向定为东侧,如此便可避免当地强烈的西晒。同时在房间外设置阳台,圆木的围栏和深深的檐口可以为室内遮阴,使其不至于过热。建筑外墙和屋面的隔热设计以及隔热窗框等建筑构件的应用也都大大提升了室内的热舒适度。设计师在房间相对的两面开窗,为室内提供自然通风。当地的水资源不算丰富,建筑中的所有供水设备都配备节水装置。倾斜的屋面用于收集灌溉的雨水。水的加热则大部分依靠太阳能系统。这些举措都构成被动式节能系统的一部分,目的是最低限度地使用其他动力系统,从而实现整个建筑的节能。
 
▽ 建筑外观

 
 
 
 
 
 
▽ 室内设计

 
 
 
 
 
▽ 景观设计

 
 
 
 
 
 
 
 
项目中的景观设计,以保护和突出环境的自然属性为原则,最低限度地对自然景观进行干预。通往酒店和客房的路面用石子铺就。围绕着建筑体量种植低矮的灌木,将住客引向所在的房间。
 
利用周边的美景,设计师设计了一系列户外休闲空间。其中无边界的泳池仿佛在邀请人们一头扎进自然之中,眺望无限远处的地平。
 
▽ 平面图

 
 
 
 
 
▽ 立面图

 
 
 
 
 
 
 
 
 
 
 
 
 
 
编后语:设计师在这个精品乡村度假酒店里,以鼓励人们享受自然、挖掘本土文化为概念,设计了这座简洁而优雅的建筑。用树枝镶嵌在建筑里,把环境和建筑联系起来,让人在广阔的空间内享受这周边环境的原始美。更多关于乡村规划设计、精品酒店设计、度假酒店设计、建筑设计的案例,请点击下面的拓展阅读进行跳转阅读。
 
 
 
来源网站:www.archdaily.com
翻译整理:WAQI





拓展阅读

故事未了的江湖客栈|绿境景色花园客栈设计
青旅社区---阳朔东院弥香客栈
三亚洲际度假酒店[酒店设计]
景逸庭院式精品酒店改造




设计终究是一个不断学习的过程,WAQI作为一家学习型设计事务所,通常在设计的过程中,会分析甚至于拆建一些案例,
不定期分享一些心得。请扫描并关注公众号,更多精彩,与您共享。。。