首页
Home
WAQI做些什么
Services
WAQI的作品
Projects
WAQI是谁
About us
WAQI学院
College
联系WAQI
Contact us
logo
繁花似锦的家庭旅馆|民宿设计
发布于:2020-10-14 14:29 浏览:
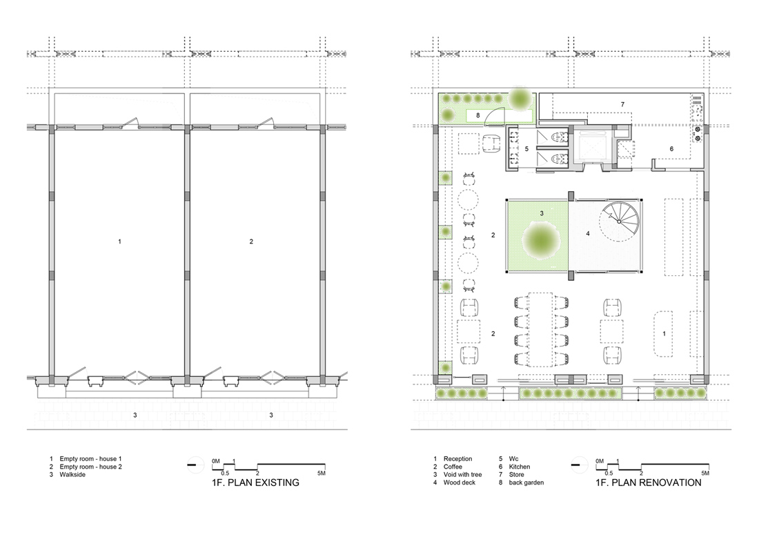
Deja vu 2号房位于下龙湾沿岸的新城区,由两家商店联合装修,内部装修为家庭旅馆和咖啡厅。
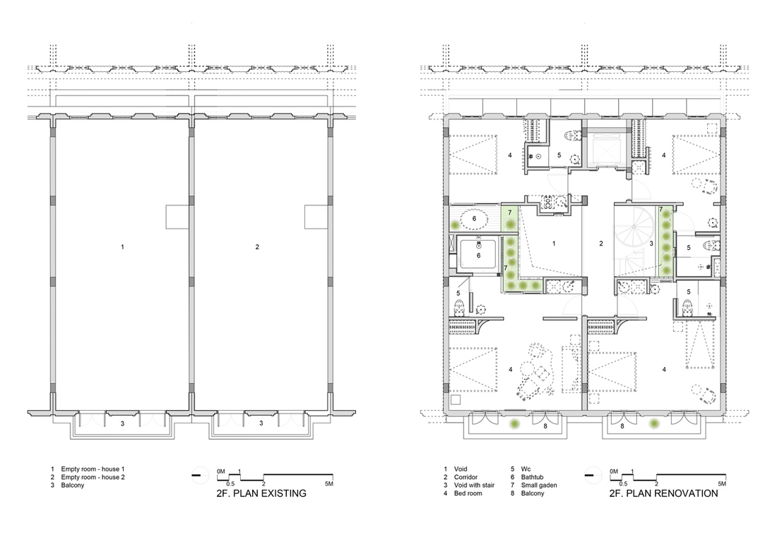
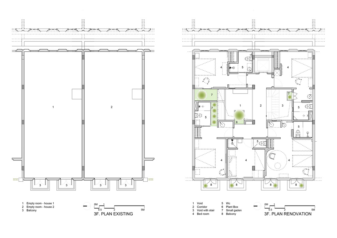
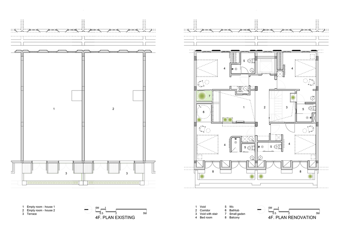
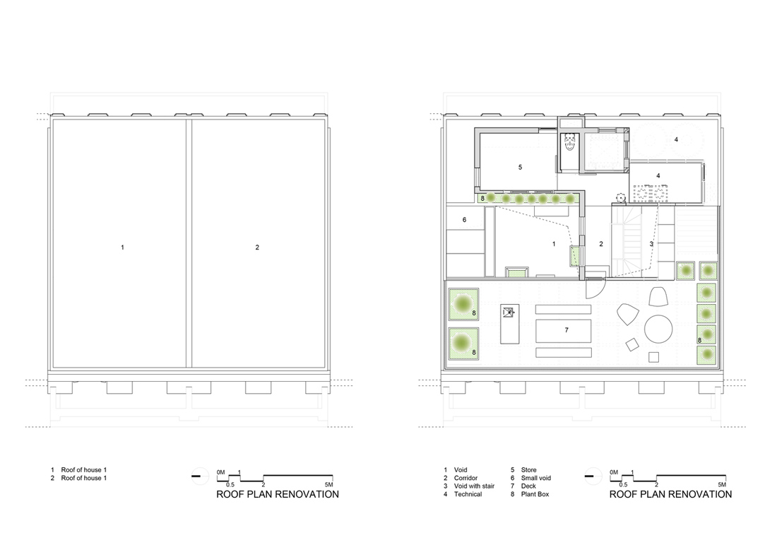
所有的功能室均位于房屋中央,设有一个空隙。当爬上楼梯时,该空隙会扩大,从而允许更多的空气,光线,阳光甚至雨水,并支持在空隙中生长的植物。
项目信息
设计公司:Nemo Studio
项目类型:客栈设计、民宿设计、景观规划设计
位置:越南
▽ 建筑外观
▽ 室内设计
由木头和钢制成的楼梯与桥廊相结合,旨在为各个方向创造独特的视野,并为空隙提供更多的开放空间。
从2楼到4楼布置的卧室的尺寸发生了变化,以适应空隙的扩大区域并产生空间多样性。尽管是联排别墅,但卧室仍然可以使用自然光,包括浴室,浴缸和阳台,从而与海滩氛围相融合,并获得“迷你度假”的感觉。为了到达这个开放空间但仍为客户保留隐私,在该项目中使用了在热带国家足够普遍的通风砖。
▽ 景观设计
▽ 平面图
▽ 立面图
编后语:设计师在建筑的中部留有空隙,并设计为一个小庭院,让住户在哪里都能看见中部庭院,住户可以轻松地切换室内外的场景,享受户外氛围。房间内的设计,也让游客在居住的时候,会产生一种迷你海滩的度假氛围。是一家气氛与景观环境都不错的客栈。更多关于民宿设计、客栈设计、建筑设计的案例,请点击下面的拓展阅读进行跳转阅读。
来源网站:www.archdaily.com
翻译整理:WAQI
拓展阅读
故事未了的江湖客栈|绿境景色花园客栈设计
青旅社区---阳朔东院弥香客栈
三亚洲际度假酒店[酒店设计]
景逸庭院式精品酒店改造
设计终究是一个不断学习的过程,WAQI作为一家学习型设计事务所,通常在设计的过程中,会分析甚至于拆建一些案例,
不定期分享一些心得。请扫描并关注公众号,更多精彩,与您共享。。。
马上分享WAQI:
微信
QQ空间
新浪微博
上一个
下一个