山间的民宿设计|民宿设计
发布于:2020-11-06 11:56  浏览:

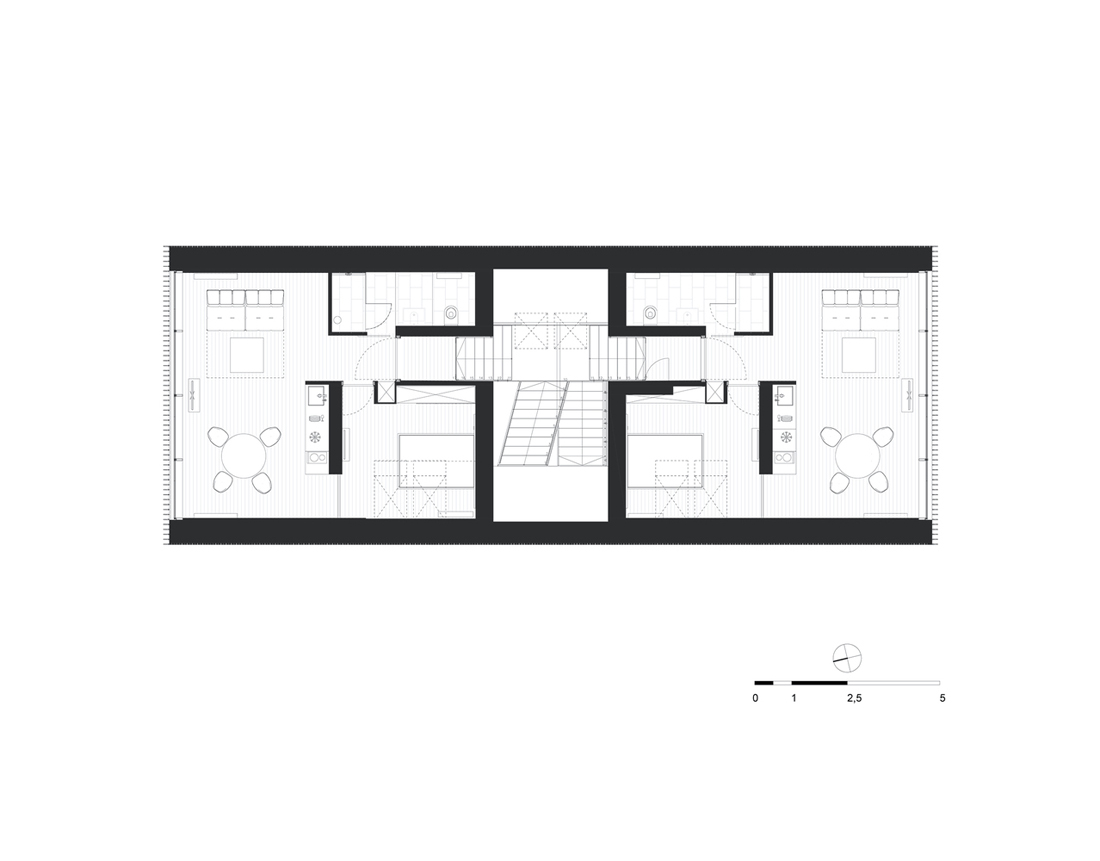
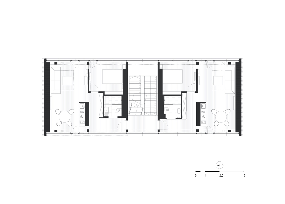
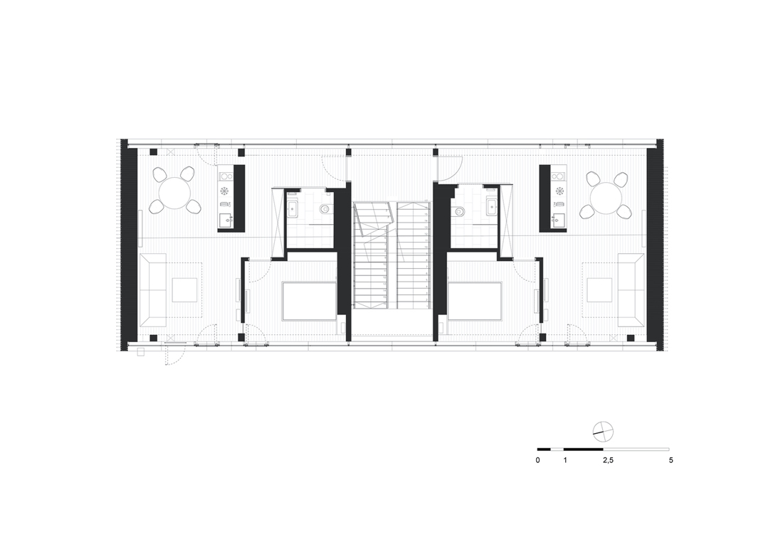
这两栋位于卡帕奇维尔扎波伦区的家庭旅馆位于雪球山附近,它是卡科诺泽最高的山峰和周围地区最受欢迎的旅游景点。该建筑就坐落在卡科诺泽国家公园的社区之内。这一双建筑结构位于一块面积为3670平方米的土地之上。第一个建筑面积大446平方米,它包括8个独立公寓。第二个建筑面积大565平方米,它包括7个公寓和一个附加的地下车库。每一个公寓都包含有一个厨房和餐厅空间、一个客厅和独立的卧室。
 
客户所提出的要求是高质量的审美和材料价值。此外一个重要的需求是该客栈设计是无需日常维持的。传统的接待处在这里完全由自动网上预定和入住系统所取代了。
 
 
 
 
项目信息
设计公司:studio de.materia
项目类型:建筑设计、客栈设计、景观规划设计
位置:波兰
 
 
 
 
▽ 建筑外观

 
 
 
 
 
 
 
该建筑概念、设计和外墙完成面都来自于卡科诺泽传统木结构山林小屋和19、20世纪转折时期的建筑。除了这些因素的影响之外建筑还需要能够融入当地的传统之中,它充分尊重这里的传统性。全石料的底座、暴露的半木结构、木板覆盖的山墙边缘以及木板覆盖的屋顶这些元素都以一种改良的方式被呈现出来。
 
▽ 室内设计

 
 
 
 
 
 
虽然有混凝土和花岗岩加以补充,木头仍然是定义公寓室内空间的主要材料。公寓地下层和底层的室内墙壁由混凝土石膏面完成。一层和阁楼的室内则由松木加班延续着外立面的分隔。公寓的玻璃窗高度从地板直达天花板,这为室内带来了周围地形的景观。住在东面公寓的住客能够看到毗邻的森林。南部和西部的窗户展现了一副卡科诺泽的全景图,同时还能看到雪球山的剪影和位于它顶部的气象观察站。
 
▽ 景观设计

 
 
 
底楼两层的混凝土结构被片麻岩所覆盖。这些材料被一片一片小心地根据项目所确定的特性排列在一起。结实的石料底座基地承托出了上层更为轻巧的木质框架。大块的玻璃将木结构的内部展露出来,这种结构就好像是半木结构一样。
 
山墙上风景壮丽的玻璃窗户由木结构竖直方向的隔板所覆盖,这是为了能够暗示当地典型的木质山墙。上层和屋顶都由热处理木材这一相同的材料所覆盖。这样的表达方式让屋顶作为建筑的第五个立面在视觉上和传统的木瓦覆盖面联系到了一起。
 
▽ 平面图

 
 
 
 
 
 
 
 
 
▽ 立面图

 
 
 
 
 
 
 
 
 
 
 
 
 
 
 
编后语:山间的民宿设计,设计师利用当地传统建筑的原材料,让山间民宿更多的还原建筑与自然的本身,让建筑在自然中也不显得特别。通透的环保型设计让民宿能够自给自足的同时,也能享受到精美的建筑设计和精致的自然环境。更多关于民宿设计、客栈设计、建筑设计的案例,请点击下面的拓展阅读进行跳转阅读。
 
 
 
来源网站:www.archdaily.com
翻译整理:WAQI






拓展阅读

故事未了的江湖客栈|绿境景色花园客栈设计
青旅社区---阳朔东院弥香客栈
三亚洲际度假酒店[酒店设计]
景逸庭院式精品酒店改造



设计终究是一个不断学习的过程,WAQI作为一家学习型设计事务所,通常在设计的过程中,会分析甚至于拆建一些案例,
不定期分享一些心得。请扫描并关注公众号,更多精彩,与您共享。。。