首页
Home
WAQI做些什么
Services
WAQI的作品
Projects
WAQI是谁
About us
WAQI学院
College
联系WAQI
Contact us
logo
"蚂蚁窝"酒店设计|度假酒店设计
发布于:2020-11-24 16:38 浏览:
当建筑师回归工匠本身。当建筑师回归工匠角色,脱离电子技术依靠积年的经验对建筑进行实体精准把控,作品便真正能够匠心独具。雕塑与建筑的界限再次模糊,艺术与生活的距离逐渐拉近,建筑师对于细节的追求才是真正的工匠品质。
“阑珊宿”精品民宿酒店坐落在抚仙湖-小湾民宿区。设计充分考虑建筑与地形环境的呼应。小体量建筑单体“蚁穴”作为酒店标志物,在功能上扮演着VIP套房的角色,同时在整个场地环境中,发挥着打破传统构建元素,重构了老旧地形的作用。
项目信息
设计公司:长空创作
项目类型:建筑设计、
精品酒店设计
、生态建筑
位置:中国,玉溪市澄江县
设计者希望通过空间的塑造打破人们对于功能房间的固有印象,在前卫空间体验和民宿日常居住的交织中感受来自于自然和光线的力量。
建筑造型灵感来源于蚁穴。在一幅蚁穴主题的童画中可以看见儿童对于蚁穴空间功能和交通的想象,通过三维设计构造,使得常人眼中的童趣、设计师看法里的光影交织空间过渡融合一体,从而让不同的使用群体都能在其中感受空间组织变化带来的冲击。
自然对于构筑空间的潜力是变化无穷的。吸取自然元素是对人自然野性的呼唤。来自自然的力量是最为原始、直接、能够触动人的。
场地原为废弃民居水窖,位于转折坡角落,地势低矮下陷入,但同时位于酒店入口。
“蚁穴“的大胆插入打破了寻常绿化覆盖的做法,为场地的消极空间注入活力,成为了酒店的标志物和“迎宾牌”。
曲面能够模糊明暗的交界,柔和地引导光线。同时,为曲线墙面覆上褶皱和肌理,自然的引导人在空间中穿梭。
当曲面构造的空间体量被赋予朴实的功能,超现实主义的空间便能柔和的刺激人的感官。肌理、光线、空间相互交织,能给人柔和的触动。
蚁穴的设计过程完全脱离了电脑建模,全依赖于建筑师多年积累的经验和实地的把控。
建筑师回归了工匠的身份,才能真正透过实体感受空间,把握细节的雕琢。
前期没有画标准的图纸,建筑师在实地现场“作画”。
手工编钢筋“脊骨”,包裹金属网,喷涂表层水泥,整体浇灌,采光井和通风井,完成形体建设后实地测试、定点装设光源。
▽ 施工现场图片
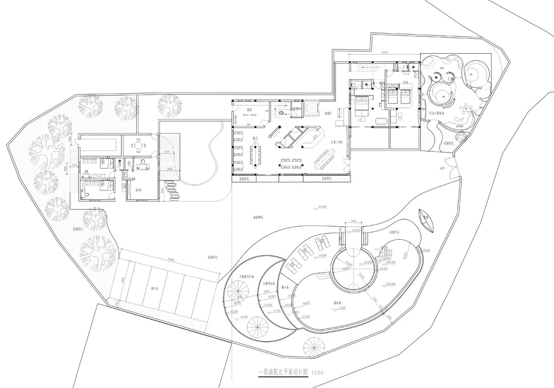
▽ 酒店一层平面图
▽ “蚂蚁窝”平面图
编后语:这是一个充满童趣的房子,给人以一个童话的般梦幻感觉。内部空间组织丰富有趣,光影交织变化无穷,能给让人不一样的感受体验。更多关于精品酒店设计、生态建筑、建筑设计的案例,请点击下面的拓展阅读进行跳转阅读。
来源网站:www.archcollege.com
翻译整理:WAQI
拓展阅读
故事未了的江湖客栈|绿境景色花园客栈设计
青旅社区---阳朔东院弥香客栈
三亚洲际度假酒店[酒店设计]
景逸庭院式精品酒店改造
设计终究是一个不断学习的过程,WAQI作为一家学习型设计事务所,通常在设计的过程中,会分析甚至于拆建一些案例,
不定期分享一些心得。请扫描并关注公众号,更多精彩,与您共享。。。
马上分享WAQI:
微信
QQ空间
新浪微博
上一个
下一个