首页
Home
WAQI做些什么
Services
WAQI的作品
Projects
WAQI是谁
About us
WAQI学院
College
联系WAQI
Contact us
logo
用一棵树建造谷仓|生态农场
发布于:2021-01-07 17:25 浏览:
传统上,Hertogenbosch的大多数农舍将其单独的部分(例如居住区,存储空间和牛棚)集成到一栋建筑物中。但是,随着时间的流逝,这些紧凑的建筑经常变得狭窄而无法容纳所有这些功能,并增加了一个单独的谷仓。这些通常是用当地可得的材料建造的,并且很大程度上遵循了农舍本身的结构模式。
设计师根据农场的纪念性特征,采用传统技术的本地采伐材料建造新的谷仓。除了从附近的Wamberg庄园获得的几棵橡树树干之外,还有足够的木材可以用必须砍伐的树木建造新的谷仓。
项目信息
设计公司:HilberinkBosch architects
项目类型:建筑设计、生态农场、景观规划设计
位置:荷兰
▽ 设计构想
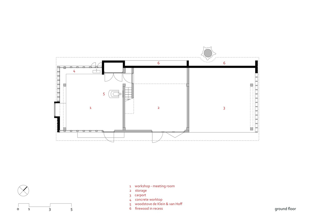
横向谷仓由四个拉杆连接桁架构成,这些桁架通过纵向桁条连接,纵向桁条顶部是roof子支撑的屋顶。屋顶具有不对称的几何形状,侧面陡峭且倾斜度低。谷仓内有三个空间:一个车棚,一个储藏室和一个办公室用的会议室。
一台移动锯木厂被带到院子里,用来将新鲜的树干切成用于框架和屋顶的结构木材,以及用于外墙的木板。为此,使用了树木核心部分的最优质木材,并为剩余的不耐用部件寻找合适的用途。带有树皮的支柱被用作板条,以屏蔽车间和车棚的玻璃。将树皮与混凝土混合以建造端墙,以便它们与树木繁茂的环境融为一体。软的边材木板用于混凝土模板,以塑造新鲜木材的烙印。切短的长度并用作屋顶板。这种劈开的木材的粗糙度确保了未经处理的屋面将持续数十年。最后,剩下的被切碎并堆放在谷仓凹进的北立面上,用作柴火。
▽ 建筑外观
▽ 室内设计
▽ 平面图
▽ 立面图
编后语:这个农场的谷仓美学受到巧合的强烈影响,为这座当代农场建筑提供了一种至关重要的表达方式,以一种奇妙而又非凡的方式将新旧融合。更多关于生态建筑、生态农场、建筑设计的案例,请点击下面的拓展阅读进行跳转阅读。
来源网站:www.archdaily.com
翻译整理:WAQI
设计终究是一个不断学习的过程,WAQI作为一家学习型设计事务所,通常在设计的过程中,会分析甚至于拆建一些案例,
不定期分享一些心得。请扫描并关注公众号,更多精彩,与您共享。。。
马上分享WAQI:
微信
QQ空间
新浪微博
上一个
下一个