首页
Home
WAQI做些什么
Services
WAQI的作品
Projects
WAQI是谁
About us
WAQI学院
College
联系WAQI
Contact us
logo
旧房大改造,窗外景观就是一幅画|建筑改造
发布于:2021-01-11 15:50 浏览:
“一切由一幅画开始”。这幅传统的日式绘画被称作“Yozakura Gekka”(月下夜樱),由千住博创作,描绘了一幅月夜下一棵树枝低垂盛开着的美丽樱花树。
画的主人希望有一个专门能欣赏它的地方,在那里他能安静地享受樱花凋谢的美丽景象。他想要一个简单而优雅的环境,希望能够将客厅,书房与居室打造成奢侈酒店那样。
项目信息
设计公司:田村笃昌设计事务所
项目类型:乡村改造,建筑改造,生态设计
位置:日本
▽ 改造前
这栋建筑建于40年前,此次翻修后,原来的结构保持不变,但房子的西侧被改造成了一个单独的,包括客厅、书房区域和居住区域的宽阔空间。储藏单元在两区域之间,将它们分隔的同时又不完全封闭整个空间,保持空间的开阔。厨房和洗手间则被安置在了西侧。
▽ 改造后建筑外观
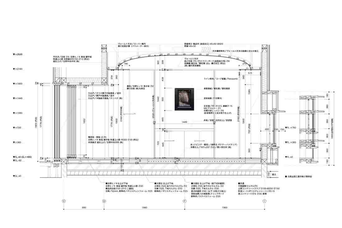
设计借助了自然界中四季的概念。而画代表着春天。夏天:由滑动门上的麻叶图案象征。光线会柔和地透过有麻叶图案的纸屏风进入房间。秋天:由漆板上的枫叶象征。冬天:由编入松针图案的置于天花板的绸物象征。樱花能耐严寒一直到它们开花。冬天是补充这幅画一个必不可少的元素。侧门上流动的图案代表水,暗示着后面的浴室设施。日本扁柏用于家具和室内装饰,意大利大理石用作地板材,风格上是现代与传统的混合。
现存的梁高度为2600mm,所以就需要天花板有一定的高度使书房/居室区域有一种宽阔的空间感。由 Piet Hein(数学家)提出的超椭圆方程“(x/a)^M + (y/b)^M = 1 M=2.5”被运用于这个自然而优雅的弧形天花板上,在视觉上使空间比实际空间要高一些。
在黄昏时,灯笼会轻柔地照亮鹅卵石路,朝向房子走时,鹅卵石路上的尼泊尔老冬青(Mochino Ki)指着前进的方向,房子入口处的光亮似乎在邀请房主到屋内。新翻修的房子转变成为一个“欢迎”房主人来到放置着他最喜爱的画的空间,在那里,“月下夜樱”在等着他。
▽ 室内设计
▽ 平面图
▽ 立面图
编后语:在现代城市化浪潮的冲击下,乡村没落成为了一个不可回避的现实问题。老宅改造是更新计划的重点所在。设计最大限度的保留了这栋村中少有的古老宅院的外在形态,希望能强调地域特征和文化传承的重要性。同时对建筑内部进行颠覆性的功能置换和空间重构。更多关于
精品酒店设计
、景观规划设计、建筑设计的案例,请点击下面的拓展阅读进行跳转阅读。
来源网站:www.archdaily.cn
翻译整理:WAQI
设计终究是一个不断学习的过程,WAQI作为一家学习型设计事务所,通常在设计的过程中,会分析甚至于拆建一些案例,
不定期分享一些心得。请扫描并关注公众号,更多精彩,与您共享。。。
马上分享WAQI:
微信
QQ空间
新浪微博
上一个
下一个