首页
Home
WAQI做些什么
Services
WAQI的作品
Projects
WAQI是谁
About us
WAQI学院
College
联系WAQI
Contact us
logo
小空间阁楼的大改造|旧房改造
发布于:2021-01-14 14:42 浏览:
阁楼被认为是最差和最小的房屋,是分配给负责清洁和控制社区的人的空间。如今,这些空间已转移到邻居社区,并被新购买者重新发现,以作为在日益拥挤的城市环境中享受开放空间的机会。
和其他人一样,这间公寓直到最近仍是邻里社区礼宾的住所。下层邻居获得的一个狭小,隔离且黑暗的空间,作为将房屋扩展到外部的机会。这个家庭正在寻找一个独立于自己家的额外空间。一边享受自然光一边庆祝,学习,阅读和娱乐的地方。
项目信息
设计公司:LoCa Studio
项目类型:建筑设计、旧楼改造、景观规划设计
位置:西班牙
▽ 设计构想
该项目是通过房屋连接建筑物的现有露台,从而使空间之间的过渡尽可能容易。在南北两个立面上打开阳台门,并在两端抬起地面以达到外部水平,从而模糊了内部和外部之间的界限。同样,为了将外部空间引入小公寓,木制人行道被扩展到内部凸起区域,并且定义了一些可以折叠的木工,以最大程度地增加立面中的开口以及与露台的连接。
阁楼内部不超过60平方米,连接南北立面而没有任何垂直分隔。露台的尺寸与室内空间相似,是根据方向和用途进行定义的,并为实现夏季晚餐和多种庆祝活动做准备。
为了使自然光进入内部空间并保持内部与外部的关系,在保持露台原始开口的同时,将立面朝向露台开放,并在楼板上打孔以使光进入透过天窗,实现了拥有者梦想着能够在仰望天空时淋浴的梦想。
▽ 室内设计
▽ 景观设计
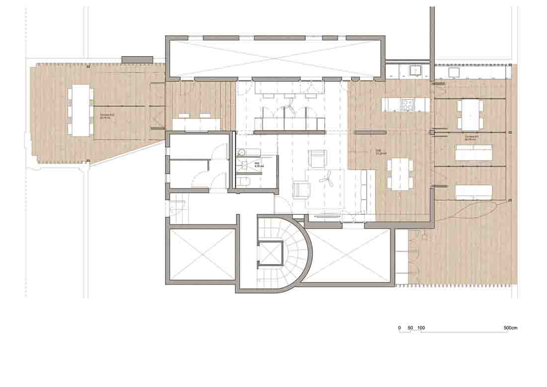
▽ 平面图
▽ 立面图
编后语:设计师在进行阁楼空间的组织改造时,与建筑物的原始组织相对应,所使用的材料旨在使用户感到舒适。清爽的改造设计,使住户在居住时,能够在居住中产生微小的变化。更多关于旧楼改造、旧房改造、建筑设计的案例,请点击下面的拓展阅读进行跳转阅读。
来源网站:www.archdaily.com
翻译整理:WAQI
设计终究是一个不断学习的过程,WAQI作为一家学习型设计事务所,通常在设计的过程中,会分析甚至于拆建一些案例,
不定期分享一些心得。请扫描并关注公众号,更多精彩,与您共享。。。
马上分享WAQI:
微信
QQ空间
新浪微博
上一个
下一个