首页
Home
WAQI做些什么
Services
WAQI的作品
Projects
WAQI是谁
About us
WAQI学院
College
联系WAQI
Contact us
logo
圆形花园与营地|营地设计
发布于:2021-01-19 17:01 浏览:
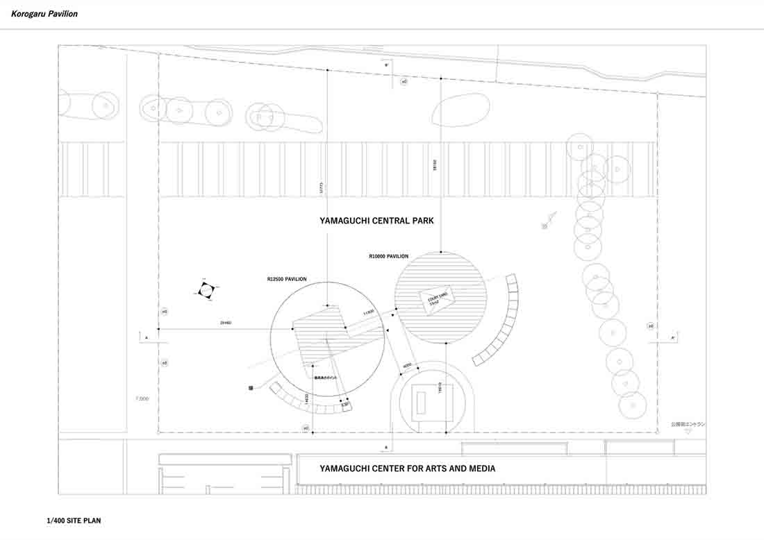
在日本山口艺术与媒体中心(YCAM)前院的广阔草坪上,设计师设计了两个凉亭,孩子们可以在夏天玩耍。该项目是受YCAM委托庆祝其成立10周年,并与YCAM的教育计划团队合作完成的。
YCAM以在日本和国外引入艺术和媒体领域中最前沿的知识而闻名,是共享基于IT的媒体技术,戏剧和舞蹈表演,艺术展览等的艺术平台。每个展馆都设有一个圆形花园,各种元素混合在一起。
项目信息
设计公司:ASSISTANT
项目类型:建筑设计、旧楼改造、景观规划设计
位置:日本
▽ 设计构想
展馆鼓励儿童离开YCAM大楼的媒体环境,并与周围的环境互动,包括自然光,风,直接接触土壤和植物,感受天空和鸟类与高科技媒体技术的融合。展馆内部的儿童体验与游乐场工具带来的体验之间的界限是模糊的。建筑和游乐场设备具有同等的权重,共同定义了整个环境。
▽ 建筑外观
▽ 室内设计
▽ 平面图
▽ 立面图
编后语:圆形稀释了人的方向感。两个展馆的结构都包含相互颠倒的空隙:一个将空隙保持在中心,而另一个则由空隙环绕。正是这些空隙将风和光引入空间,提高了孩子对周围微妙自然现象的意识。让孩子们在这种微妙的营地空间里学习、玩耍、成长。更多关于营地设计、生态设计、建筑设计的案例,请点击下面的拓展阅读进行跳转阅读。
来源网站:www.archdaily.com
翻译整理:WAQI
设计终究是一个不断学习的过程,WAQI作为一家学习型设计事务所,通常在设计的过程中,会分析甚至于拆建一些案例,
不定期分享一些心得。请扫描并关注公众号,更多精彩,与您共享。。。
马上分享WAQI:
微信
QQ空间
新浪微博
上一个
下一个