首页
Home
WAQI做些什么
Services
WAQI的作品
Projects
WAQI是谁
About us
WAQI学院
College
联系WAQI
Contact us
logo
小仓库改造明亮住宅|旧房改造
发布于:2021-01-22 10:10 浏览:
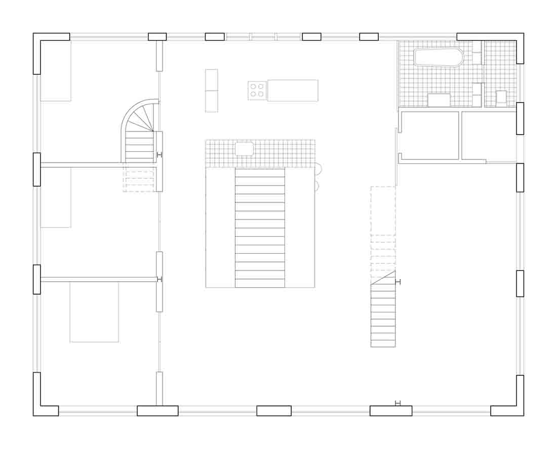
从以前的仓库到艺术家和他的家人的住所/工作单位的这种改建俯瞰着伦敦的帕丁顿老公墓。在二楼的开放空间内创建了五个房间。沿着所有四个立面连续排列的窗户定义了该空间的质量并设定了新房间的节奏,并保持了原始空间的明亮和宽敞感。
主要起居区围绕一个大型中央楼梯布置,该中央楼梯从一楼的入口一直向上延伸。朝向一侧的大型双开门,延续窗户的顺序,通往三间卧室。在另一侧,一系列的柱子定义了到起居区以及浴室和储物柜的过渡。沿着此门槛布置了两个滑动门,使您可以朝中央空间关闭或打开这些房间。
项目信息
设计公司:Dyvik Kahlen
项目类型:建筑设计、旧楼改造、景观规划设计
位置:英国
▽ 建筑外观
▽ 室内设计
▽ 平面图
▽ 立面图
编后语:设计师通过创建一系列不同大小的房间,将房间打通,通过它们的直接接触,让光线和视野遍及整个房屋。宽敞明亮的同时,还让私人得以保障,在原本宽敞的仓库中度过舒适的时光。更多关于旧楼改造、旧房改造、建筑设计的案例,请点击下面的拓展阅读进行跳转阅读。
来源网站:www.archdaily.com
翻译整理:WAQI
设计终究是一个不断学习的过程,WAQI作为一家学习型设计事务所,通常在设计的过程中,会分析甚至于拆建一些案例,
不定期分享一些心得。请扫描并关注公众号,更多精彩,与您共享。。。
马上分享WAQI:
微信
QQ空间
新浪微博
上一个
下一个