首页
Home
WAQI做些什么
Services
WAQI的作品
Projects
WAQI是谁
About us
WAQI学院
College
联系WAQI
Contact us
logo
利用原始材料改造生态房子|旧房改造
发布于:2021-02-03 10:26 浏览:
最初的独立砖瓦工人小屋是悉尼内里西部利里菲尔德的1920年代杜雷尔庄园的一部分,仅需支付3英镑的押金即可购买。自那以后,这所房子一直是被忽视的,设计师在此基础上进行了一系列的改进。
项目信息
设计公司:Bokey Grant
项目类型:建筑设计、旧楼改造、景观规划设计
位置:澳大利亚
▽ 建筑外观
设计师以敏锐的方式缝入并赞美原始的传统面料,通过无缝整合新旧之间的门框,可以确认新旧之间的关系。原始墙壁是光滑的灰泥,在飞檐和天花板上的图片导轨基准面上方具有细节。墙壁具有直至基准的微妙纹理,上方光滑的“帽子”使空间感觉比实际更高。
该房屋通过采用其原始的简单承重走廊计划来尊重房屋的原始结构。许多精心布置的视线充分利用了花园的景致并捕获自然光。新区域中的过渡区反映了规划图,但要确保每个阈值都深且低,以便在空间之间进行过渡是一种实质性的自觉体验。
▽ 室内设计
房子很小,只有108平方米,巧妙地容纳了3间卧室,一间浴室,洗衣房,一个宽敞的厨房,起居室和就餐区。花园是建立慷慨感的基础。房屋通过主动与花园及其他区域连接,从而充分利用了周围的景观。内部空间宽敞,并通过积极借鉴外部景观而受益。花园成为所有其他空间围绕和组织的中央“房间”。
▽ 景观设计
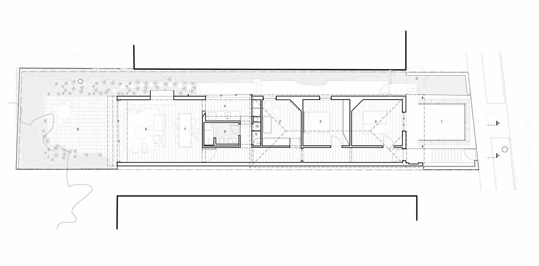
▽ 平面图
▽ 立面图
编后语:设计师刨除了华丽的设计要素,仅仅为原始小屋规划计划了房屋的逻辑性和简单性,让房子在简单中能够透露出不一样的美,也让建筑在经历时代的沉淀变得更加清新。更多关于旧楼改造、旧房改造、建筑设计的案例,请点击下面的拓展阅读进行跳转阅读。
来源网站:www.archdaily.com
翻译整理:WAQI
设计终究是一个不断学习的过程,WAQI作为一家学习型设计事务所,通常在设计的过程中,会分析甚至于拆建一些案例,
不定期分享一些心得。请扫描并关注公众号,更多精彩,与您共享。。。
马上分享WAQI:
微信
QQ空间
新浪微博
上一个
下一个