首页
Home
WAQI做些什么
Services
WAQI的作品
Projects
WAQI是谁
About us
WAQI学院
College
联系WAQI
Contact us
logo
用现代设计致敬殖民地故居|旧房改造
发布于:2021-02-08 16:51 浏览:
Casa Lupita位于尤卡坦州的历史中心梅里达(Merida),向其历史街区的经典殖民建筑致敬。该项目涉及改造修复以及建筑,室内,家具和景观设计。
该项目的概念前提是殖民地和当代建筑的并置。修复了19世纪的“ casona”,并拆除了1960年代建造的附加建筑,让位于传统的这种类型的传统中央露台布局。 立面经过改建以保留当时殖民地房屋元素的精髓,并将其放置在邻域内:门窗基于传统设计,传统装饰线条以水平缝隙为代表,踢脚线为用白色混凝土重新诠释。
项目信息
设计公司:Binomio Taller
项目类型:建筑设计、旧楼改造、景观规划设计
位置:墨西哥
▽ 建筑外观
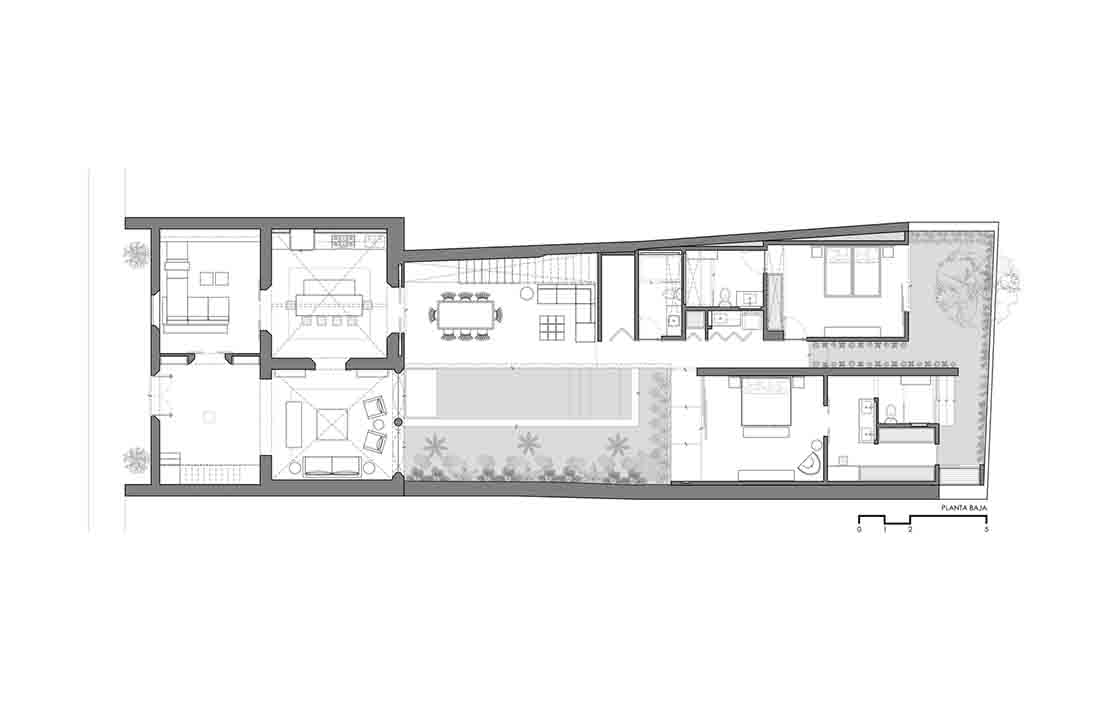
原始建筑容纳了社交区域,包括客厅,家庭室,厨房和艺术家的工作室。这个空间与项目建立了视觉上的连续性,消除了内部和外部之间的界限。新建筑包括私人区域,设有两间带套间浴室的卧室和一个私人屋顶花园。露台和游泳池是社交,私人和室外区域之间的纽带。
▽ 室内设计
▽ 景观设计
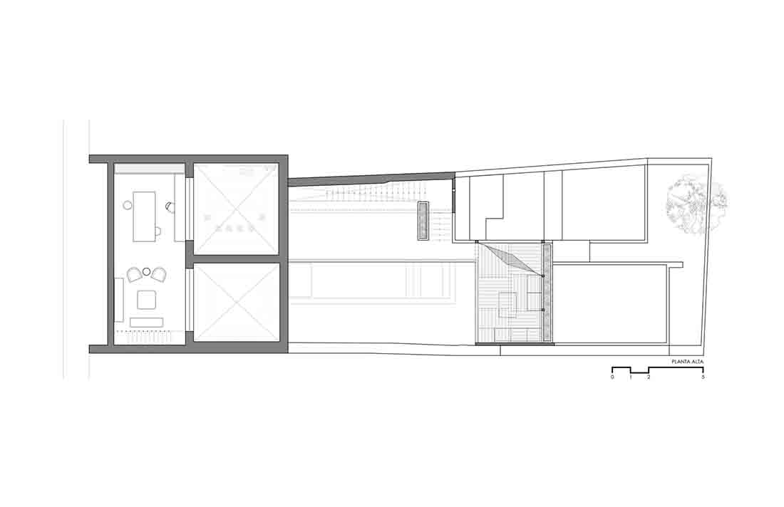
▽ 平面图
▽ 立面图
编后语:设计师利用现代设计,将两种不一样的文化糅合在建筑里面,让建筑在两种文化的碰撞下,有一种文化碰撞的美感,生态的设计让建筑能够在旧建筑的改造下,焕发新的活力。更多关于旧楼改造、旧房改造、建筑设计的案例,请点击下面的拓展阅读进行跳转阅读。
来源网站:www.archdaily.com
翻译整理:WAQI
设计终究是一个不断学习的过程,WAQI作为一家学习型设计事务所,通常在设计的过程中,会分析甚至于拆建一些案例,
不定期分享一些心得。请扫描并关注公众号,更多精彩,与您共享。。。
马上分享WAQI:
微信
QQ空间
新浪微博
上一个
下一个