首页
Home
WAQI做些什么
Services
WAQI的作品
Projects
WAQI是谁
About us
WAQI学院
College
联系WAQI
Contact us
logo
隐没在花田之乡的建筑|农场建筑设计
发布于:2021-02-08 17:39 浏览:
TaNung 寄宿行政办公室集群坐落于越南西部距离达拉中心18公里的Ta Nung 谷。这儿有个以花田之乡、无边咖啡农场而著名的小镇。这个办公室集群由于在达拉的周边,为8-10个工作人员提供了友好的工作环境,他们掌管了整个 Ta Nung 寄宿行政系统的运营。
项目信息
设计公司:MyAn Architects
项目类型:建筑设计、生态农场、景观规划设计
位置:越南
▽ 建筑外观
为了追求开放性、连通性,并与基地优美的自然环境进行互动,这个办公场地的中间布置了一处开放区域,是一个公共露台。许多更为私密的办公区域分布在其两边。主要的办公场所在这个建筑集群的东面,在那里人们可以边沉醉于美景和温和湿润的松树林的氛围中,边与人邂逅、工作、社交。
公共露台位于集群的中央,作为人们进入空间的缓冲区。这个平台是促进工作人员互动、让人们聚集在一起吃午餐的完美地点。一棵松树被保留作公共露台的一部分,使这里成为自然保护行动的见证者。
▽ 室内设计
这个露天平台也是连接主办公室和卧室套房、起居室以及其他设施的桥梁。充足的光照和自然的美景更唱迭和。从下至上大片连接的落地窗,配合朴素而典雅的松木建材和节奏分明的屋顶设计,在充分利用南北两向阳光和四周环境的同时,营造了趋于一体的户内外体验。
▽ 景观设计
设计师最大的挑战在于如何在不过度改变无电的Ta Nung自然丛林的原始风貌的前提下,依然能在夜晚找到这座宅邸。其解决方案便是利用多个暖光的低射频灯结合内部折射的效果,将这座宅邸打造成在黑暗中自主发光的灯笼,使其变得更生动并且更容易在夜间辨识。
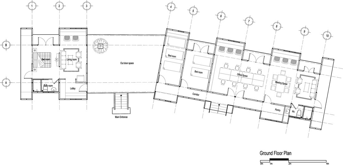
▽ 平面图
▽ 立面图
编后语:设计师将建筑隐于山谷中,为农场建成了一个现代化、相互连通又透明的工作场所,让建筑融入当地摄人心魄的美景中。让人们成为自然的保护者,也是自然的见证者。更多关于生态农场、生态设计、建筑设计的案例,请点击下面的拓展阅读进行跳转阅读。
来源网站:www.archdaily.com
翻译整理:WAQI
设计终究是一个不断学习的过程,WAQI作为一家学习型设计事务所,通常在设计的过程中,会分析甚至于拆建一些案例,
不定期分享一些心得。请扫描并关注公众号,更多精彩,与您共享。。。
马上分享WAQI:
微信
QQ空间
新浪微博
上一个
下一个