首页
Home
WAQI做些什么
Services
WAQI的作品
Projects
WAQI是谁
About us
WAQI学院
College
联系WAQI
Contact us
logo
在民宿中体会文化传承|民宿设计
发布于:2021-02-18 15:39 浏览:
民宿位于厦门翔安区大宅火龙果村,由村里3幢不同年代的祖屋和两幢新建建筑组成,3幢祖屋三十年代到七十年代不整,属建筑加室内改造,新的建筑为室内设计。
项目信息
设计公司:中国美术学院风景建筑设计研究总院
项目类型:建筑设计、民宿设计、景观规划设计
位置:中国
▽ 俯瞰图
▽ 建筑外观
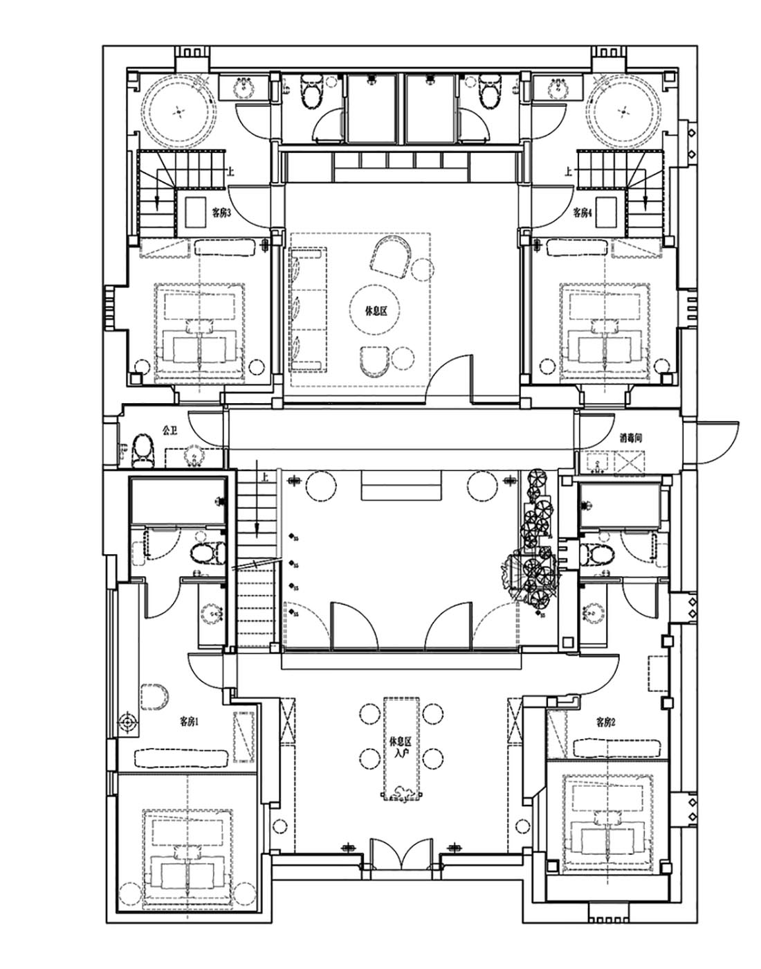
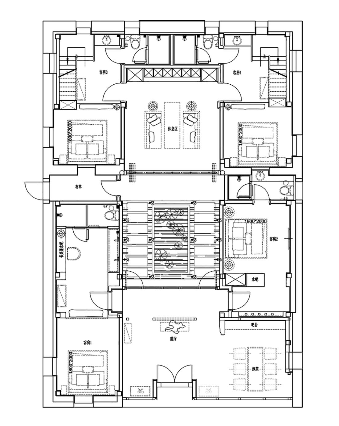
1号楼倒塌位置为建筑的一进厅和中庭西侧厢房,西侧外墙角石为不规则状态,设计在倒塌处植入一个线白色墙的小建筑与老建筑形成碰撞,运用几何构成开窗洞,加一把楼梯直达屋顶阳台,仰望星空。原有建筑则采用内套盒钢结构处理,边采用构成手法与结构的巧妙处理形成新墙与老墙的对话。
2号楼倒塌位置为一进门厅和在厨房的前半部,原木屋架已快倒,还有一个未倒的大门,中间两处厢房也已倒塌,中间养了一头牛,考虑到建筑位置刚好处于村里的主动线交叉口,设计在一进门厅和右厢房直接套入一钢结构架来支撑原有屋面木构体系,把外部用大玻璃展现以增加通透感的同时,增加邻里关系。中庭天井两处厢房采用1号楼处理方式,简洁明了。
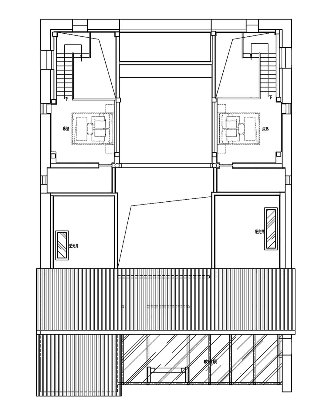
3号楼建筑是以条石和大板石砌筑,设计采用了内套钢结构手法做局部处理和修复,保留最初的感觉,由于石头房子采光不足,采用内置灯光处理以达到家的感觉。三幢古建的室内设计以闽南传承的工艺为主题,打造三栋楼,分别以木、石、瓷为主题植入,增加民俗文化的传承结合。
▽ 室内设计
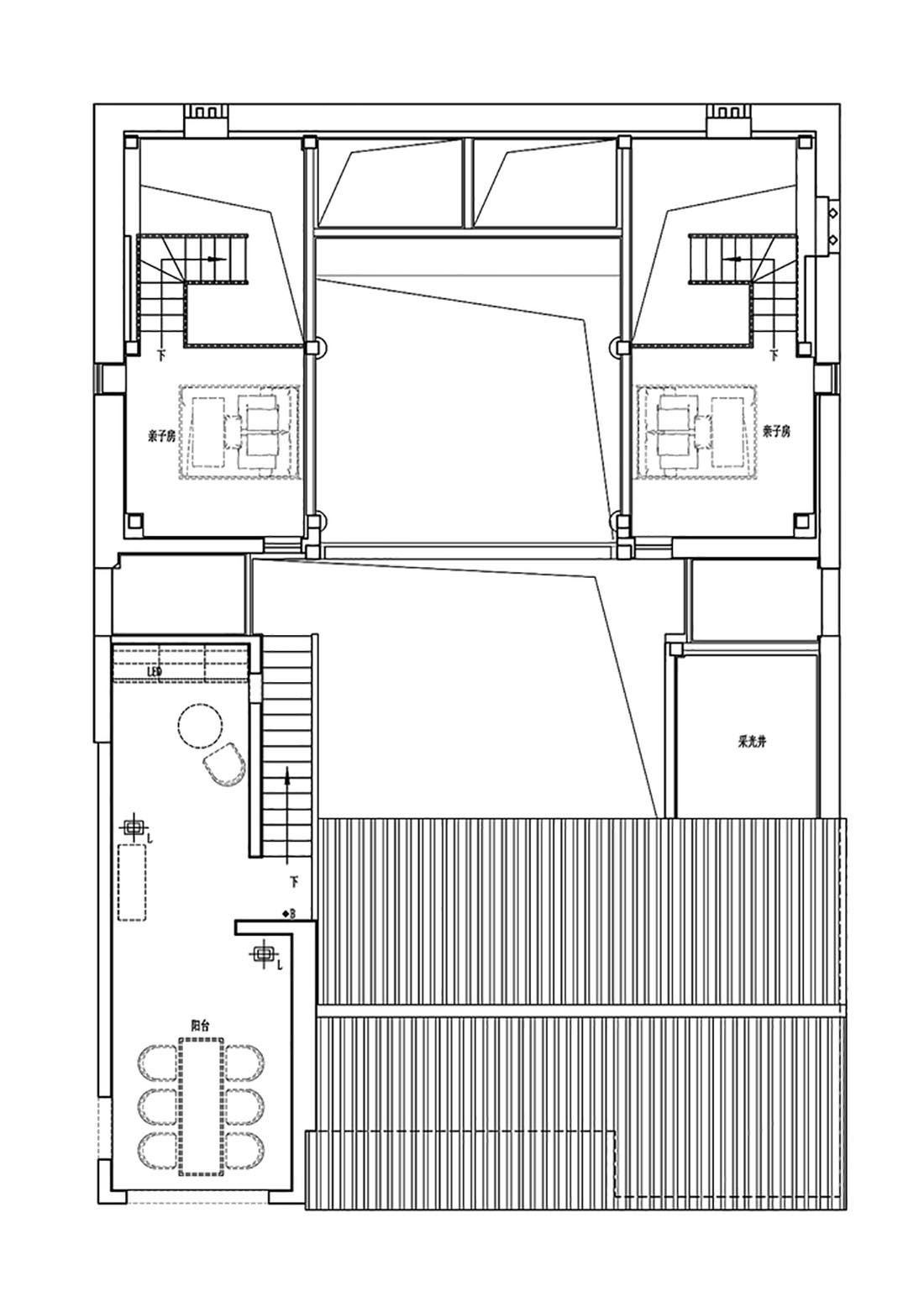
▽ 平面图
编后语:设计师在设计上引用闽南民谣为主线,通过时空的对话形成的建筑空间来表达思乡之情。让人在居住中能够感受到旧日家的感觉,还能在日常生活中看到了传统文化的传承结合。更多关于旧楼改造、民宿设计、建筑设计的案例,请点击下面的拓展阅读进行跳转阅读。
来源网站:www.archdaily.com
翻译整理:WAQI
设计终究是一个不断学习的过程,WAQI作为一家学习型设计事务所,通常在设计的过程中,会分析甚至于拆建一些案例,
不定期分享一些心得。请扫描并关注公众号,更多精彩,与您共享。。。
马上分享WAQI:
微信
QQ空间
新浪微博
上一个
下一个