首页
Home
WAQI做些什么
Services
WAQI的作品
Projects
WAQI是谁
About us
WAQI学院
College
联系WAQI
Contact us
logo
木结构的农场建筑美学|农场设计
发布于:2021-02-20 11:03 浏览:
投资者希望扩建他在南波希米亚州的农舍,这是他可以休息和放松的地方。设计师用半透明的由云杉和落叶松木材制成的木结构扩展了建筑物的一个侧翼的体积。在形式的表达方面,扩展部分与原始农舍完全和谐。然而,就结构而言,透明的木构架及其禅宗氛围形成了鲜明的对比。
项目信息
设计公司:Hut Architektury Martin Rajnis
项目类型:建筑设计、农场设计、景观规划设计
位置:捷克共和国
▽ 俯瞰图
▽ 建筑外观
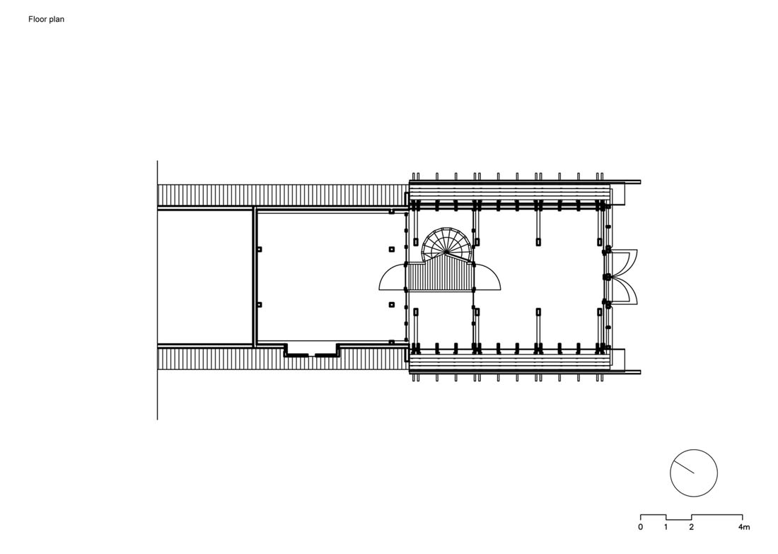
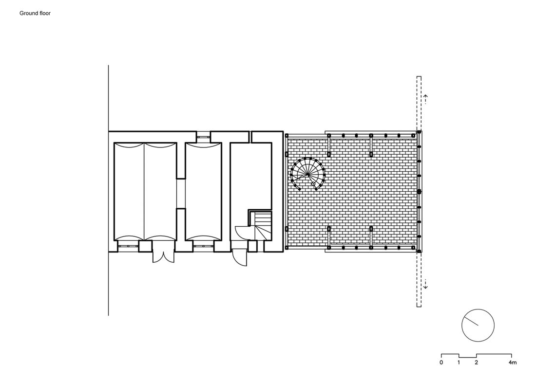
一楼用作柴火的存放处。穿过后,您可以沿着螺旋楼梯爬上连接旧阁楼和新阁楼的桥梁。每个空间都封闭一个房间。旧的阁楼充当天文台,新的阁楼充当瞭望台。新阁楼的木板组装外部阴影使人们可以窥视并观察周围的景观。
▽ 室内设计
另一方面,在旧阁楼中的天文台是昏暗的空间,可提供很大的私密性,因为光线只能通过狭窄的窗户进入。但是,屋顶的一部分可以在夜间移动,并且可以安静地观察星星而不会受到干扰。
▽ 平面图
▽ 立面图
编后语:设计师设计一种逻辑性的,功利主义的结构,这种结构可以最大限度地利用木材的可能性。乍一看很明显,但是木材结构的精确铰接可以在封闭空间中创造美感,而无需装饰创造新的建筑美学。更多关于农场设计、旧房改造、建筑设计的案例,请点击下面的拓展阅读进行跳转阅读。
来源网站:www.archdaily.com
翻译整理:WAQI
设计终究是一个不断学习的过程,WAQI作为一家学习型设计事务所,通常在设计的过程中,会分析甚至于拆建一些案例,
不定期分享一些心得。请扫描并关注公众号,更多精彩,与您共享。。。
马上分享WAQI:
微信
QQ空间
新浪微博
上一个
下一个