Tama是位于越南Tay Ninh市中心的一间民宿。民宿的主人是一对年轻夫妇,他们计划把这块91平方米的土地变成一个理想的落脚点。设计团队面临的挑战是如何合理利用自然环境和条件来创造自然通风,在最大化降低热带气候对房屋影响的同时,优化建造成本。
项目信息
项目名称:TAMA民宿设计
设计公司:N Architecture
项目类型:建筑设计、独栋住宅、民宿设计
位置:越南
▼项目概览

▼民宿外观及周边环境
夫妻俩对茶道和日本文化有着浓厚的兴趣,他们希望茶室、休息厅和花园空间之间有一种结合和联系。这些空间是必须精巧而灵活的,因此设计团队决定把建筑分成两个独立的部分,并在中间留出一个花园。前面是客厅,后面是茶道空间。所有这些空间都通过一个大型门廊系统连接到花园,这有助于创建一个灵活的、可以根据用户需求轻松改变功能的空间。花园里的池塘和树木在空间中形成缓冲,这既是建筑的亮点,也是一种有效对流的通风方式。
▼民宿主人坐在入口窗台
▼中心花园鸟瞰
▼茶室
▼茶室空间同样采用自然通风与采光
建筑使用了传统房屋的典型两层屋顶系统,包括仰合瓦和浮动框架天花板。其中,天花板是由覆盖着粗麻布的木框架制成的。屋顶和天花板之间是流通层,墙壁两侧为柱形系统。这种系统在屋顶和天花板之间形成了被动对流,以更好地隔热和提供极具日式特色的视觉效果。房间的一整面墙壁都被带百叶窗的半透明玻璃门替换,该设计在让光线易于在内部扩散的同时也为居住者提供了必要的私密空间。
▼典型两层屋顶系统为住宅提供了良好的通风效果
▼简洁的楼梯设计
▼走廊上方的浮动木制框架天花板
所有的房间都通过一个大型的开敞门系统与建筑的内外空间产生联系,卧室和卫生间合理利用了自然光和通风系统。建筑体量的立面用简单的线条展示了传统建筑的创新,大型开门系统则为项目空间增加了通透感。
▼卧室和卫生间合理利用了自然光和通风系统
茶室是根据民宿主人的喜好来设计的。所有门窗都可以大大敞开,让花园中的光线照射进来。大自然本身总是带着一种永恒的美。受到自然的启发,花园也采用了简单的材料和颜色,以最自然的方式被打造。能够在城市中心与自然融为一体,让人感到格外的平静悠然。
▼夜色下的民宿
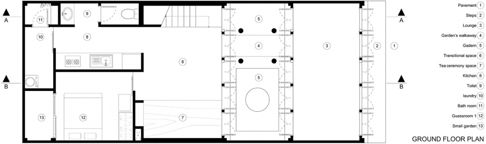
▼首层平面
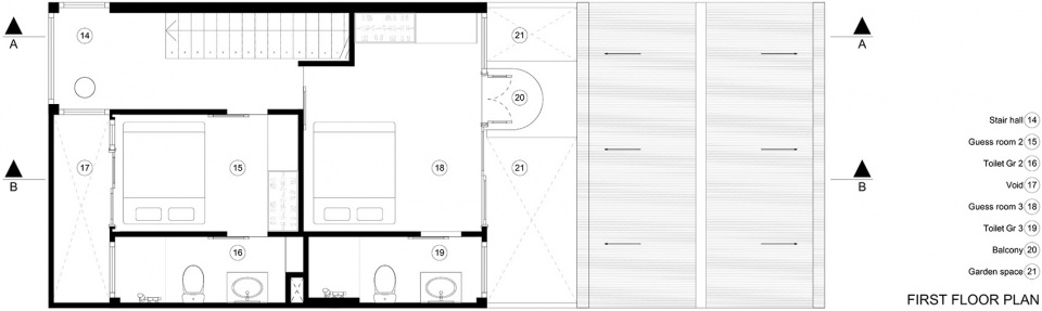
▼一层平面
设计终究是一个不断学习的过程,WAQI作为一家学习型设计事务所,通常在设计的过程中,会分析甚至于拆建一些案例,
不定期分享一些心得。请扫描并关注公众号,更多精彩,与您共享。。。