TAMNI旅舍所在的场地上原本坐落着几间超过60年历史的旧店屋,包含22个住宅单元。频繁的使用和不标准的建造让既有建筑逐渐变得破败。店屋的主人世代居住在这里,地块前方道路的名称便是以其家庭姓氏命名。开发该地块的最初目的并非是为了商业经营,而是为了给社区和环境带来良好变化,并为居住在这里和附近地区的人——尤其是长久以来生活在这里的业主——创造更加幸福的生活。
项目信息
设计公司:PO-D Architects
项目类型:建筑设计、青年旅社、休闲娱乐
位置:泰国
关键词: 石材、木材、混凝土、涂料
原本的22个既有单位被改造为占地700平方米的旅舍,包含水疗区和一套两居室的私人住宅,总体使用面积为1100平方米。原先的4间店面被拆除,创建了一个新的中心庭院,从而带来更好的通风、宽敞的空间和多元的视野。庭院为社区提供了放松的空间,能够让人们在一种平静休闲的氛围中产生互动。
旅舍的名称“TAMNI”,其原本的意思是“责怪”,这源于业主本人在项目开始时的想法:把并不完美的事物拿来使用,通过修饰和改进,使其得以与完美的事物相媲美。项目中的各个部分都展现出了这样的理念,旧材料、旧电器、旧元素和旧的故事,它们以适宜的比例融合在一起,展现出一种迷人而独特的魅力。这是作为一个长期居住在这里的人所希望创造的难忘体验。
▽项目概览 【图1】
▽俯瞰场地 【图2】
▽建筑改造前后对比【图3-图4】
▽主入口立面【图5】
▽ 建筑内部透视图【图6-图9】
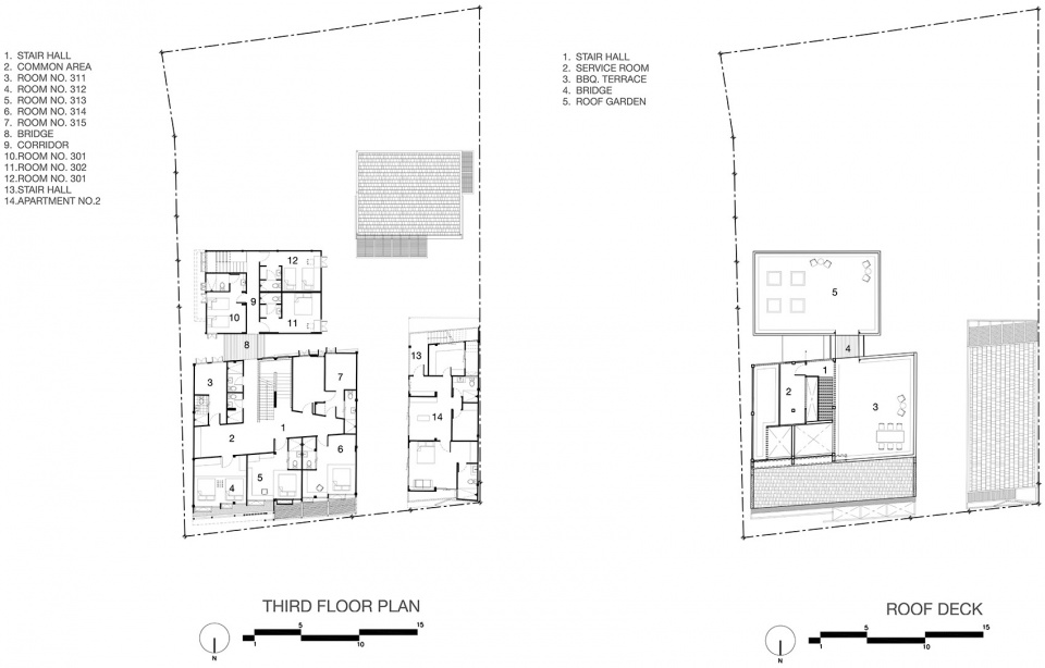
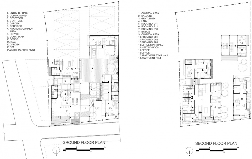
▽ 建筑平面图【图10-图11】

来源网站:www.archdaily.com
翻译整理:WAQI-Siwen
设计终究是一个不断学习的过程,WAQI作为一家学习型设计事务所,通常在设计的过程中,会分析甚至于拆建一些案例,
不定期分享一些心得。请扫描并关注公众号,更多精彩,与您共享。。。