英国Stanbridge农场图书馆 | 农场建筑
发布于:2022-04-18 23:15  浏览:

      项目坐落于英格兰多塞特郡被列为二级保护遗产的Stanbridge Mill农场中,曾是农场外围建筑群中的一栋。本项目中主要改造的建筑是一座美丽的乔治亚风格乡村农屋,屋前流淌着一条浅浅的河流,河流的尽头是一座保存完好的水磨房。这里曾是农场的牛棚,四十多年来一直用于储存农业机械和园艺用具。
 
项目信息
项目名称:英国Stanbridge农场图书馆
设计公司:Crawshaw  Architects
项目类型:农场建筑
位置:英国
 
关键词建筑设计,田园综合体,乡村改造,农场建筑
 
       项目坐落于英格兰多塞特郡被列为二级保护遗产的Stanbridge Mill农场中,曾是农场外围建筑群中的一栋。本项目中主要改造的建筑是一座美丽的乔治亚风格乡村农屋,屋前流淌着一条浅浅的河流,河流的尽头是一座保存完好的水磨房。这里曾是农场的牛棚,四十多年来一直用于储存农业机械和园艺用具。



▽ 项目外部透视图




       项目的设计方Crawshaw建筑事务所树立了一个雄心勃勃的目标,致力于为这栋不受欢迎的建筑赋予惊人的吸引力,并将以前狭窄幽暗的农场建筑改造成通透明亮的图书馆与办公空间,除了用于收藏私人书籍外,还将保存并展出一系列关于帕拉第亚建筑的部分史料章节。虽然建筑的室内空间注定了被改造的命运,但是设计师认为建筑的原始功能应该成为整个项目叙事线索中的一部分。



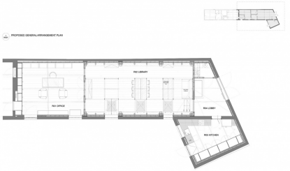
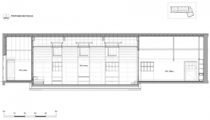
       图书馆呈现出中央拱顶以及对称式走廊的古典形式,但是原始结构中采用的传统农场木工、金属材料与施工工艺,却在建筑的新旧用途之间建立起一定的联系。改造方案仅仅涉及到两座原始木桁架的拆除,拆除的桁架如今已被层压木框架结构所取代,全新的结构除了起到加固外墙的作用外,同时还形成了隧道式的中央拱顶走廊。中央空间的一侧,连续的木制拱顶被三处天窗打断,这种设置为书架以及阅读空间提供了充足的自然光线。图书馆的部分地面采用了下沉的形式,这些下沉空间比其余室内空间低两英尺(约60厘米)。

 





▼平面图


▼整体剖面图





WAQI相关案例链接
乡村规划:https://mp.weixin.qq.com/s/VJGQI4q1NQpngA2xynAs_g
罗婺文化特色小镇:https://mp.weixin.qq.com/s/zq6kDoZwqCLfPTJuPhja9g
另类接待中心:https://mp.weixin.qq.com/s/azHrNYJIDFCgo14QjvQN4Q



设计终究是一个不断学习的过程,WAQI作为一家学习型设计事务所,通常在设计的过程中,会分析甚至于拆建一些案例,
不定期分享一些心得。请扫描并关注公众号,更多精彩,与您共享。。。