
项目名称:广州工作室改造
项目地点:广东省广州市
设计时间:2012年
设计面积:120平方米
该设计为一住宅改造设计,将住宅改造为工作生活两用的场地。现有场地中有一种满植物的阳台,植物生长良好。希望将其打造成为一处被植物包裹着的处处是绿意的房子,就好象柬埔寨森林里的寺庙的遗迹一样。
场地改造前

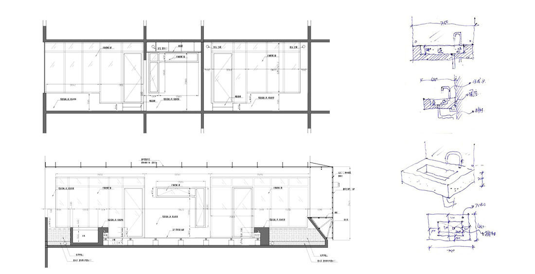
部分设计图纸

SU模型展示

空间分隔施工过程




阳台屋顶花园施工及SU效果



主要材料

废料利用


浏览地址: