森林之家|乡村改造/建筑改造
发布于:2022-08-09 15:09  浏览:

项目信息
 
项目名称:捷克乡村住宅“森林之家”
 
设计公司:kaa-studio
 
项目类型:乡村改造,旧改,市政
 
项目位置:捷克



设计师对位于 Lany 郊区的小屋进行复古风格改造,建成后将被用于周末度假小屋。
这栋住宅位于村庄外缘, 街道的一侧为一排乡村住宅, 另一侧是森林边界。 附近的住宅经过层层扩建改造已丧失了原有样貌,而本次设计的住宅则是几乎保留了房子原本的外形,从这一点上便让它从周边的建筑中脱颖而出。



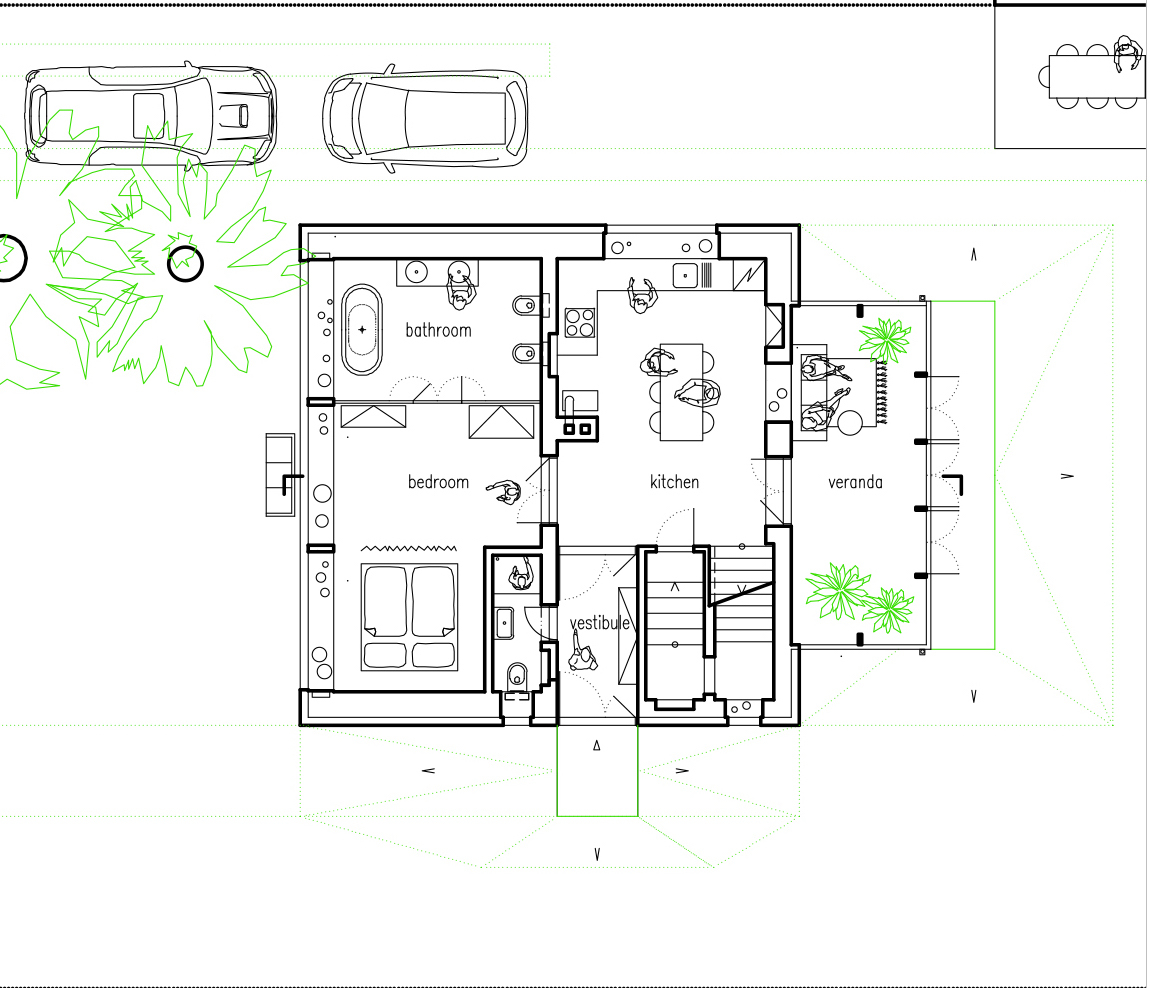
 住宅格局简单,有鞍形屋顶,底层抬升,半层地下室。由于居住层的布局方式,整个房子的背面相对花园几乎是完全封闭的。房子的主入口有一个门厅,居住层的入口的布局有些过于复杂。上层有一个典型的阁楼和一个小房间。整个房子仅开了小窗,室内较为幽暗。





在周围的其他建筑都随意加建的情况下,我们希望可以将人们的目光吸引到一个精巧的“小屋状”的住宅体量。针对原先的住宅我们仅仅调整了室内布局和开窗。现存的阁楼也被保留,引入光线使其更加明亮。唯一的加建是在面向花园处增加了木质露台。



原先的门廊被拆除,房子的入口彻底重新布局。在底层仅保留了中心的承重墙和楼梯,这使得居住空间的布局变得更加现代,同时与主要的花园产生了联结。阁楼层现在被改为一个开放的空间。

▽ 项目剖面图


新的窗户在外立面上的呈现对应了室内布局的改变,原先的窗户进行了局部的调整。在南立面有一整条窗带穿过了屋子,使室内有更多光线,同时可以看到附近的森林。阁楼层北面也在屋顶上开了一整排窗户,使室内开放空间更加明亮,使空间向花园开放,同时可以看见周围 Lány 镇的景色。



森林附近的社区和前院的两颗老云杉木定下了整个宅基地的基调。我们希望住宅可以有森林般的颜色,因此房子的立面呈深灰棕色。



入口到主居住层和花园层的高度差是用筑起的覆盖绿植的土丘,以粗糙的石头加固而成。

▽ 底层平面图


在重建时我们利用了原先房子使用的材料和工艺方法,如传统的建造材料:砖、灰泥、石材、木材、陶土和铜。
室内上我们希望保持乡村风格,简单平凡,以功能导向。我们也设计了包括椅子的几乎所有木质家具。







来源网站:archdaily
翻译整理:WAQI
编辑:sheila

设计终究是一个不断学习的过程,WAQI作为一家学习型设计事务所,通常在设计的过程中,会分析甚至于拆建一些案例,
不定期分享一些心得。请扫描并关注公众号,更多精彩,与您共享。。。