一个马厩的改造|乡村改造/旧房改造
发布于:2022-08-29 10:12  浏览:

项目信息
 
项目名称:马厩改造,Good Mews Story 公寓
 
设计公司:Sanya Polescuk Architects
 
项目类型:乡村改造、旧改
 
项目位置:伦敦




一个新的、低碳的、多代同堂的公寓被安置在伦敦北部的维多利亚式的马厩改建成的住房中。建筑师的工作室包括一个多人居住公寓坐落在路旁。10 年前工作室完成过相似的设计,该项目为事务所提供了一个机会,以审查其重新改造马厩房屋的技巧方法。并且,现在有更多的再生回收材料和更多的能源效率可以利用。







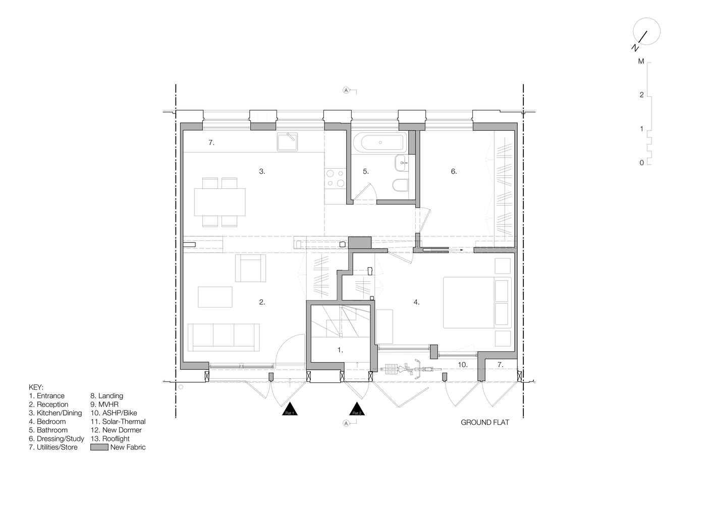
这座中阶房屋原本为维多利亚时代的员工宿舍马厩,于 1980 年代被部分地改造成了房屋。它包括一个不隔热的阁楼,一个位于底层的开放式车库兼储藏室,以及大量的浴室。设计大纲要求设计一对高效的、有未来感的、独立的住宅,并在未来有一个相互连接的空间。位于底层单床位公寓上的四床公寓,其第一批住户为逃离冲突的难民。





建筑外层是完全绝缘的,用内部欧松板 (OSB) 密封,并在全屋安装了机械通风加热恢复系统(MVHR)。旧砖砌通过定点预留孔进行独立通风。顶层的开放式船形烹饪/生活空间利用再生石板做为屋顶。在屋顶上,太阳能热水板被嵌入到南面的屋顶上,而一对隔热并现代的天窗则位于朝北的屋顶上。虽然从街上看是一样的,但其中一个天窗在起居区隐藏了一个全高的落地窗,而另一个天窗则在厨房旁边有一个较小的窗户,里面有一个草药花园。这些开口都被精心设计过,并最大化接收利用来自南北的光线。
 




通过限制水泥使用,废物利用和重新使用现场发现的许多建筑元素,该项目减少了垃圾填埋和碳排放。在灰泥墙内发现的木板作为墙面材料被安装在通往阁楼的老式螺旋楼梯周围;次等地板被翻转 90 度作为阁楼低墙的覆层;暴露的屋顶脊梁与回收的木结构放置在一起;窗户被重新悬挂,并重新安装了超薄的双层玻璃和新的密封带;老式马厩门在原铸件的基础上新制作了铰链进行翻新修复。







在这些门后面,三层崭新玻璃门窗有高效的热封,能最大化让日光进入内部空间。该项目没有将地暖(UFH)浇注到砂浆中,而是用预沟槽的薄硬板直接覆在厚厚的地板隔热层上。同时,该项目利用单色材料包括水磨石瓷砖与可 40% 回收的瓷器和酸奶罐板作为厨房单元和工作台面。项目也含括了热泵设计。当公众接受使用热泵时,房屋内增加的热能可以帮助公众从使用天然气过渡到使用热能。







来源网站:archdaily
翻译整理:WAQI
编辑:Sheila 

设计终究是一个不断学习的过程,WAQI作为一家学习型设计事务所,通常在设计的过程中,会分析甚至于拆建一些案例,
不定期分享一些心得。请扫描并关注公众号,更多精彩,与您共享。。。