首页
Home
WAQI做些什么
Services
WAQI的作品
Projects
WAQI是谁
About us
WAQI学院
College
联系WAQI
Contact us
logo
斯特拉马图蒂娜博物馆/糖厂改造
发布于:2018-08-11 18:44 浏览:
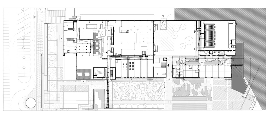
自1991年以来,斯特拉·马图蒂纳博物馆(Stella Matutina),又称法国博物馆(Musee de France)成为文化和遗产景观的标志性建筑,目睹了一次重大改造(总建筑面积37329平方米,包括博物馆和周围建筑物的景观)。 在新的科学和文化计划的推动下,该项目重点关注原糖厂的建筑和博物馆的踪迹,以及一系列丰富的馆藏和创新的多媒体和互动技术。 项目实施包括建筑物的修复,收集物品的恢复和博物馆方面。 L'Atelier建筑师团队负责现场的所有操作,包括环境修复,机器修复和原地运输重型收集物品。 L'Atelier建筑师团队为期五年的冒险经历,负责与约四十家公司的协调。
让人们回到他们应有的位置
博物馆设计思想先于建筑设计思想,它不仅是对这个岛的工业和糖业历史的提醒,也是对一个地区、它的定居点和它的人民历史的演讲的基础。
工厂,主要收藏家的项目
将现有博物馆的原材料、老厂区的建筑、馆藏和文献资源整合在一起,重建历史。这个故事由博物馆馆长洛朗·莱德(Laurent Laidet)讲述,将这座建筑置于主题的中心。
五章之旅
新博物馆的参观分为五个章节,展开超过1200米(3600平方米)。 如果参观完整,博物馆阐述了甘蔗的转型及其后续创新,斯特拉·马图蒂纳博物馆也是一个了解团聚社会历史的工具,由糖业强烈塑造,并向男女致敬,正如我们现在所知道的那样建造了岛屿并且赋予它身份的人。
额外的空间
为现代博物馆的运作还分配了额外的空间:保护,展览,调解,广播,教学空间......
设计嵌入在网站中
L'Atelier建筑师团队在整个设计阶段搬到了旧工厂的工地。 建筑团队承担了占用场地,环境和历史的重要任务。 由于与工厂的前工人合作,也有了特殊的见解。 这增强了对场地及其光线,工厂在景观中的整合,该地区的历史及其居民的理解。
纯粹的建筑工作
挑战在于恢复原始区域并加固具有强烈象征意义的工厂。 最终,博物馆只是旧工厂,已被揭露。 去除了使博物馆难以理解的门户和多个分层。 工厂重生并扩展其整体和威严。
这幢大楼的外观焕然一新
改造是故意在工厂外观上进行。 它仅限于建筑物外部的变化,以便更好地将其识别为博物馆,标志着它从工业建筑向文化建筑的过渡。选择了稍微昂贵的铜包层处理方法。
百叶窗使北立面振动
北立面上铺有百叶窗。 这个大型水平覆层使建筑物通风,同时保护建筑免受阳光照射。 此外,它提供了一个美丽的自然光,其内部根据一天中的时间而变化。 从远处看,外立面在阳光下像糖一样振动和闪耀。
离散扩展融入“景观”
为了满足客户对拥有档案馆、临时展览馆和圆形剧场的需求,新增加和扩建的部分以斯特拉博物馆的轮廓保持不变的方式布置。 延伸部分隐藏在现有建筑的轮廓中,它们不会以任何方式改变博物馆的感知,尤其是它出现时的轮廓。 它可以从这条连接岛屿北部和南部的主要公路塔马林斯 (La Route des Tamarins)逐渐被发现。
移动和恢复机械
大约有60台机器被翻新并在博物馆展出。在现场一个拥有这项工作需要的所有预防措施的建筑下,一些大尺寸的机械进行现场修复。 更一般地说,将近600件收藏品的修复能利用经验丰富的人传授技能给当地参与者。
协调约四十个承包商
斯特拉建筑工地的管理任务很复杂,因为承包商的数量需要协调(40个承包商),几乎需要考古预防措施才能恢复工厂的不同历史层次,新技术由众多多媒体设备装载 - 博物馆有48个多媒体设备,包括一个4D电影院,内置总共25公里的网络电缆。
一个非常复杂的清理站点
在土壤中发现石棉需要实施一项持续近一年的复杂和创新的污染控制过程。
一个教学和遗产空间通向海洋
本土植物、果树、灌木、芳香的草本植物组成的园林景观为游客创造了一个教育、休闲和遗产空间。 花园和户外空间经过全面翻新,包括多条小径以及专门举办各种活动的外部空间。
信息来源:https://www.archdaily.com
设计终究是一个不断学习的过程,WAQI作为一家学习型设计事务所,通常在设计的过程中,会分析甚至于拆建一些案例,
不定期分享一些心得。请扫描并关注公众号,更多精彩,与您共享。。。
马上分享WAQI:
微信
QQ空间
新浪微博
上一个
下一个