首页
Home
WAQI做些什么
Services
WAQI的作品
Projects
WAQI是谁
About us
WAQI学院
College
联系WAQI
Contact us
logo
藏在屋顶后面的房子|生态建筑设计
发布于:2018-10-25 17:22 浏览:
这栋建筑位于波兰克拉科夫的郊区。该建筑是由住宅区的一部分,这个地产的特点是土地价格高,因此发展密集。为了确保居民的隐私,在通道和北方邻居的后面的之间,房屋隐藏屋顶后面。这正是它被称为“屋顶背后的房子”的原因。
项目信息
设计公司:Superhelix Pracownia Projektowa
项目类型:生态建筑设计
位置:波兰
▽ 俯瞰图
由于城市的蓬勃发展,越来越多的自然区域被用于开发,因此生态设计方法尤为重要。建筑物的北部屋顶覆盖着多肉植物,光伏电池被放置在阳光充足的南部。
▽ 绿色屋顶有45度的斜坡
设计一个传统的平面绿色屋顶会更容易,但当地建筑法律不允许这样做——屋顶必须倾斜。尽管绿色屋顶表面明显超过了建筑物所占的面积,这种解决方案要贵得多。因此,可以说从大自然中获取的东西已经让我们付出了代价了。
▽ 南北两面屋顶的衔接处开有带状的窗户
建筑物的特征元素是由层压木材制成的结构,其具有对角线引导的元件和屋顶边缘处的底切。它不仅暴露在外面,还渗透到建筑物的内部。在两个屋顶斜坡的连接处,有窗户让大部分光线进入。窗户安装在地面以上,打开时自然通风非常有效。
▽ 绿色屋顶能够长时间地抵御干燥环境
Superhelix工作室特别注意建筑物和材料随时间推移会发生的变化,建筑物的立面用西部红雪松木板覆盖,这种木材无需刻意进行防虫和防雨,随着时间的流逝,它会带来高贵的光泽并将其颜色变为银灰色。绿色屋顶也不需要特别小心,它不需要浇水,能长时间抵抗干燥问题,阴暗的北方暴露和植物保水性保证了这一点。
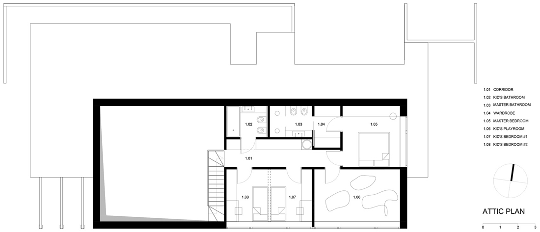
▽ 住宅楼层分布
房子采用矩形设计,有两层共189平方米。由于公共交通不发达,而且建筑位于郊区,居民主要使用汽车通勤。这就是为什么车库放在房子一楼里面,靠近起居室和厨房的原因。客房,卫生间和杂物间也位于这个楼层。在二楼有带更衣室和浴室的主卧室,两个儿童卧室,儿童浴室和儿童游戏室,也可根据需要进行调整。
编后语:这个项目的高级感在于它的环保节能设计上面:建筑的南边是日照充足的地方,屋顶的太阳能板能够很好的利用起来;屋顶的植被也是无需维护的适合当地气候的植被,铺满绿色植物反射了太阳的能量,而且随着植物的蒸发,建筑物的周围环境温度通过蒸发冷却降低。国内很多建筑物也都会建有小型的花园,除了美观以外,更多的还是降低建筑物周边的环境温度,降低城市热岛效应。屋顶的植物选择与地面的不一样,更多的要考虑阳性的、耐旱、耐寒的植物。WAQI在对
怀来农产品展示中心(点击可跳转阅读)
进行景观建筑设计时也是如此。不仅如此,富有温度的生态设计,就像田园综合体一般的自然生态姿态,让游客不会感到突兀。自然、生态和有温度是人性化建筑的三元素,也是WAQI的建筑设计观,为此我们在路上。
来源网站:www.archdaily.com
翻译整理:WAQI
设计终究是一个不断学习的过程,WAQI作为一家学习型设计事务所,通常在设计的过程中,会分析甚至于拆建一些案例,
不定期分享一些心得。请扫描并关注公众号,更多精彩,与您共享。。。
马上分享WAQI:
微信
QQ空间
新浪微博
上一个
下一个