首页
Home
WAQI做些什么
Services
WAQI的作品
Projects
WAQI是谁
About us
WAQI学院
College
联系WAQI
Contact us
logo
夜半诗成欲寄君|双溪书院的诗意建筑设计
发布于:2018-11-06 18:29 浏览:
在中国,湖南在诗词界流传着“全国诗人半在湘”的美誉。湖南省的双溪书院则以其独特的山水人居的方式——依山取势,临溪而居,分合布局,错落有序——来重新诠释这一诗性。
在双溪书院,似乎建筑设计中所有物理空间的构想都应当被赋予某种情境:游山、访古、寻幽、高卧、倚竹、观鱼、濯足、鼓琴、品茶、焚香,这些诗意的片段都自然的再现,并又被自然而然的重新置入当代人文精神与生活之中。正如海德格尔所倡导的:“正是诗意,首先使人进入大地,使人属于大地,并因此使人进入居住。”
项目信息
设计公司:多相界建筑设计
项目类型
: 营地规划、自然教育、生态设计、建筑设计
位置: 白茆村,平江县,岳阳,湖南,中国
▽ 书院鸟瞰图(依山而建,呈现似“半”字)
▽ 除大厅和茶室外,七个单体建筑被分别隐藏在四条张开的山谷内
在建筑的风格样式上,双溪书院的建筑是运用现代的建筑材料和结构技术来体现地域传统建筑意向的尝试。从内天井的结构布局,到木构构架与高耸的白墙,连续的灰瓦坡顶,到石、木、瓦等材料肌理,这些建筑设计的形象生成既来源于当地的传统民居建筑,同时也是对更广义的中国南方民居的建筑符号的片段提取和抽象提炼。在建造上,除了常规的混凝土框架作为基础结构,还使用了大量的竹钢,铝板金属屋面,和一部分GRC(玻璃纤维加强混凝土)材料,这些材料的组合也对施工工艺提出了新的要求。在风格上,双溪书院的七个单体建筑,总体有相似的元素,但又因山势而样貌迥异,各有特点。
▽ 关系示意图
▽ 接待堂
因为山谷限制了人们的视野,所以游客只能从特定的角度开始参观。从这些角度来看,游客首先会看到树木或竹林,然后将注意力转移到更远的山脊上,将它们所处的位置定位为整个画面的中间层,并在其平面形状上超越立面的质量。
在接待大厅的顶部,屋顶线是向下的弧形,并且正面立面简化为垂直线。虽然这里没有使用典型的平铺斜坡设计,但是檐口下的分层椽子仍然可以显示出与传统结构的联系。其他侧面立面是正面立面的直接副本,形成围绕“庭院”的方形结构。基本上,这种类似“回”的结构的灵感来自平江区的内部庭院。
▽ 接待堂结构分析图
为了达到更轻薄的形体效果,建筑主体采用竹钢搭建,竖向的立柱每根都为承重住,从而达到均匀受力的效果。“柱”与“梁”的连接部分采用简单的交错堆叠起来进行构造的方法,使其在形式上产生出类似斗拱结构的效果。而屋顶则采用GRC预制板,直接“平落”在竹钢框架上;屋顶面层采用金属瓦,而非传统瓦,这些做法都极大的减轻了屋顶重量,使整体结构轻量化,更传达出一种具有现代气质的南方建筑的秀美。
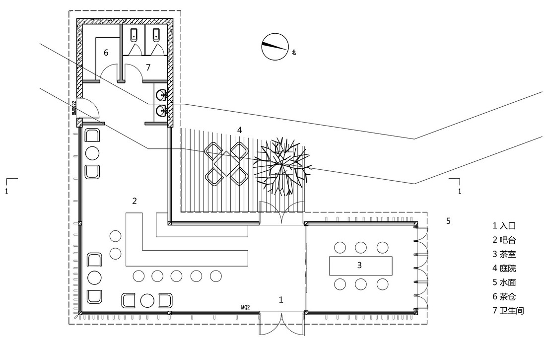
▽ 茶室
▽ 书院与先生房
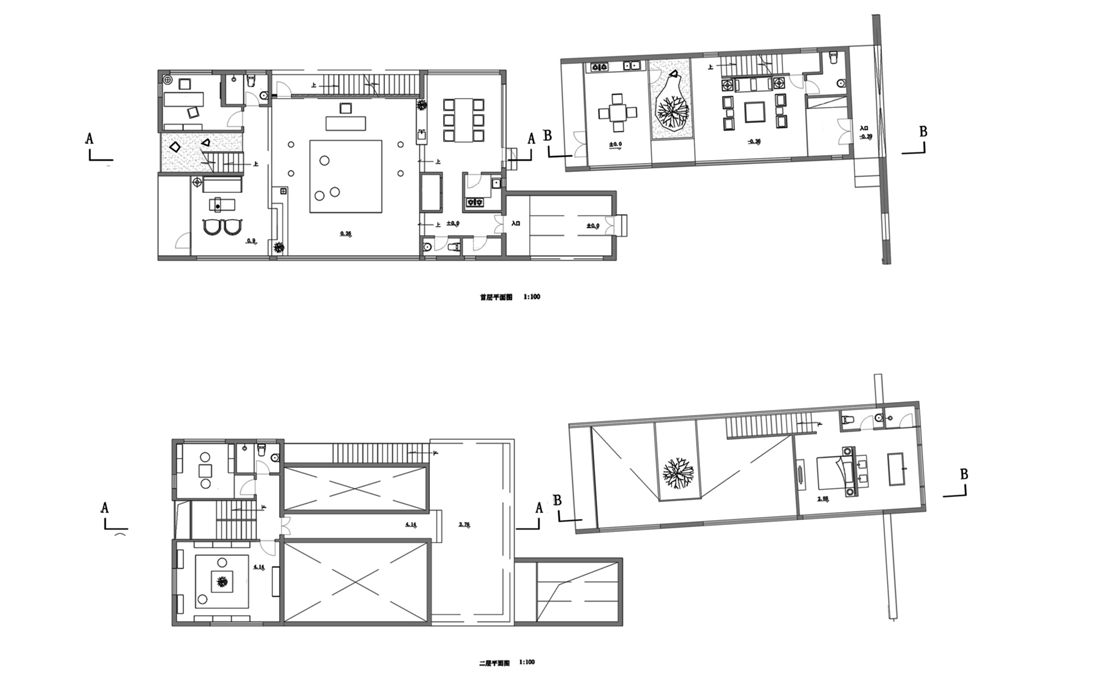
书院与先生房位于西侧的谷内,隐藏在一片茂密的竹林之后。随坡而上,一侧是小溪,一侧是茂密的竹林。路尽头是书院的入口大门,位于白色院墙左侧,这和右侧越过白墙挑出的休息室共同形成均衡的构图关系。进入大门,U形的庭院才清晰可见:庭院被台地分成两级,连接两个单体,错落的空间关系形成了更丰富的景观体验。建筑看似由两栋独立的单体构成,但通过相同的结构和材质,使两者之间形成一种整体的关联。书院建筑的屋顶从两侧向内倾斜,并由远及近逐层错落,形式与周边山势轮廓相呼应的轮廓,应对与周边的景观关系。
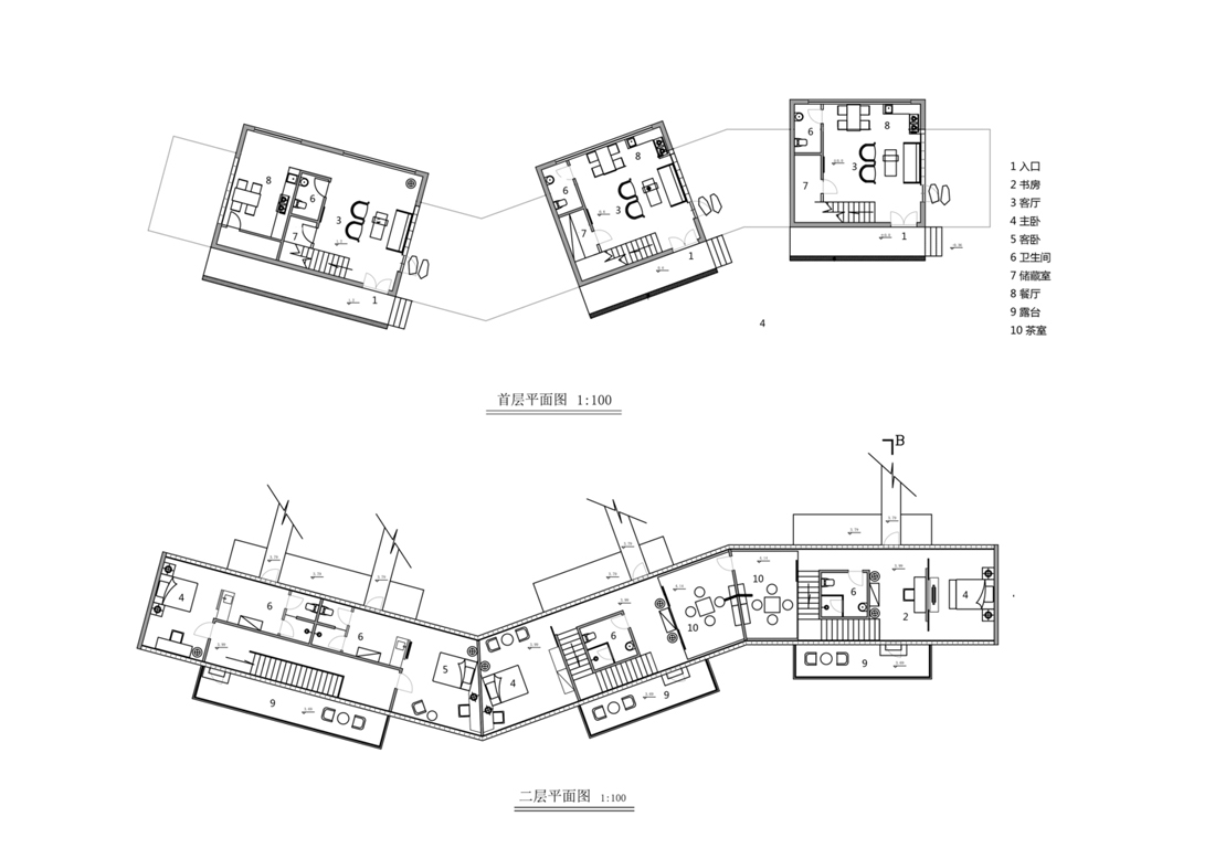
▽ 山谷客房
这一建筑单体总面积约1100平方米,建筑形态完全契合原有的山谷地形,呈折线形随地势逐级抬高,通过高低错落的坡屋顶围合构成具有南方乡村特征的巷道空间。巷道两侧的客房屋顶成V字形态,从总体的形态上和接待堂,书院建筑是一致的。单坡屋顶相对于客房而言,为室内提供了更好的观山视野。
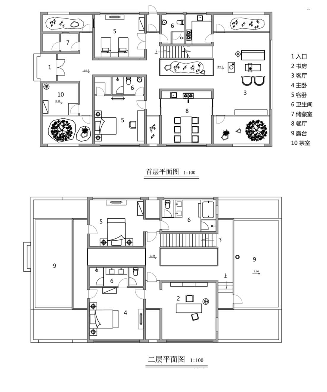
▽ 三折别墅
▽ 四分别墅
▽ 接待堂平面示意图
▽ 茶室平面示意图
▽ 书院平面示意图
▽ 客房平面示意图
▽ 三折别墅平面示意图
▽ 四分别墅平面示意图
编后语:隐居山林,与自己促膝长谈,是现在人们热切盼望的事情。在山间小屋里煮一壶热茶,颇有“夜半诗成欲寄君”的韵味。设计师利用中国山水画的若隐若现的诗意,融合在这座书院当中。人们常说想要与自然进行对话,所以我们只能通过建筑与自然进行对话。精妙的设计,合理的规划,让人与自然的距离迅速缩短,不仅如此,置身其中还能感到与古人思想的不谋而合。
来源网站:www.archdaily.com
翻译整理:WAQI
设计终究是一个不断学习的过程,WAQI作为一家学习型设计事务所,通常在设计的过程中,会分析甚至于拆建一些案例,
不定期分享一些心得。请扫描并关注公众号,更多精彩,与您共享。。。
马上分享WAQI:
微信
QQ空间
新浪微博
上一个
下一个