在屋顶唱着你的歌|Kampung Admiralty生态建筑设计
发布于:2018-11-07 11:21  浏览:

       Kampung Admiralty是新加坡首个将公共设施和服务融为一体的综合公共开发项目,毗邻金钟地铁站。包括医疗保健,老人护理,儿童保育和商业设施在内,Kampung Admiralty将作为一站式中心,通过其创新设计,公共空间和可持续特色鼓励社会互动和积极生活。
       让每个政府机构分割出他们自己的土地,从而形成几个独立的建筑物。另一方面,这个一站式综合综合体最大限度地利用土地,是满足新加坡人口老龄化需求的案例。
 
 
 
项目信息
设计公司:WOHA
项目类型:生态建筑设计、生态设计
位置:新加坡
 
 
▽ 建筑外观图
 
 
 
▽ 俯瞰图
 
 
 
 
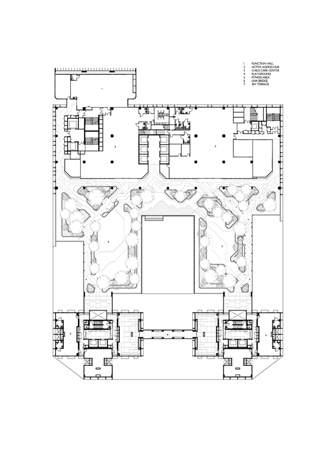
       该项目位于一个高度限制为45米的高处,采用分层的“三明治”方法,设计了一个“垂直城市”,下层为社区广场,中层为医疗中心,社区公园为上层的老年人提供公寓。这三个不同的阶层并列了各种建筑用途,以增加了的多样性,并为住户以及周边居民腾出了基础。靠近医疗保健,社交,商业和其他便利设施,支持相互联系,促进积极应对人口老龄化带来的问题。
 
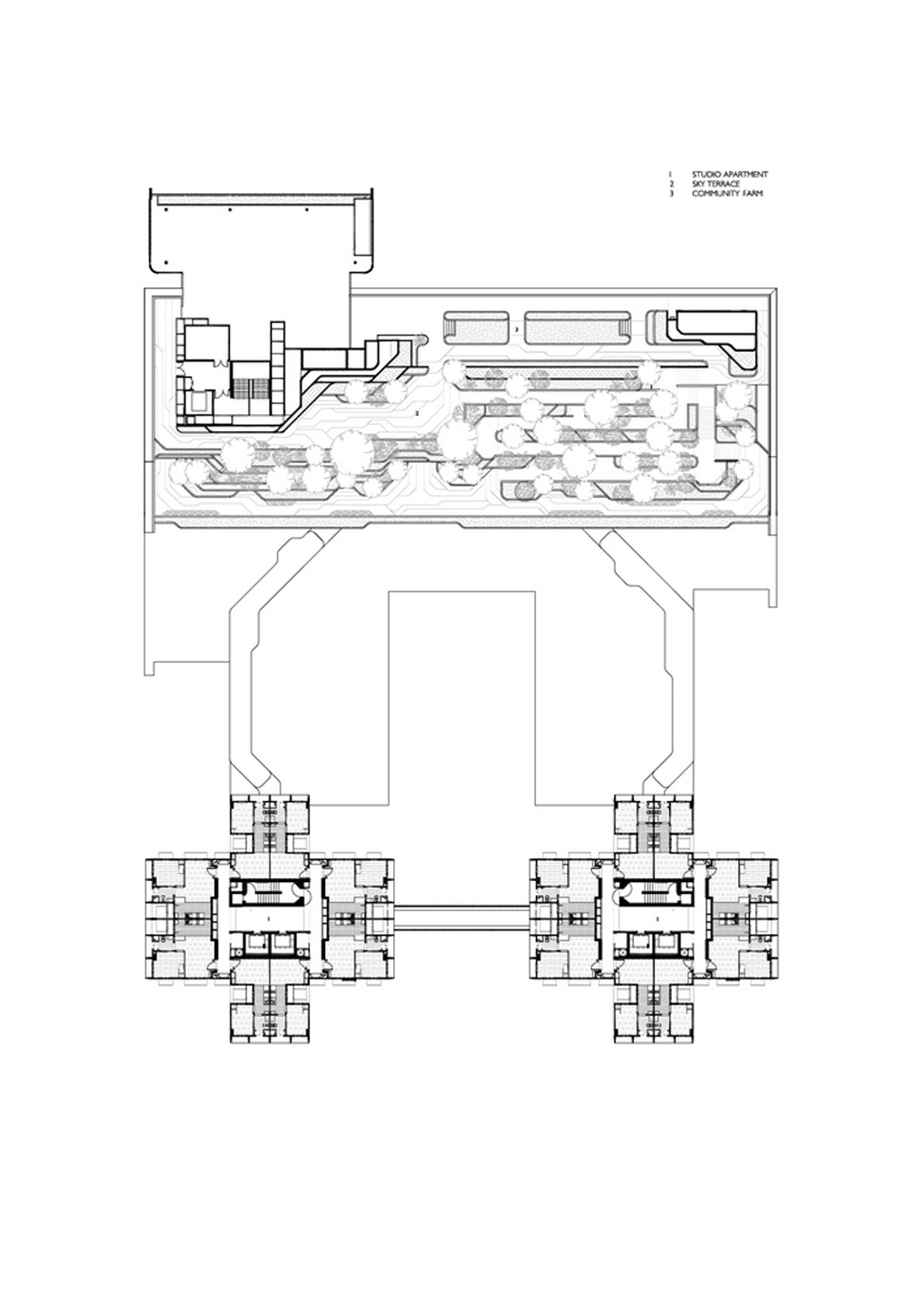
▽ 高层的社区农场
 
 
 
 
 
 
 
 
 
       社区公园是一个更密集,更高的村庄绿地,居民可以聚集在一起锻炼,聊天或这更倾向于社区农场。儿童保育和老龄中心(包括高级护理)等辅助项目并排放置,将年轻人和老年人聚集在一起,生活,吃饭和玩耍。
       共有104间公寓,分布在两个11层高的单身人士或夫妇中。共用入口处的“好友长椅”鼓励老年人走出家门,与邻居互动。这些装置采用通用设计原则,专为自然交叉通风和最佳日光而设计。
 
▽ 被绿植环绕的社区
 
 
 
       在Kampung Admiralty找到一个医疗中心意味着居民不需要一直到医院咨询专科医生,也不需要进行简单的日间手术。为了促进健康和康复,该中心的咨询和等候区在自然光下从周边窗户和中央庭院进行清洗。对下面的社区广场和上面的社区公园的看法也有助于老年人感受到与大自然和其他人的联系。
 
▽ 公共空间就像是社区客厅一样
 
 
 
 
 
 
       社区广场是一个完全公共,多样的和步行的地面,其设计意义为社区客厅。在这个温馨且包容的空间内,公众可以参加有组织的活动,参加庆祝活动,购物或在第二层的小贩中心用餐。凉爽的热带广场被上面的医疗中心遮蔽和遮蔽,无论风雨如何,都可以继续活动。
 
▽ 平面图
 
 
 
 
 
▽ 立面图
 
 
 
▽ 景观平面图
 
 
 
 
        编后语:人口老龄化是部分国家深受困扰的问题,如何处理好老年人与社会,老年人与年轻人是关系是社会中人们需要思考的问题。我国虽然人口老龄化不严重,但是我国的老年人几乎集中在农村、乡村,这个案例给我们的启发是深远的。如何处理规划老年人与社区的关系,让老年人在享受乡野风景的同时能享受到良好的医疗设施,“垂直城市”是一个极好的设计理念,设计师设计以及利用了周边的景观环境,添置的花园、植被景观不仅能让居民欣赏大好风景,还能让他们多了一个休憩的好去处。WAQI关于生态建筑、生态设计、景观规划(点击可跳转阅读)也是深入考察了当地的情况,通过建筑与自然的对话,让建筑融入自然,达到环保、雨水循环利用、降低改造成本。自然、生态和有温度是人性化建筑的三元素,也是WAQI的建筑设计观,为此我们在路上。
 
 
 
来源网站:www.archdaily.com
翻译整理:WAQI
 
 
 


设计终究是一个不断学习的过程,WAQI作为一家学习型设计事务所,通常在设计的过程中,会分析甚至于拆建一些案例,
不定期分享一些心得。请扫描并关注公众号,更多精彩,与您共享。。。