首页
Home
WAQI做些什么
Services
WAQI的作品
Projects
WAQI是谁
About us
WAQI学院
College
联系WAQI
Contact us
logo
倾斜的东部创意服务中心|生态建筑设计
发布于:2018-11-14 09:50 浏览:
这是位于市中心边缘的一个戏剧性景观。一个面向古老城堡的土墩,中世纪的国家保护区遗址,是该镇的主要旅游景点。建筑的想法是为Rezekne城堡丘旁边的地方——Rezekne的儿童和青年创造一个富有创新、创造性的环境,这将刺激年轻的毕业生回归在他们的学习之后在Rezekne镇生活和工作。
项目信息
设计公司:SAALS架构
项目类型:生态建筑、生态设计、生态景观
位置:Rēzekne,LV-4601,拉脱维亚
▽ 建筑外观图
▽ 俯瞰图
建筑的空间体积主要还是围绕当地风景——Rezekne的城堡丘。它体现在周围的地形中,可以看到城堡丘和教堂的开阔景色。
▽ 绿色屋顶与建筑设计
卡在绿色建筑中的“铅笔”是现有苏维埃时期建筑的前身。建筑深入地下,五个立面,几何三角形的绿色屋顶,成为结构的主要特征。
▽ 混凝土建筑
该建筑是一个外露的整体混凝土结构,外墙涂有灰泥。尽管如此,大多数房间都是矩形的:暴露的混凝土和可变窗户几何形状的戏剧性天花板创造了惊人的多样性和独特的空间。
▽ 设计细节
屋顶的形状不仅为孩子们创造了安全感和保护感,而且通过各种开口进入所有房间,大厅和走廊,可以提供充足而多样的自然光流,从外面看,它在黑暗中神秘地闪耀着。底楼设有温馨的内部庭院,为客人提供远离地面的活动室。建筑物周围的混凝土和绿色表面的景观延续了与屋顶相同的几何原理,在每个细节中都具有令人惊讶的雕塑感和艺术感。
▽ 室内设计
新的结构成为现有戏剧景观的一个组成部分,甚至是当地传说和童话故事的一部分,扩展了流行的想象力。它是当代设计的典范,来自身体和情感环境,来自当地精神和传统原型,为孩子们提供温暖友好的新环境。尽管面积为6000平方米,
但这座建筑令人感到人性化,像自己家一般,而且与镇中心的小型历史建筑相容
。
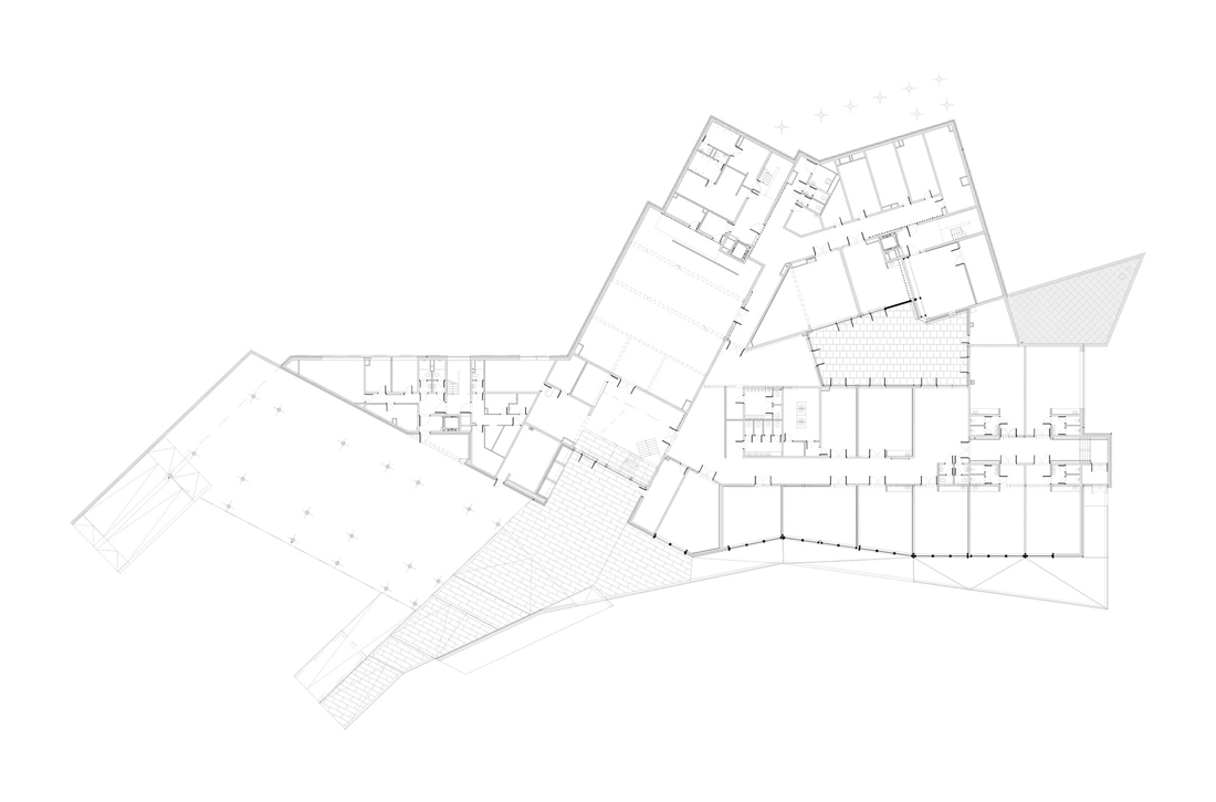
▽ 平面图
▽ 立面图
编后语:在连绵起伏的古堡草坪附近,有着几栋斜着的建筑以及波浪般的绿色建筑屋顶,新与旧的碰撞竟然十分和谐。与乡村规划、公共广场设计相似,建筑的本身是为了给人带来愉悦感居家感,这个案例便很好的诠释这一点。一个富有创新、创造性的环境,是能够给人们带来无限创意的。这对于乡镇青年人的流失,乡村老龄化有一定的组织性作用。WAQI对于
生态建筑、生态设计、景观规划的三亚度假酒店(点击可跳转阅读)
也是有我们自己考虑和坚持的地方,我们坚持让建筑融入自然,达到环保、雨水循环利用、降低改造成本。自然、生态和有温度是人性化建筑的三元素,也是WAQI的建筑设计观,为此我们在路上。
来源网站:www.archdaily.com
翻译整理:WAQI
设计终究是一个不断学习的过程,WAQI作为一家学习型设计事务所,通常在设计的过程中,会分析甚至于拆建一些案例,
不定期分享一些心得。请扫描并关注公众号,更多精彩,与您共享。。。
马上分享WAQI:
微信
QQ空间
新浪微博
上一个
下一个