首页
Home
WAQI做些什么
Services
WAQI的作品
Projects
WAQI是谁
About us
WAQI学院
College
联系WAQI
Contact us
logo
给你一个巴比伦空中花园|生态精品酒店设计
发布于:2018-11-14 17:39 浏览:
巴比伦花园位于岘港最受欢迎的海滩附近拥挤的海滨酒店区。由于其现代化的绿色外观作为空中花园,与附近的大都是平凡的建筑形成鲜明的对比。它提供宁静的自然体验,远离喧嚣。设计师的设计挑战是建造一些特别的,接近自然的但不受高度限制的可见和美丽的东西。
项目信息
设计公司:ALPES GDB
项目类型:生态建筑、
精品酒店设计
、生态景观
位置:PhướcMỹ,SơnTrà,ĐàNẵng,越南
▽ 建筑外观图
巴比伦花园位于Ha Bong胡同附近,最初的位置是不利的,因为这片土地被三面环绕着旧的住宅低层建筑。设计师的解决方案是建造高层,用反光玻璃,阳台和植物进行组合。这是一个绿洲,被绿色植物围绕着,让客人可以体验清新的空气,在炎热的夏季,回到这家自然的酒店,也可以怡然自得。
▽ 空中花园景观图
一楼和夹层楼的二楼餐厅种植悬挂到地板植物。这种专门的垂直种植植物用于悬空平台会营造美丽的效果。前方区域狭窄,但内部的景观和感觉通过垂直种植,锦鲤湖、非常高的天花板、后墙的自然通风都得到了扩展,我们在无意识地感受到了大自然。
这不仅要求我们的项目满足光线和通风要求,此外还要在城市空间中创造具有吸引力的地标性高层建筑。
▽ 露台的设计
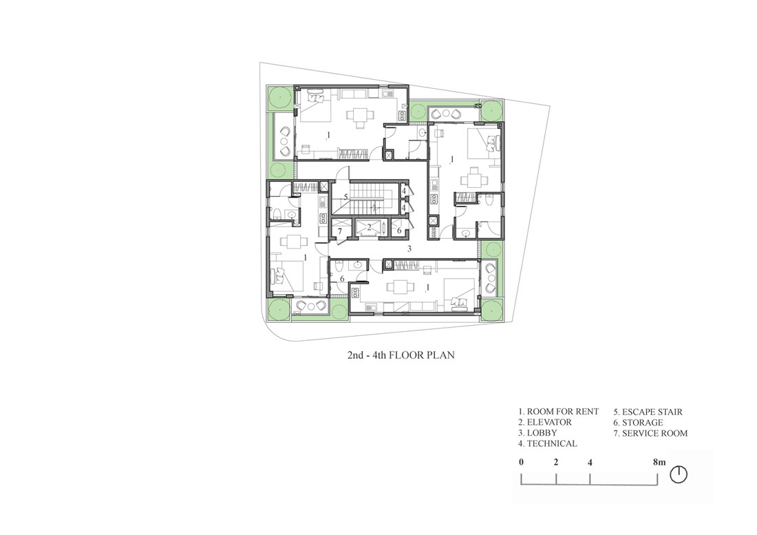
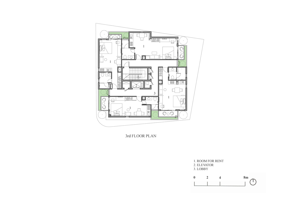
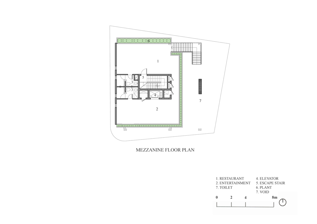
这座6层高的酒店拥有13间布置精美的客房,每间客房均高效而高品质。酒店设有一间餐厅,咖啡厅,周围环绕着植物,台球和健身房。
▽ 设计细节
▽ 房间设计
每间卧室都与一个休闲阳台相连,阳台上摆放着各种各样的树木和栏杆,而且每个楼层的摆放位置都不一样。设计师希望建造自然而强大的建筑,同时注重用户的情感。将树木、植物与天然石材的装饰相结合,有助于引起建筑物与自然环境关系的积极看法。巴比伦花园是一个现代化的悬空花园,将人与自然连接起来,距离旅游区的喧嚣仅几步之遥。
▽ 平面图
▽ 立面图
编后语:最初的空中花园的原型是巴比伦的空中花园,使用立体园林的手法,在层层叠叠的露台种上各式各样的植物,从而营造出来的像是悬浮在空中一样。因此,现在的“屋顶绿化”、“垂直城市”都是城市建设过程中充分利用空间以形成花园建筑的一道亮丽的风景线。空中花园的双重意义在于不仅能给住户提供近距离的自然享受,更重要的是能降低建筑的耗能。自然、生态和有温度是人性化建筑的三元素,也是WAQI的建筑设计观。WAQI关于
三亚酒店的生态设计、景观规划(点击可跳转阅读)
也是运用了立体园林的设计方法,让建筑融入自然,达到环保、雨水循环利用、降低改造成本。
来源网站:www.archdaily.com
翻译整理:WAQI
设计终究是一个不断学习的过程,WAQI作为一家学习型设计事务所,通常在设计的过程中,会分析甚至于拆建一些案例,
不定期分享一些心得。请扫描并关注公众号,更多精彩,与您共享。。。
马上分享WAQI:
微信
QQ空间
新浪微博
上一个
下一个