首页
Home
WAQI做些什么
Services
WAQI的作品
Projects
WAQI是谁
About us
WAQI学院
College
联系WAQI
Contact us
logo
旧城区的“模型”酒店|旧楼改造
发布于:2018-11-15 11:07 浏览:
在瓦尔帕莱索最繁华的旅游山丘之一的中心,设计师翻新和扩建旧住宅楼,以便改造成酒店。在两层楼的建筑中增加了一个新楼层,略微悬垂在周围的建筑物上,并在街道上产生了新的建筑体积对比。
项目信息
设计公司:Fantuzzi + Rodillo Arquitectos
项目类型:旧楼改造、建筑改造设计、
精品酒店设计
位置:CºAlegre,Valparaíso,智利
▽ 建筑外观图
▽ 改造前与改造后
入口处的南立面由于其原建筑的朝向以及山上所有建筑物的样貌,其外观和布置而得以保留。保留原始窗户的构成和比例,提供了和谐的效果。
然而,鉴于其建筑原来破旧的状态,北面立面需要全面重建。一个新的金属结构允许创建宽敞的窗户,阳台可以打开。建筑物到瓦尔帕莱索海湾及其山丘,将享有无与伦比的全景。
▽ 室内设计
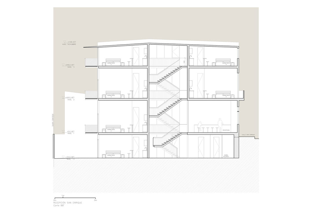
在建筑物内部,由于楼梯和内部庭院产生的空隙体积,空间被组织利用起来。这个空间连接酒店的所有不同位置,包括垂直和水平方向,将房间留在楼梯的两侧,并将它们连接到露台上的走道。
金属部分和木质饰面的使用使得该设置的亮度扩大到了中央空间。此外,庭院将改善外立面景色单调不足,提高了整个建筑的质量。
▽ 设计细节
对于结构,周边墙壁是保护的,所以设计师用橡木条隔断内部,加固了受损的橡木条。俄勒冈松木的原始梁结构也被保留,用相似的碎片代替破碎的梁。
除此之外,所有地板都在使用扩展中的类似地板进行维护。新地板的结构采用金属担架和钢板和镀锌钢板制成。
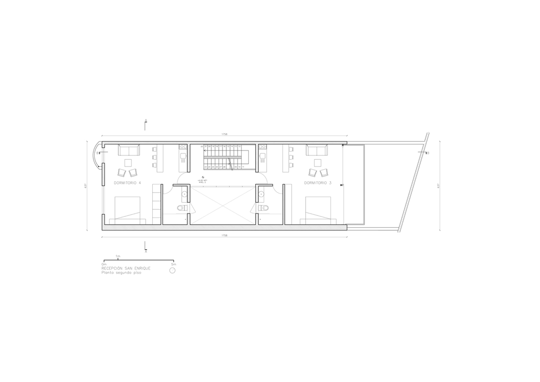
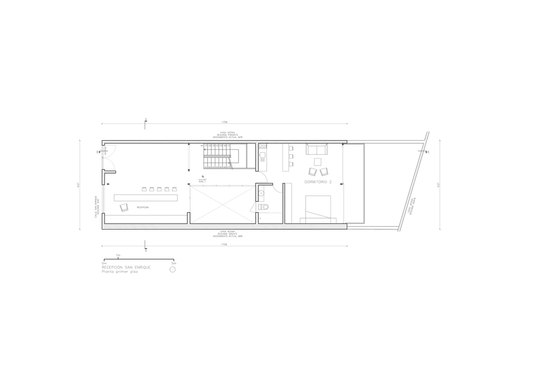
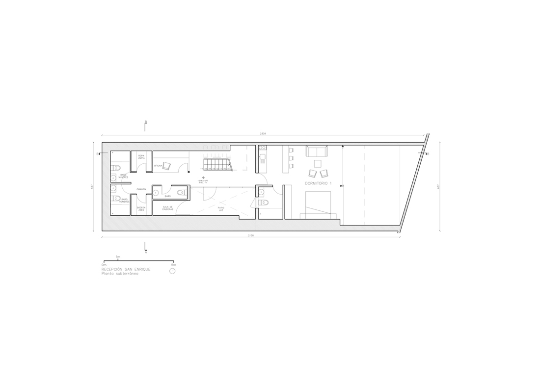
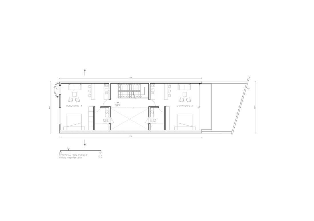
▽ 平面图
▽ 立面图
编后语:旧楼改造,尤其是那种与隔壁楼房相近的那种旧楼——握手楼的改造,就要兼顾很多方面,改造起来稍显不易。因此,在维持旧楼建筑原型不变的情况下,为旧楼加造了一个木钢结构的阳台,与周边的建筑有着不一样的对比,新旧结合碰撞出不一样的火花。WAQI
旧楼改造规划(点击可跳转阅读)
有着异曲同工的看法,让建筑保持原本的特点,只需稍作改变,为其添加一些绿色屋顶,达到环保、雨水循环利用、降低改造成本。自然、生态和有温度是人性化建筑的三元素,也是WAQI的建筑设计观,为此我们在路上。
来源网站:www.archdaily.com
翻译整理:WAQI
设计终究是一个不断学习的过程,WAQI作为一家学习型设计事务所,通常在设计的过程中,会分析甚至于拆建一些案例,
不定期分享一些心得。请扫描并关注公众号,更多精彩,与您共享。。。
马上分享WAQI:
微信
QQ空间
新浪微博
上一个
下一个