在广州花都
有一个年轻现代的路口(商业大道和凤凰北路交叉口)

这个路口有一座上了年纪的楼房(宝马楼)

有一群有志之士(蓝豹团队)
欲引入商业、办公、住宅、会议、会展、孵化器等业态,为这栋楼房注入年轻活力
有一个设计团队(俺们WAQI)
为了这个目标制作方案殚精竭虑
简而言之,俺们要对宝马楼内部空间及外立面进行改造
如何改呢?
且看我细细道来:
区位
蓝豹One·AI智慧谷基址宝马楼位于广东省广州市花都区南侧,毗邻花都湖公园和马鞍山公园,场地处在商业大道(s118)与凤凰北路交叉路口,是大花都最主要的两条主干道,So,地段简直不能再好喇

设计理念
居于自然:
人的居住不该与自然隔离,将原本直走廊做有趣的变化,将光、风、植被引入居所,体会被自然环绕的入住舒适感
现状内部:内部楼廊直且窄,光线差,唯一的光源是建筑两端的楼梯窗户

内部环境改造思路示意:走廊作曲折变化,打开墙体,加自然元素引入室内

生态环保:
建筑内外都使用最基础的建筑材料,体现其本身的质感,不做过多装饰,最少化的使用建材
现状建筑模型:

材料示意:

空调机箱位于植被上方,利用空调水直接浇灌,节约人力且生态环保
室外元素位置示意:

钢架结构模拟:

种植池栽植的爬藤植物会随着钢架及丝网攀爬,最终包围整栋大楼的将是一片生机盎然,使用大楼的人们将会在绿色自然中工作生活,好不惬意
立面改造思路示意:

立面草图示意:

人性化设计:
室内家具采用自由组合方式,高效简洁且能满足不同住户各自需求
组合式衣柜手稿示意:

走廊广告带及其他设计都是以人视点为依据,符合人的使用需求
入户门及走廊广告带设计手稿示意:

巧用空间
利用钢架形成的空间做成阳台,延伸室内空间;室内则选取部分房间做成复式,打破常规的平层居住模式,将横向空间转化为纵向空间,体会独特的空间感受
复式说明:


方案展示
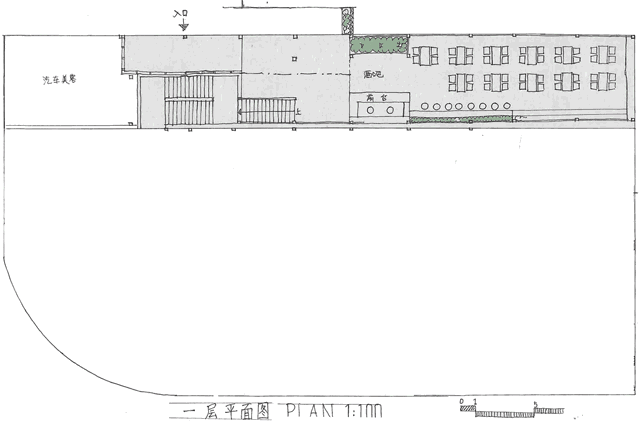
平面图
1-3层平面:

1-2层做法意向:

3层做法意向:

4-8层平面:

4-8层做法意向:

立面图
正立面图:

后立面图:

侧立面图:

效果图





设计效果还是视频来的直接:

浏览地址: