项目背景:大凉山是中国3个彝族自治州和20多个彝族自治县中保存彝族传统文化最完整的地方。随着全球化和国家现代化进程的加快以及外来文化的迅猛传播,彝族物质文化遗产和非物质文化遗产都在快速消失,特别是政府开展彝家新寨建设和精准扶贫以来,彝族乡村正在逐步被改造。因此,保护彝族传统村落的形势非常严峻。
沙马普尔现状
>现状交通
场地位于大凉山龙沟乡沙马普尔,距日哈乡1小时车程,距昭觉县2小时车程,距西昌青山机场、西昌火车站4-6小时车程。

场地内有东西两个地块,地形为坡地,共14052.5㎡,场地三面悬崖东南侧悬崖对面便是著名的来洛大平台。视野开阔,风景壮观而优美。
>村落现状

当地民居室内光线昏暗,生活用品杂乱放置,土豆等食物随处堆放,二楼空间没有被完全利用;室内有彝族传统火塘;当地彝民床榻等功能区放置有特定的生活习惯;室内没有绝对的分隔空间
>民居室内现状

整体院落方形布局;人畜共用一个院子,园内功能混杂,卫生有待提高;当地居民有种竹子,堆柴,在墙上木架晾晒食物等生活习惯
>民居室外现状

整体规划
整个项目,有两个地块,面积共14052㎡,共需安置23户民居,其中一户是已建成的示范户,新规划的有14栋100㎡民居、3栋75㎡民居、5栋65㎡民居
>总平面图:

>总交通规划

>总体鸟瞰效果图


项目的西侧地块,红线面积6371㎡,整体地形为坡地,西北高东南低,共有9户新建民居,其中7户100㎡、1户75㎡、1户65㎡
>西地块规划

基于当地村民生活习惯,每户民居都有自家菜地、竹、果园、柴垛。为了在生活上人畜分开,人和牲畜都各自独立的入口和生活区
>西地块院落功能分区图

为方便出行,此地块规划有人行及车行路,方便每户居民都能开车入户,由于当地家家养牲畜,有放牧风俗,遂设置牲畜通道,村落内人畜通道分离,利于保持村落整体卫生,居住功能区和公共活动区采取分离设置,不影响居民日常生活,公共活动区有下沉广场、瞭望亭、回车场打谷场等,满足村子的功能需求
>西地块交通、功能分区及排水图

>西侧地块效果图




项目东侧地块,红线面积6371㎡,整体地形为坡地,整体地形东高西低,共有9户新建民居,其中共有8户100㎡,2户75㎡,4户65㎡
>东地块规划

基于当地村民生活习惯,每户民居都有自家菜地、竹、果园、柴垛。为了在生活上人畜分开,人和牲畜都各自独立的入口和生活区
>东地块院落功能分区图

>东地块交通、功能分区及排水图

>东侧地块效果图



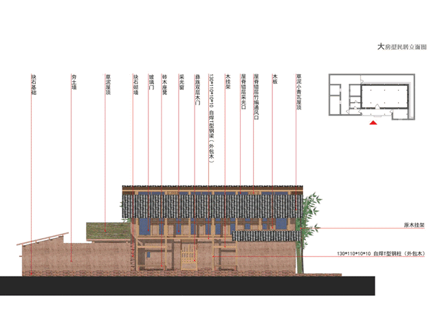
民居设计
三种房型供村民根据自身使用需求挑选。大房型供四人及四人以上家庭使用,约102 ㎡;中房型供三人家庭使用,约80 ㎡;小房型供1-2人家庭使用,约70 ㎡。我们为每种房型提供最佳样板,村民可以根据实际需求进行内部分隔,也可以选择不分割。
>民居平面图

>民居立面图



吃住、储物、养殖为当地居民生活的核心,样板布局方案最大限度地保留了这些功能,并将其规整优化。原先以火塘为核心的生活区既要提供吃住功能,又要兼顾会客与平时休闲,免不了走向脏与乱。新方案大厅作为起居和待客空间,上空可由居民自行选择加木构装饰和挂熏肉。将一部分属于厨房的功能从火塘分离形成厨房,大厅火塘提供煮食煮菜和取暖的功能。在大厅周围灵堂方向沿火塘布置起居座椅和客榻,其余地方布置床位、卧室和储物收纳空间。
>民居室内布局示意


>民居结构示意

二层有条件的可以加建客房和储物空间,条件欠缺的可以作为阁楼储物,正立面一侧作为采光区。将活动空间、储物空间和就寝空间分开,提升室内私密感和整洁度。

>民居梁柱用材及连接示意

>大房型室外效果图

>大房型室内效果图

>中房型室外效果图

>中房型室内效果图

>小房型室外效果图

>小房型室内效果图

民居建筑采用生态建筑理念,墙体用当地传统夯土墙,所用材料就近选择
>用材示意

>更多详细内容,请看视频解说

浏览地址: