在酒店来一次穿越时间的旅行|精品酒店设计
发布于:2020-06-10 09:44  浏览:

酒店坐落在城乡之间,其设计灵感来自于永恒、优雅的新艺术建筑风格。在这样一个时代里,它简化了城市建筑,却并没有完全放弃奢华和舒适——大气、经典、简约,又不过于暗淡。
 
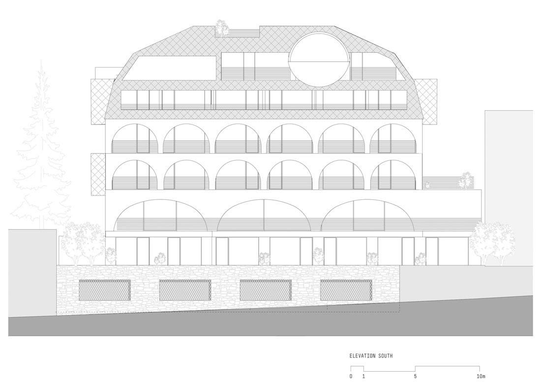
设计师认为,将当地流行元素融入建筑至关重要,比如立面上的拱门和倾斜的屋顶,它们都可以追溯回Oberbozen村庄悠久的历史传统。同时,菱形也作为一种装饰元素,用于里特铁路沿线的许多建筑之中,连接不同的夏季度假目的地。其整体的设计思路显而易见:大量的细节共同形成贯穿整个项目的主线。更有趣的是酒店的空间组织,它巧妙地适应了地形环境。
 
 
 
 
项目信息
设计公司:noa *
项目类型:建筑设计、度假酒店设计、景观规划设计
位置:意大利
 
 
 
 
 
 
 
▽ 建筑外观

 
 
 
 
Ritten新艺术建筑的永恒性以一种抽象的方式体现在建筑室内。比如,一种明显的、统一中又有变化的元素形成一个重复的细节,遍布整个建筑。拱形的主题元素也可以在室内找到延续,例如房间里,底部圆形的镜子,休息室的壁炉,拱形元素都能在其自身的主题轴线上突显,甚至是spa露台上休息室的靠背。家具大多是独立式的,随意放置,优雅和质朴的室内装潢增强了其氛围。所有的事物中,都是独一无二的、从跳蚤市场或从以前的酒店发现的小珍宝。悬挂在天花板上的金灯雕塑也遍布了整栋建筑。
 
▽ 室内设计

 
 
 
 
 
 
 
 
 
 
▽ 客房设计

 
 
 
 
 
客房位于公共空间的上方的三个楼层中——套房位于建筑的各个边缘,它们在海湾中清晰可见,其美丽的立体外观为建筑立面增添了不少风景。底层的建筑立面的平面双拱,通过在尺寸上的巨大改变后,转变成了上方楼层的简洁的单轴拱形立面,这使得外部空间变得更加明显和有形,非常适合夏季度假。尤其在拱廊后面的区域,内部空间和外部空间融合在一起——连廊起到了连接元素的作用,与无框窗户的房间接缝一直延伸到女儿墙的位置。
 
▽ 泳池设计

 
 
 
 
 
 
当然,最大的亮点是有着豪华悬臂游泳池的水疗区,人们从远处就能看到。水疗区设有宽阔的休息区,静养区,以及一些位于凸窗顶部或切入屋顶的私密的露台,人们可以在新鲜的空气中放松休憩。另一个独特的引人注目的地方,是在建筑的南侧切入倾斜屋顶的巨大圆柱体,它在正面的另一侧突出了一个倒置的拱门,形成一个特殊的游泳池。
 
游泳池封闭的外壳上覆盖着和立体海湾窗户一样的古铜色铝板。它在深棕色的斜屋顶上形成了一种休闲的氛围,同时也产生了一种奇妙的倒影效果。在内部,有几个楼梯通向圆柱体的中心。自动推拉门打开,下潜入水中,伴随着弧形的外立面,一个人被引入天边的无边际泳池。
 
▽ 细节设计

 
 
 

▽ 景观设计

 
 
 
 
▽ 平面图

 
▽ 立面图

 
 
 
 
 
 
 
 
 
 
 
 
编后语:项目设计主要以木材为材料,让人看起来觉得高贵、质朴又温馨。在顶楼的泳池设计上,就像是游至开阔的天空下,在欣赏远处景色的同时触发了漂浮的感觉。更多关于度假酒店设计、精品酒店设计、建筑设计的案例,请点击下面的拓展阅读进行跳转阅读。
 
 
 
来源网站:www.archdaily.com
翻译整理:WAQI








拓展阅读

故事未了的江湖客栈|绿境景色花园客栈设计
青旅社区---阳朔东院弥香客栈
三亚洲际度假酒店[酒店设计]
景逸庭院式精品酒店改造




设计终究是一个不断学习的过程,WAQI作为一家学习型设计事务所,通常在设计的过程中,会分析甚至于拆建一些案例,
不定期分享一些心得。请扫描并关注公众号,更多精彩,与您共享。。。