首页
Home
WAQI做些什么
Services
WAQI的作品
Projects
WAQI是谁
About us
WAQI学院
College
联系WAQI
Contact us
logo
废弃建筑的浪漫花园|旧房改造
发布于:2020-06-08 11:24 浏览:
Can Bordoy -Grand House&Garden-是一家24间客房的小型酒店,位于马略卡岛帕尔马的历史中心,设有宏伟的花园、游泳池、水疗中心和全景露台。这是对2500平方米废弃建筑的全面翻新,在过去500多年的历史中一直对其进行大量干预。该酒店最独特的元素之一就是花园,这不仅是因为其规模,还因为其现有植被的丰富和古老。该项目最重要的干预措施之一是向城市敞开花园的大门,直到现在为止,绝大多数人都不知道。花园的大门可以从入口庭院和街道上看到。
设计师旨在唤起比酒店更多的参观房屋的经历。因此,客户不是在酒店接待处而是在房子的门厅见面;找到的餐厅而不是餐厅,而是找到了居民用餐室,这些房间和客厅就像您在老房子中找到的那样。该项目精心保留了建筑物中浪漫的氛围,并与不同时期的干预和元素进行了有意识的对比。这是对现有百年建筑杂交的尊重,它保留了过去的痕迹,并避免了房屋从未拥有过的辉煌过去的错误恢复。
项目信息
设计公司:OHLAB
项目类型:建筑设计、旧楼改造、景观规划设计
位置:西班牙
▽ 室内设计
在整个建筑中设计并开发了一系列建筑策略,作为与现有建筑对话的戏剧性和当代特色的干预措施的集合。在底楼,一条绿色的植被走廊侵入餐厅,将花园与庭院和街道连接起来。
在主楼梯中,天窗被水淹没,变成了一个带有透明底部的小水池,在水中形成了光的活动,使楼梯上充满了反射。
▽ 景观设计
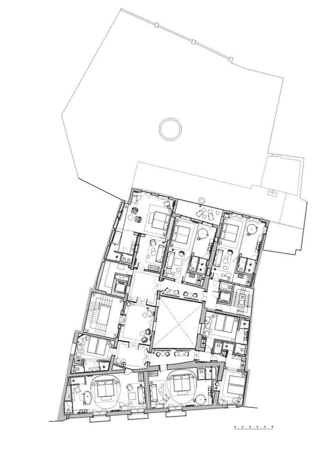
▽ 平面图
▽ 立面图
编后语:花园是旧建筑的一部分,同时也是项目设计的亮点。设计师保留原建筑的花园,通过规划设计,将花园与建筑连在一起,让花园里的植物开进建筑里面,房间里面,这种保留旧建筑的历史与新式花园的浪漫,将旧建筑改造的花园酒店变得更加贴近人心。更多关于旧楼改造、旧房改造、建筑设计的案例,请点击下面的拓展阅读进行跳转阅读。
来源网站:www.archdaily.com
翻译整理:WAQI
延伸阅读
中山产业园改造
景逸庭院式精品酒店改造
昆明教场北路旧房改造项目
WAQI建筑改造案例之蓝豹One·AI智慧谷改造项目
故事未了的江湖客栈|绿境景色花园客栈设计
设计终究是一个不断学习的过程,WAQI作为一家学习型设计事务所,通常在设计的过程中,会分析甚至于拆建一些案例,
不定期分享一些心得。请扫描并关注公众号,更多精彩,与您共享。。。
马上分享WAQI:
微信
QQ空间
新浪微博
上一个
下一个