首页
Home
WAQI做些什么
Services
WAQI的作品
Projects
WAQI是谁
About us
WAQI学院
College
联系WAQI
Contact us
logo
环保的办公住宅两用建筑改造|旧房改造
发布于:2020-06-17 11:06 浏览:
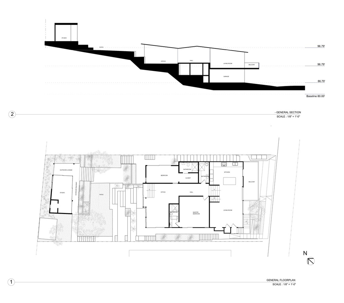
Ramar住宅位于圣莫尼卡的日落公园,距离太平洋约1英里。它坐落在一个面向西南的山丘上。该项目的范围是对1958年建成的2,150平方英尺现有住宅进行内部和外部整体改建。除改建外,还需要其中一位时装设计师的业主拥有工作室空间:能够设计和执行她的工作,并有一个休息区。为了利用景观,光线和海风,设计师决定在地段的后部建造一个独立的结构。
项目信息
设计公司:Saez Pedraja
项目类型:建筑设计、旧楼改造、景观规划设计
位置:美国
▽ 设计构想
现有房屋改建的范围包括新主浴室的设计,完整的厨房改建,房屋内部的新饰面,新的外墙和阳台粉刷处理以及新的开窗。对于内部,选择了中性的黑色,灰色和白色色调。壁炉的墙壁和楼梯上覆盖着冷轧钢。关于外部结构工作,是为了扩大居住、用餐区域的现有空间,以便更好地观看海洋。
▽ 建筑外观
▽ 室内设计
▽ 景观设计
▽ 平面图
▽ 立面图
编后语:设计师在考量现有的房屋的同时,也把原有的周边环境的景观纳入到旧房改造范围,让建筑与景观结合在一起,环保的建筑材料,让旧建筑本身更多了一些尊重历史开拓未来的感觉。更多关于旧楼改造、旧房改造、建筑设计的案例,请点击下面的拓展阅读进行跳转阅读。
来源网站:www.archdaily.com
翻译整理:WAQI
延伸阅读
中山产业园改造
景逸庭院式精品酒店改造
昆明教场北路旧房改造项目
WAQI建筑改造案例之蓝豹One·AI智慧谷改造项目
故事未了的江湖客栈|绿境景色花园客栈设计
设计终究是一个不断学习的过程,WAQI作为一家学习型设计事务所,通常在设计的过程中,会分析甚至于拆建一些案例,
不定期分享一些心得。请扫描并关注公众号,更多精彩,与您共享。。。
马上分享WAQI:
微信
QQ空间
新浪微博
上一个
下一个