青旅里通透的庭院|青年旅舍设计
发布于:2020-06-22 16:31  浏览:

Pa Prank旅舍位于曼谷最有名的历史城区之一Phraeng Saphasat,周围分布着数个旅游景点。该项目由一栋旧建筑翻新而来,从两间店屋变成了一家旅舍和一间咖啡店。
 
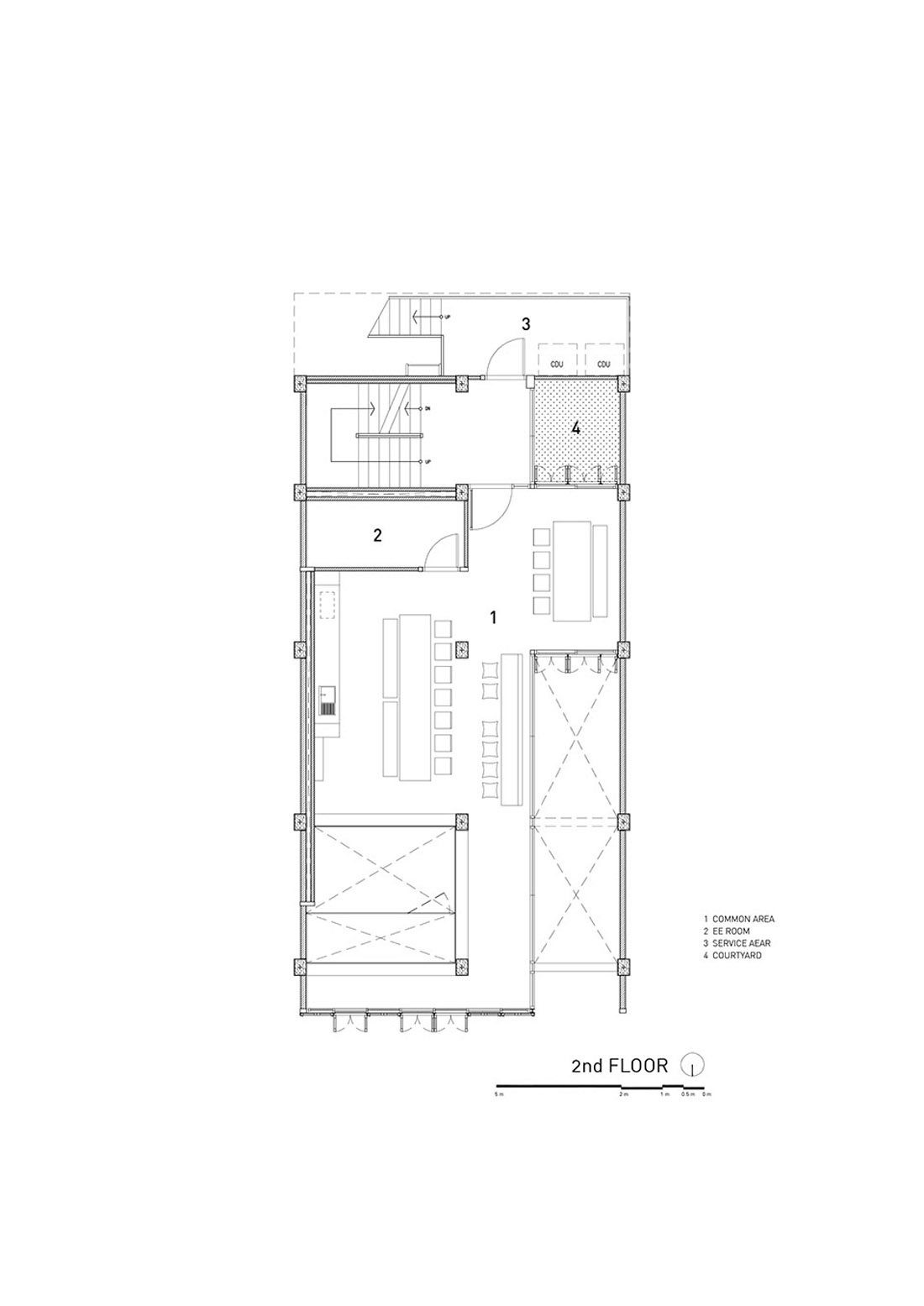
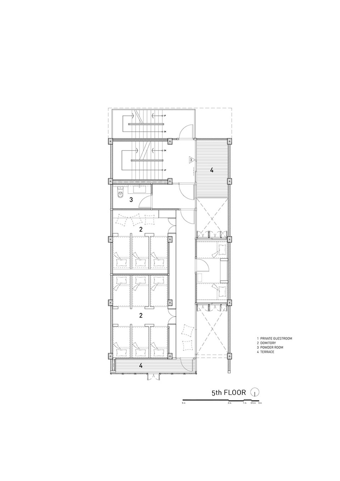
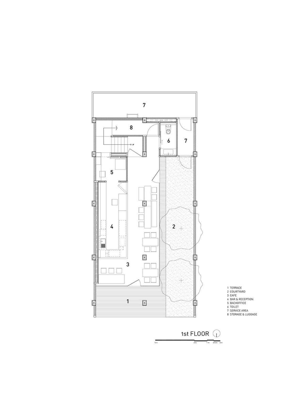
旅舍的功能布局旨在实现最高的便捷度。夹层被用作公共区域,可以从一层的咖啡馆直接进入,同时与活动区和楼上的客房相连。公共区域上方的楼层设有浴室、更衣室和洗衣房,为整个3层和4层留出了充足的客房空间。瑜伽和拳击教室位于顶层,在提供室内外活动场地的同时也带来了优美的历史景观。
 
 
 
 
 
 
 
 
 
项目信息
设计公司:IDIN Architects
项目类型:建筑设计、旧楼改造、度假酒店设计
位置:泰国
 
 
 
 
▽ 设计构想

 
设计概念是旨在解决店面房屋惯有的采光问题:狭长的空间两侧是封闭的墙,只有少量的光线能够从正面进入。为了引入更多光线,设计师将每个楼层的外层空间向内缩进2米,以形成通风的开放空间,并且在首层设置了庭院。
 
几间特殊的私人客房“漂浮”在这一“空置”的体量内,从而获得了两个方向的光线和通风。这些房间的屋顶还可以作为楼上一个房间的阳台。既有结构中带有裂痕的砖墙被有意保留下来,提示人们找回关于旧建筑的记忆。
 
设计师还希望通过设计传达现代与历史环境之间的碰撞,因而采用了巨大的幕墙作为建筑深处的功能区域的围护结构,使得到妥善保护的墙壁得以显露出来。此外,客人还可以从富有现代感的窗户玻璃上清楚地看到旧墙的倒影,而这堵墙同样也是属于旅馆内客人的一道风景。
 
临街立面的设计参考了泰国传统店屋橱窗的设计,但以不同的方式呈现出来。钢材等现代材料与黑色元素是建筑的主要特征,它使得建筑“消失”在其周围环境当中。与之形成对比的是,室内空间仍然保持了传统装饰性窗户的特征,白色的使用增加了舒适的感觉。
 
▽ 建筑外观

 
 
 
 
 
▽ 室内设计

 
 
 
 
 
 
 
 
 
 

▽ 房间设计

 
 
 
 
 
 
 
 

▽ 景观设计


 
 
▽ 细节设计


 
 
 
 
 
 
 
 
▽ 平面图

 
 
 
 
 
 
 
 
▽ 立面图

 
 
 
 
 
 
 
 
 
 
 
 
 
 
 
 
 
 
 
 
编后语:设计师将裸露的旧建筑墙壁转头于玻璃结合起来,有一种现代与旧建筑工艺碰撞的美感,让整个青旅充满着一种文化交融的气氛,这也符合青旅的多种文化元素碰撞的主题。更多关于旧楼改造、度假酒店设计、建筑设计的案例,请点击下面的拓展阅读进行跳转阅读。
 
 
 
 
 
来源网站:www.goood.cn
翻译整理:WAQI






拓展阅读

故事未了的江湖客栈|绿境景色花园客栈设计
青旅社区---阳朔东院弥香客栈
三亚洲际度假酒店[酒店设计]
景逸庭院式精品酒店改造





设计终究是一个不断学习的过程,WAQI作为一家学习型设计事务所,通常在设计的过程中,会分析甚至于拆建一些案例,
不定期分享一些心得。请扫描并关注公众号,更多精彩,与您共享。。。