首页
Home
WAQI做些什么
Services
WAQI的作品
Projects
WAQI是谁
About us
WAQI学院
College
联系WAQI
Contact us
logo
阳光雨露的诗意住宅|旧房改造
发布于:2020-06-24 16:08 浏览:
阳光雨露住宅由一幢被列为二级保护建筑的乔治王朝时期联排住宅改造而来。设计师通过放大建筑结构的内部特征,重塑了建筑的后院。改造后的屋子既是工作室,也是一套温馨的居所。
延伸部分被打造成为景观,在阳光和雨水的作用下,这里孕育了一系列精心挑选出的植物。绿色屋顶、花园房间、倒影池和下沉天井都以不同的方式赞美着自然。在这里,人们可以静静感受天气、季节,以及一天之中的时间变化。
项目信息
设计公司:Tonkin Liu
项目类型:建筑设计、旧楼改造、景观规划设计
位置:英国
▽ 改造前——住宅后面
▽ 住宅正面
▽ 设计构想
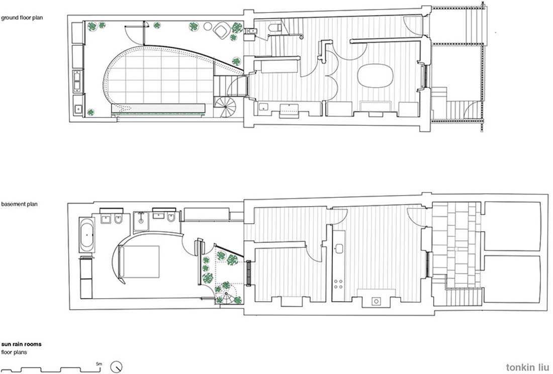
扩建部分包含了交叠在一起的家庭和工作功能,服务于平淡无奇又富有诗意的日常生活。在底层,新的花园屋被弯曲的玻璃墙所包围,成为家庭的起居空间和工作室的会议室。房间一直延伸到一个带顶棚的户外区域,该区域容纳了一个工作室、烹饪区、盆栽棚、雨水收集和储存池。
这些实用的功能,以及一个种植着通过绿色屋顶生长的树苗种植区,都被一扇滑动的镜面墙所隐藏。透过天井可以看到带有盖的封闭空间,空间底下的地下室被扩展成一间新卧室、两个浴室和一个杂物间。
▽ 屋顶花园
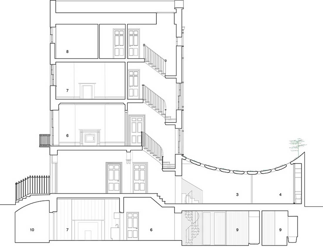
后院花园的围墙支撑着一个胶合板屋顶,屋顶的弯曲部分被切割成平面,允许光线最大限度地进入庭院,沿着太阳的路径穿过整个场地。蚀刻玻璃楼梯连接了天井和住宅,楼梯下方是一个充满植物的采光井,给地下室带来了阳光和生机。
屋顶是一个110毫米薄的结构外壳,穿孔的圆形方格天窗呼应了雨滴落在池中的波动模式。设计团队利用数控切割的桦木胶合板层,形成带有绝缘芯的受压蒙皮。箱柜将上下两层的表皮连接在一起,排列成斜交状,以更好地将力传递到周边的支撑架上。而前缘上的集成直立梁则增加了空间的纵深比。
▽ 室内设计
在底层,双层玻璃单元与低辐射全涂层最大限度地减少了从大型玻璃幕墙到花园房的热损失。通过在隔断墙上添加隔热材料,并开发出一种具有整体隔热功能的创新胶合板压力表皮屋顶结构,使该空间即使在寒冷的月份也能保持合适的温度。
在地下室,防水混凝土结构的使用代替了二次防水系统和机械污水泵。隔热箱具有很高的热性能,一年中的大部分时间都不需要空间加热。通过扩展采光井,采光效果得到了显著改善,有效的被动通风策略也开始被采用。有助于可持续排水的绿色屋顶上种有景天和标本树,以适应当地的环境、改善生物的多样性。收集的雨水被用来填满倒影池和灌溉绿色屋顶,复杂的照明系统由低能耗的LED配件组成。
▽ 景观设计
▽ 平面图
▽ 立面图
编后语:设计师将建筑的后花园改造为一个带有屋顶花园的雨水收集花园,让整个旧房改造后变得直击人们心脏的感觉,带来了不一样的住房体验。兼顾绿植、采光、雨水收集、保温隔热的生态屋顶,是整个设计项目的闪光点。更多关于旧楼改造、景观设计、生态设计的案例,请点击下面的拓展阅读进行跳转阅读。
来源网站:www.archdaily.com
翻译整理:WAQI
延伸阅读
中山产业园改造
景逸庭院式精品酒店改造
昆明教场北路旧房改造项目
WAQI建筑改造案例之蓝豹One·AI智慧谷改造项目
故事未了的江湖客栈|绿境景色花园客栈设计
设计终究是一个不断学习的过程,WAQI作为一家学习型设计事务所,通常在设计的过程中,会分析甚至于拆建一些案例,
不定期分享一些心得。请扫描并关注公众号,更多精彩,与您共享。。。
马上分享WAQI:
微信
QQ空间
新浪微博
上一个
下一个