首页
Home
WAQI做些什么
Services
WAQI的作品
Projects
WAQI是谁
About us
WAQI学院
College
联系WAQI
Contact us
logo
“变废为宝”式的旧楼改造|旧房改造
发布于:2020-07-30 15:42 浏览:
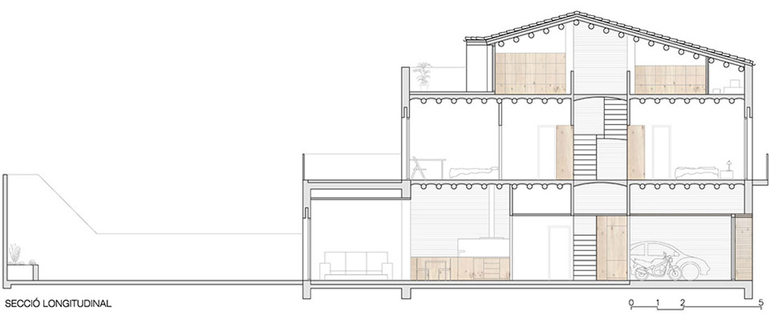
这幢建于上世纪的房屋需要进行相应改造以具备可出租的资格。由于预算十分紧张,设计师在不对既有建筑进行任何干预的情况下尽量维持其原貌,并通过锻造、隔断墙、立面和楼梯墙面等结构来对房屋进行改造。
改造集中在建筑的两个部分:在二楼,建筑的内部体量被全部清空。由于天花板高度不足且没有窗户,团队拆除部分屋顶结构来打造了新的阳光露台,并将书房和儿童娱乐室布置于此。
项目信息
设计公司:Vallribera Arquitectes + BAMMP Arquitectes
项目类型:建筑设计、旧楼改造、景观规划设计
位置:西班牙
▽ 改造前
▽ 设计效果图&模型
设计师将位于底层的体量在法律允许的范围内尽可能地向天井方向扩大。现有的天顶高度得到保留,开放且相连的厨房、餐厅和客厅都被设置在该层空间。位于外立面与楼梯之间的车库;位于楼梯与厨房之间的卫生间;儿童卧室、主卧室和一楼的卫生间……这些元素就像拼图一样被放入房屋的不同位置。
▽ 建筑外观
▽ 室内设计
▽ 细节设计
▽ 平面图
▽ 立面图
编后语:尽管资金有限,但是设计师将建筑原本能用的地方都保留,在原来建筑的基础上进行改造,让建筑的改造成本低廉的同时,也能满足住户的需求。更多关于旧楼改造、旧房改造、建筑设计的案例,请点击下面的拓展阅读进行跳转阅读。
来源网站:www.archdaily.com
翻译整理:WAQI
延伸阅读
中山产业园改造
景逸庭院式精品酒店改造
昆明教场北路旧房改造项目
WAQI建筑改造案例之蓝豹One·AI智慧谷改造项目
故事未了的江湖客栈|绿境景色花园客栈设计
设计终究是一个不断学习的过程,WAQI作为一家学习型设计事务所,通常在设计的过程中,会分析甚至于拆建一些案例,
不定期分享一些心得。请扫描并关注公众号,更多精彩,与您共享。。。
马上分享WAQI:
微信
QQ空间
新浪微博
上一个
下一个